33/4 Ocean Drive, Edinburgh, Midlothian, EH6 6JL

Edinburgh, Midlothian, EH6 6JL
New
Pin View on map

Monthly Rental £1,600 PCM

House

Apartment

Bed

2 Bedrooms

Bathroom

2 Bathrooms

Furnishing

Furnished

Calendar

Available From 17/11/2025

Pets

Pets Considered

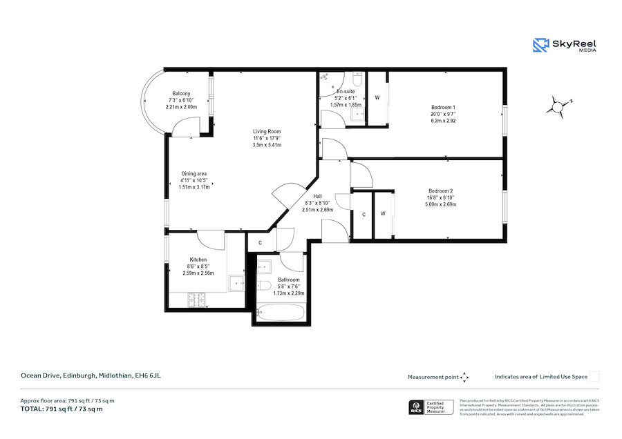
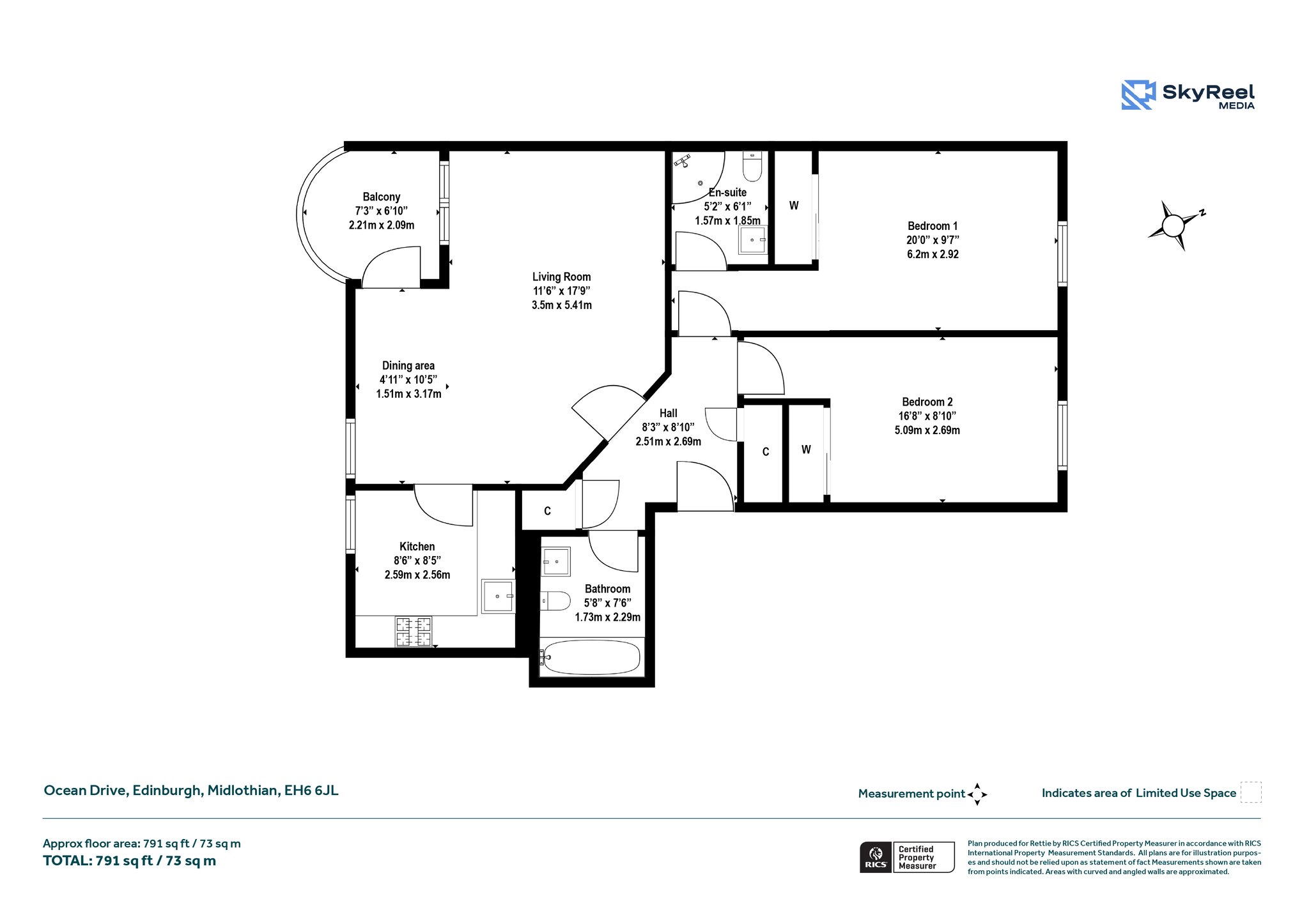
Size

791 sq.ft

Tree

Private Garden

Parking

Off Street Parking

Telephone

Property Description

A well appointed furnished modern apartment in Leith, offering contemporary aesthetic with light infused rooms, open plan kitchen/living/dining space with private balcony.

This two bed, two bath elevated property forms part of a fully factored, peaceful modern development adjacent to Fingal, with excellent amenities on the doorstep and only a short distance from the city centre by tram or bus.

The desirable harbourside lifestyle provides tranquillity to relax and unwind in spacious accommodation, private parking, secure video entry system and lift access, plus communal green space.

Summary Of Accommodation

Entrance hallway, open plan living / dining room, kitchen, principal bedroom with ensuite, double bedroom two, family bathroom.

External

Secure entry system, lift access, allocated internal bike storage, private parking space, communal grounds.

Location

Ocean Drive is situated in the heart of Leith, approximately 2.5 miles North East of Edinburgh City Centre. A short walk away is Leith’s Shore which boasts an array of high end restaurants including The Kitchin and Martin Wishart, a popular weekly food market and a selection of bars, bistros and artisan cafés. The property is well served by several supermarkets and several local independent shops; whilst the Tram is also on the doorstep offering direct access to the City Centre and Edinburgh Airport.

More Details

Deposit: £1800
EPC: B
Council Tax band: E
Landlord Registration: 528081/230/06082
LARN1903047

Request More Details

Jessica Jamieson

Jessica Jamieson

Portfolio Manager
modern detached house with stone and timber cladding

Looking To Sell Or Let?

Rettie is one of the most trusted and well-respected names in property. Our unrivalled market knowledge helps people from around the world buy, sell, let and develop property in Scotland and the North East of England - from city apartments and rural cottages to large townhouses and prime country homes, farms and estates. We deal with some of the most prestigious properties on the market, but provide the same exceptional standards of service and value for money to all our clients.