76/8 The Green, Edinburgh, Midlothian, EH4 5BH

Edinburgh, Midlothian, EH4 5BH
New
Pin View on map

Monthly Rental £1,450 PCM

House

Apartment

Bed

2 Bedrooms

Bathroom

2 Bathrooms

Reception

1 Reception Room

Furnishing

Furnished

Calendar

Available From 06/03/2026

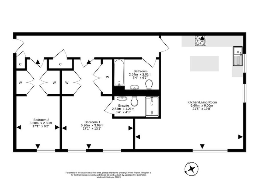
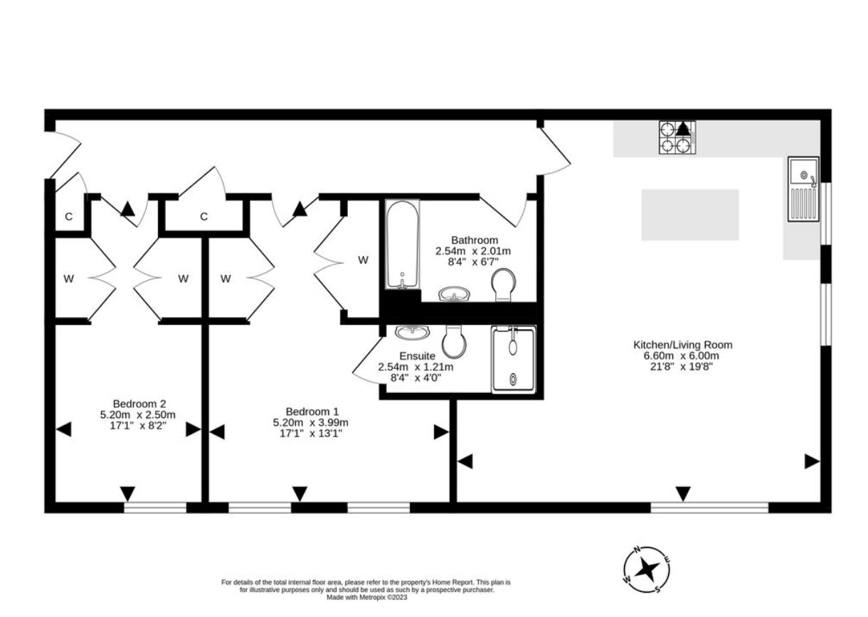
Size

79 sq.m

Parking

Off Street Parking

Telephone

Property Description

Attractive two bedroom, second floor flat within the well placed location of Davidson Mains.

Accommodation comprises;
Bright open plan living room/kitchen/dining area with high and low kitchen units and island unit; Principal double bedroom with large fitted wardrobes and en-suite shower room; Further double bedroom with large fitted wardrobes; Family bathroom; Hallway storage cupboards
This property also benefits from communal grounds, bin store and allocated off-street parking.

Davidson Mains is a desirable residential area with regular bus services, excellent school catchments and ample leisure and shopping facilities nearby.

No Pets.
Deposit £1,650
Council Tax Band: D
EPC rating: C
Landlord Registration Number: 504760/230/02082 and 505767/230/18082
LARN1903047

More Details

Deposit: £1,650
Council Tax Band: D
EPC rating: C

Request More Details

Fraser Jamieson

Fraser Jamieson

Portfolio Manager
modern detached house with stone and timber cladding

Looking To Sell Or Let?

Rettie is one of the most trusted and well-respected names in property. Our unrivalled market knowledge helps people from around the world buy, sell, let and develop property in Scotland and the North East of England - from city apartments and rural cottages to large townhouses and prime country homes, farms and estates. We deal with some of the most prestigious properties on the market, but provide the same exceptional standards of service and value for money to all our clients.