19 Simpson Loan, Edinburgh, EH3 9BS

Edinburgh, EH3 9BS
New
Pin View on map
  • EPC Rating Graph

Monthly Rental £2,400 PCM

House

Apartment

Bed

2 Bedrooms

Bathroom

2 Bathrooms

Furnishing

Furnished

Calendar

Available From 03/04/2026

Telephone

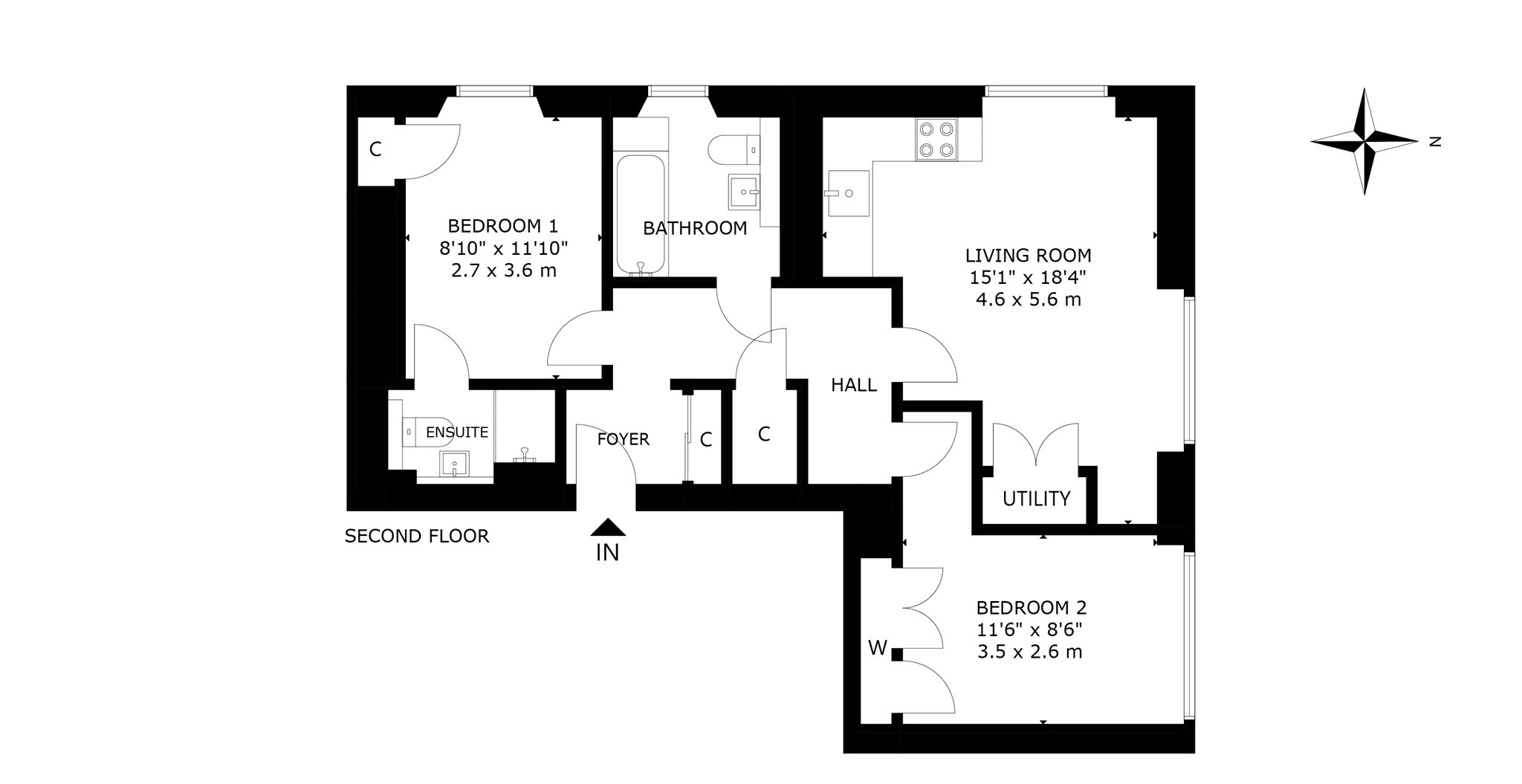
Property Description

Beautiful 2nd floor, fully furnished apartment situated within a popular central location in the heart of Edinburgh within the exclusive Quartermile development.

Accommodation Comprises;

Open plan living room with a modern fitted kitchen, dining area and floor to ceiling windows allowing lots of natural light; Principal bedroom with a modern en-suite shower room; Further double bedroom with fitted wardrobes; Modern family bathroom.
The property further benefits from electric central heating, ample storage, video entry system and a 24-hour concierge office.

The Quartermile Development offers numerous facilities including Peters Yard Coffee House, Pure Gym, Starbucks and Sainsbury`s. There are also local transport links within easy reach with both Haymarket and Waverley train stations nearby.

More Details

Deposit: £2,600
Furnished
Council Tax Band: F
EPC Rating: B
Landlord Registration: 267085/230/04191
LARN190304

Request More Details

Jessica Shek

Jessica Shek

Portfolio Manager
modern detached house with stone and timber cladding

Looking To Sell Or Let?

Rettie is one of the most trusted and well-respected names in property. Our unrivalled market knowledge helps people from around the world buy, sell, let and develop property in Scotland and the North East of England - from city apartments and rural cottages to large townhouses and prime country homes, farms and estates. We deal with some of the most prestigious properties on the market, but provide the same exceptional standards of service and value for money to all our clients.