28/2 Palmerston Place, Edinburgh, EH12 5AL

Edinburgh, EH12 5AL
New
Pin View on map

Monthly Rental £3,500 PCM

House

Upper Floor Apartment

Bed

3 Bedrooms

Bathroom

3 Bathrooms

Reception

2 Reception Rooms

Furnishing

Furnished

Calendar

Available From 15/06/2026

Size

165 sq.m

Tree

Communal Garden

Parking

On Street/Permit

Telephone

Property Description

A magnificent three-bedroom, second (top) floor corner-aspect apartment, offering an exceptional blend of classic period elegance and contemporary comfort in the heart of the city’s highly sought-after West End.

The property has been beautifully decorated and furnished throughout, creating an elegant and stylish space, and is presented in immaculate condition.

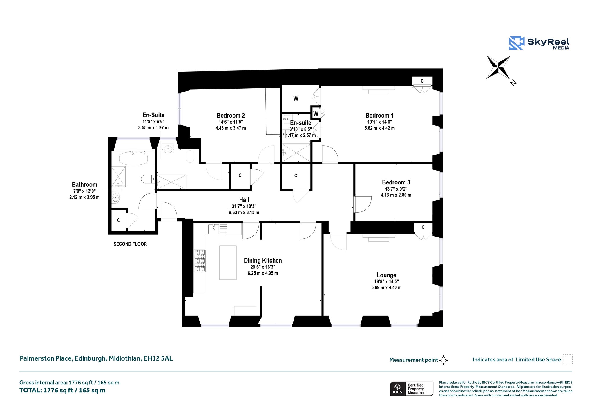
Accommodation Comprises

Private landing area immediately outside the front door, ideal for taking off shoes and coats; Welcoming hallway with cupola providing excellent natural light; Stunning corner-aspect sitting room with four large windows, dual aspect, ornate cornicing, working shutters and gas fire; Spacious modern kitchen with sleek fitted units, breakfast bar and large windows, opening on to the dining room; Generous principal bedroom with fitted wardrobes and en-suite shower room; Second double bedroom with en-suite shower room; Third double bedroom; Family bathroom with separate bath, shower cubicle, sink and WC.

Additional benefits to this wonderful property include GCH, underfloor heating, secure entry system, a beautifully maintained shared rear garden, and lovely views towards St Mary’s Episcopal Cathedral.

Palmerston Place lies within Edinburgh’s prestigious West End, an elegant residential area within easy walking distance of the city centre. A wide range of cafés, restaurants and independent shops can be found nearby on William Street, Queensferry Street and Shandwick Place, while the main shopping areas of Princes Street and George Street are also close at hand.

The area offers excellent leisure opportunities, with the Water of Leith Walkway and Dean Gardens both nearby, along with many cultural attractions throughout the city centre.

Haymarket railway station is just a short walk away, providing rail services across Scotland and the UK. Nearby tram services offer direct connections to Edinburgh Airport and the city centre, alongside numerous local bus routes.

The property lies within the catchment area for Roseburn and St. Mary's Primary Schools, and Craigmount and St Thomas of Aquin High Schools. Well-regarded independent schools nearby include The Edinburgh Academy, Fettes College, ESMS and St George’s School for Girls.

More Details

Furnished
Deposit: £3,700
Council Tax Band: G
EPC Rating: D
Landlord Registration: 1799081/230/12032 and 1799089/230/12032
LARN1903047

Request More Details

Patricia Turnbull

Patricia Turnbull

Portfolio Manager
modern detached house with stone and timber cladding

Looking To Sell Or Let?

Rettie is one of the most trusted and well-respected names in property. Our unrivalled market knowledge helps people from around the world buy, sell, let and develop property in Scotland and the North East of England - from city apartments and rural cottages to large townhouses and prime country homes, farms and estates. We deal with some of the most prestigious properties on the market, but provide the same exceptional standards of service and value for money to all our clients.