32A Cumberland Street, Edinburgh, Midlothian, EH3 6SA

Edinburgh, Midlothian, EH3 6SA
New
Pin View on map

Monthly Rental £1,300 PCM

House

Apartment

Bed

1 Bedroom

Bathroom

1 Bathroom

Reception

1 Reception Room

Furnishing

Furnished

Calendar

Available From 14/11/2025

Pets

Pets Considered

Parking

On Street/Permit

Telephone

Property Description

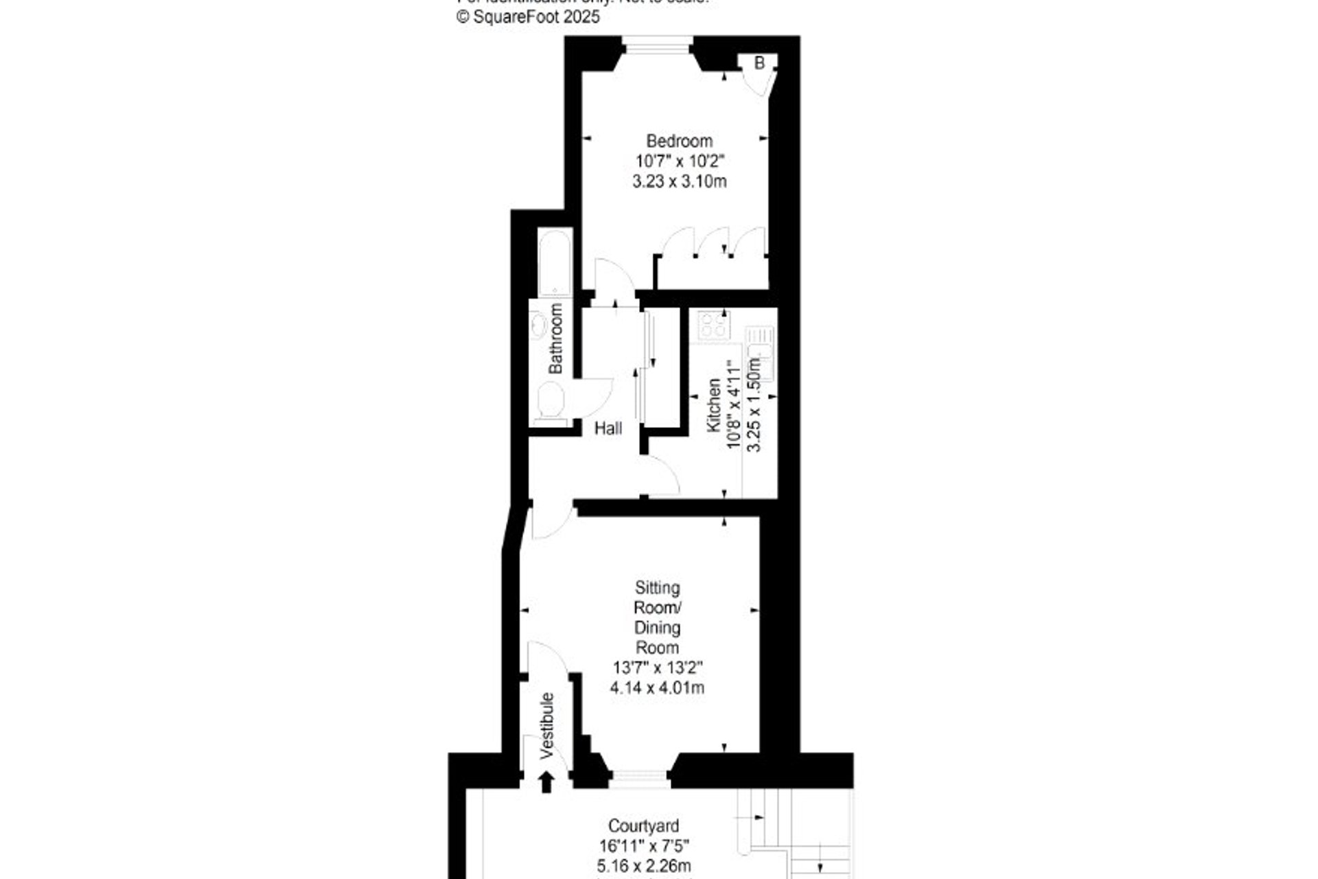
A bright and modern main-door furnished apartment located on a peaceful street in Edinburgh’s desirable New Town. This well-presented property combines period character with contemporary comfort, offering a welcoming home in a prime city location.

The accommodation comprises a spacious sitting and dining room, a fully fitted kitchen with integrated appliances, a double bedroom with built-in storage, and a bathroom with a shower over the bath. There is excellent hallway storage throughout, adding to the practicality of the space.

Externally, the property benefits from a private courtyard, one underground cellar, and on-street permit parking.

Cumberland Street enjoys an excellent central location close to Howe Street and Stockbridge, with a great selection of cafés, restaurants, and shops nearby. The area offers convenient transport links to Waverley and Haymarket stations, the city bypass, and Edinburgh Airport.

More Details

Furnsihed
Deposit: £1500
EPC Rating: C
Council Tax Band: C
Landlord Registration: 528081/230/06082
LARN1903047

Request More Details

Jessica Jamieson

Jessica Jamieson

Portfolio Manager
modern detached house with stone and timber cladding

Looking To Sell Or Let?

Rettie is one of the most trusted and well-respected names in property. Our unrivalled market knowledge helps people from around the world buy, sell, let and develop property in Scotland and the North East of England - from city apartments and rural cottages to large townhouses and prime country homes, farms and estates. We deal with some of the most prestigious properties on the market, but provide the same exceptional standards of service and value for money to all our clients.