Flat F, 2A, Dean Path, Edinburgh, EH4 3BA

Edinburgh, EH4 3BA
New
Pin View on map

Monthly Rental £1,600 PCM

House

Ground Floor Apartment

Bed

2 Bedrooms

Bathroom

1 Bathroom

Reception

1 Reception Room

Furnishing

Furnished

Calendar

Available Now

Pets

Pets Considered

Size

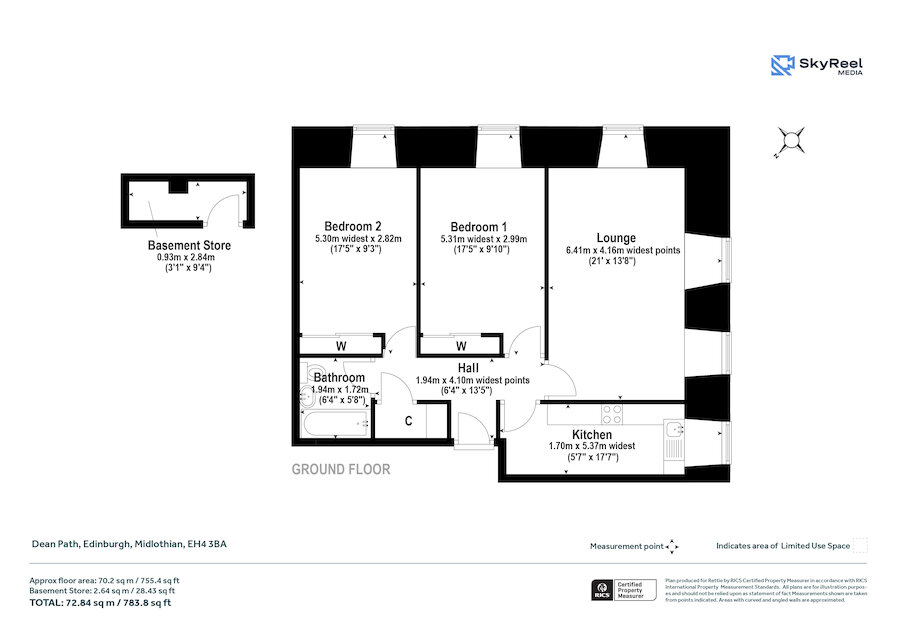
783 sq.ft

Tree

Communal Garden

Parking

On Street/Permit

Telephone

Property Description

Flat F, 2A Dean Path is a characterful two bedroom ground floor apartment set in the heart of Edinburgh’s historic Dean Village, one of the city’s most picturesque and tranquil neighbourhoods. The property enjoys access to a communal garden overlooking the Water of Leith, providing a truly charming setting in a highly desirable location.

The flat offers generously proportioned accommodation with plenty of potential to upgrade and modernise to suit individual tastes. The bright and spacious lounge benefits from large windows which fill the room with natural light, and the adjoining kitchen provides ample space and scope for reconfiguration. Both bedrooms are well sized doubles with built in storage, and the bathroom is neatly arranged. A welcoming hallway with storage cupboards links the accommodation.

A separate basement store offers valuable additional storage, ideal for bikes or outdoor equipment.

This property presents a rare opportunity to acquire a home in one of Edinburgh’s most sought after and historic locations, combining spacious accommodation with exceptional potential for renovation.

More Details

Furnished
Deposit: £1800
EPC: C
Council Tax: E
Landlord Registration: 528081/230/06082
LARN1903047

Request More Details

Jessica Jamieson

Jessica Jamieson

Portfolio Manager
modern detached house with stone and timber cladding

Looking To Sell Or Let?

Rettie is one of the most trusted and well-respected names in property. Our unrivalled market knowledge helps people from around the world buy, sell, let and develop property in Scotland and the North East of England - from city apartments and rural cottages to large townhouses and prime country homes, farms and estates. We deal with some of the most prestigious properties on the market, but provide the same exceptional standards of service and value for money to all our clients.