Flat 2/1, 4 Park Gate, Park, Glasgow, G3 6DL

Park, Glasgow, G3 6DL
New
Pin View on map

Monthly Rental £2,800 PCM

House

Upper Floor Apartment

Bed

3 Bedrooms

Bathroom

2 Bathrooms

Reception

1 Reception Room

Furnishing

Unfurnished

Calendar

Available From 30/01/2026

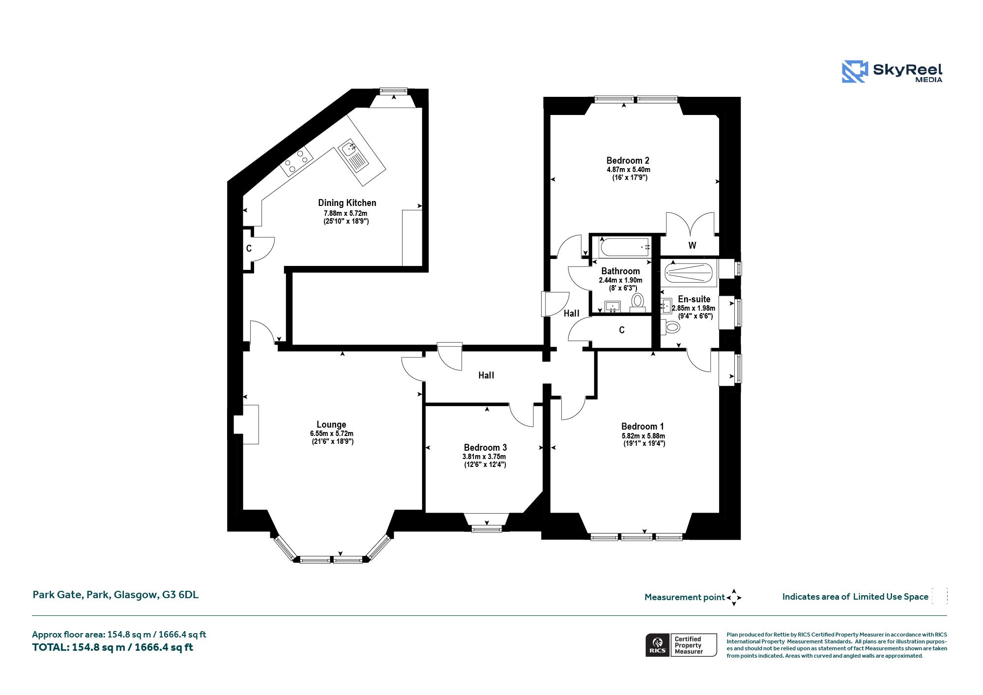
Size

160 sq.m

Telephone

Property Description

Stunning and spacious three bedroom first floor apartment within converted townhouse.

The accommodation comprises large lounge with bay window and feature fireplace, dining sized kitchen, three bedrooms, master ensuite, and family bathroom.

Scottish Letting Agent Registration: LARN1903047

Deposit: £3000

More Details

Landlord registration: 468075/260/03271
468078/260/03271
Council tax: F
EPC: E

Request More Details

Karen Crocket

Karen Crocket

Portfolio Manager
modern detached house with stone and timber cladding

Looking To Sell Or Let?

Rettie is one of the most trusted and well-respected names in property. Our unrivalled market knowledge helps people from around the world buy, sell, let and develop property in Scotland and the North East of England - from city apartments and rural cottages to large townhouses and prime country homes, farms and estates. We deal with some of the most prestigious properties on the market, but provide the same exceptional standards of service and value for money to all our clients.