1/2, 10 Lynedoch Terrace, Park, Glasgow, G3 6EJ

Park, Glasgow, G3 6EJ
New
Pin View on map

Monthly Rental £1,350 PCM

House

First Floor Apartment

Bed

2 Bedrooms

Bathroom

1 Bathroom

Reception

1 Reception Room

Furnishing

Furnished

Calendar

Available From 21/04/2026

Size

58 sq.m

Tree

Communal Garden

Parking

On Street/Permit

Telephone

Property Description

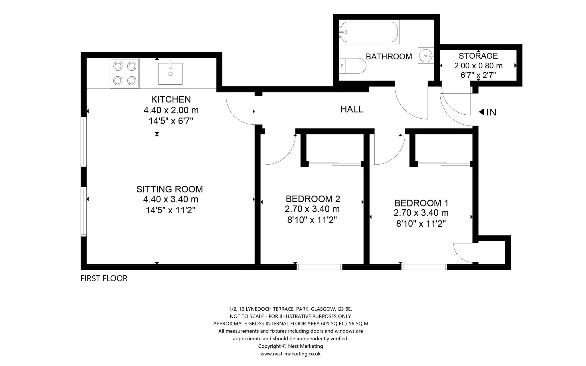
This two-bedroom luxury apartment forms part of an innovative modern development and occupies a preferred first floor position overlooking lovely tended residents pleasure gardens. Located in the highly desirable and incredibly convenient Park district this striking building was completed in mid-2016 by Wemyss Properties and is close to countless local amenities including Kelvingrove Park. The interior is finished to an exacting standard and extends to a bright main living/dining room, a fully fitted open plan kitchen; two double bedrooms with fitted wardrobes, particularly stylish three-piece bathroom. High ceilings throughout enhance the light open spaces.

Accommodation:

Security entry system; communal carpeted hall with stairway and elevator to all floors; reception hall with storage cupboard off; fabulous main living/dining room with a pleasant outlook; open plan kitchen complete with a range of base and wall units and integrated dishwasher, washing machine/dryer and integrated oven, ceramic hob and fridge freezer together; two double bedrooms with window to rear and fitted wardrobes; contemporary three piece bathroom comprising bath, over bath shower, toilet and wash hand basin with tiled wall and floor coverings. The property has gas central heating and double glazing. There is resident on street permit parking available.

Scottish Letting Agent Registration: LARN1903047

More Details

Landlord registration: 1277259/260/12082 & 129767 / 260/23092
Council tax: E
EPC: C
Deposit £1550.00

Request More Details

Katrina Westhead

Katrina Westhead

Portfolio Manager
modern detached house with stone and timber cladding

Looking To Sell Or Let?

Rettie is one of the most trusted and well-respected names in property. Our unrivalled market knowledge helps people from around the world buy, sell, let and develop property in Scotland and the North East of England - from city apartments and rural cottages to large townhouses and prime country homes, farms and estates. We deal with some of the most prestigious properties on the market, but provide the same exceptional standards of service and value for money to all our clients.