28 Festival Court, Prince's Quay, Glasgow, G51 1BD

Prince's Quay, Glasgow, G51 1BD
New
Pin View on map

Monthly Rental £2,000 PCM

House

Terraced House

Bed

3 Bedrooms

Bathroom

3 Bathrooms

Reception

1 Reception Room

Furnishing

Furnished

Calendar

Available Now

Size

109 sq.m

Tree

Private Garden

Parking

Off Street Parking

Telephone

Property Description

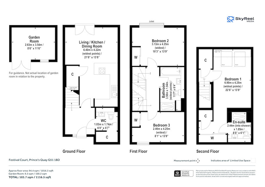
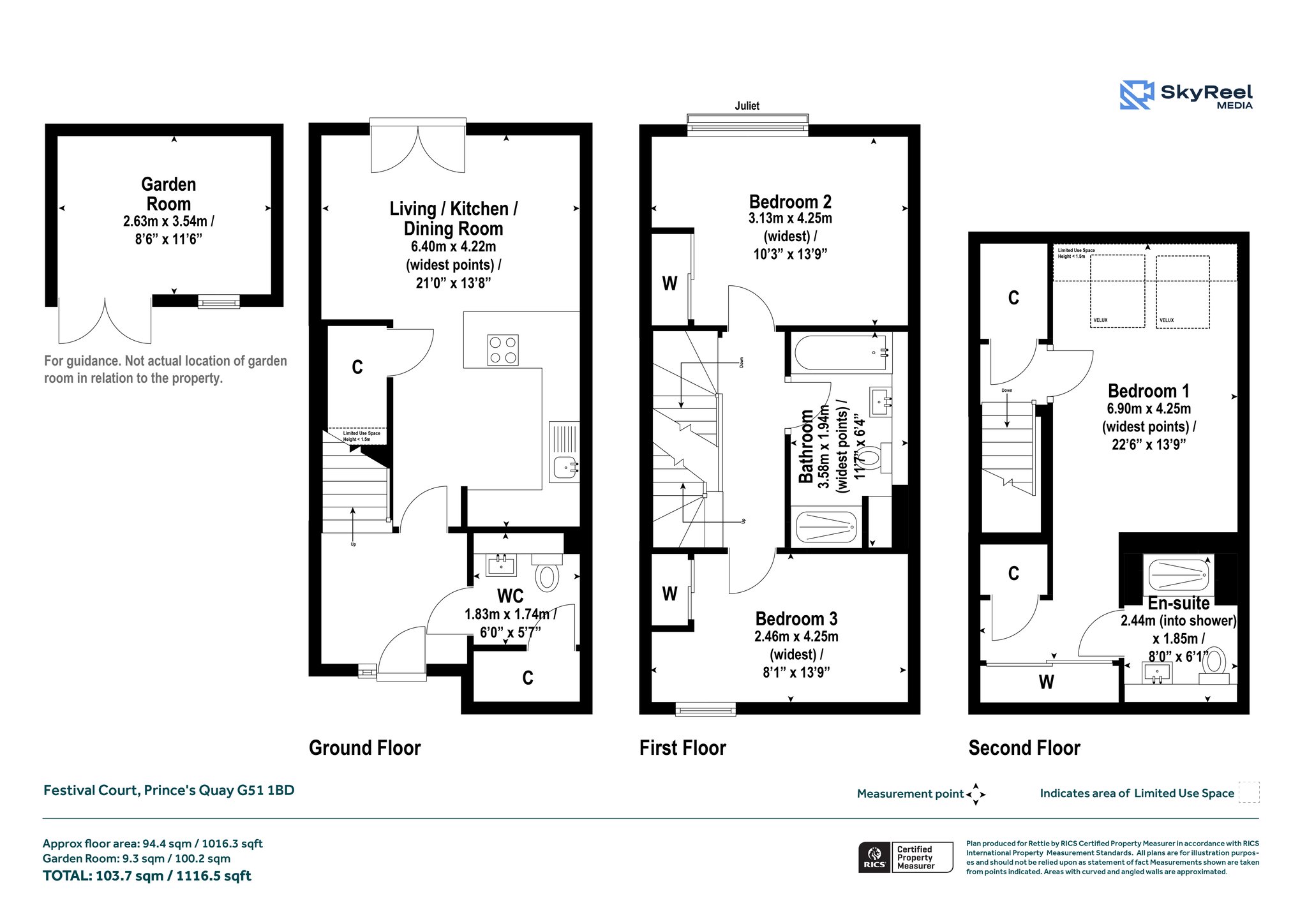
An exceptional end, three storey townhouse forming part of Cala's prestigious Prince's Quay development, within walking distance of Glasgow's West End, City Centre and Southside. 

The accommodation opens from a spacious reception hallway with a convenient W.C. off, featuring Porcelanosa tiles and a large storage cupboard. The hall leads to a stunning open plan kitchen, living and dining space which is flooded with light from large patio doors that provide access to a private, south facing rear garden. The kitchen includes a sleek design, high quality Bosch integrated appliances, Silestone worktops and large, sociable breakfast bar area.

The first floor accommodation comprises a generously proportioned double bedroom with integrated wardrobes and peaceful views to the private rear garden and a second double sized bedroom with integrated wardrobes and a large window providing bustling city views towards the BBC Scotland building and the West End. There is a luxurious tiled bathroom comprising a white, three piece suite and separate walk-in shower, heated towel rail and stunning, large format Porcelanosa tiles. 

The top floor accommodation comprises a third double sized bedroom that can be utilised very flexibly and a shower room with tiling, white two piece suite, heated towel rail and separate walk-in shower.

The property also benefits from a sustainable, hybrid Air Source Heat Pump and gas central heating system, hyper-fast fibre optic broadband, double glazing, and stunning contemporary decor throughout including high quality floor coverings from warm and sustainable cork to beautiful engineered wood parquet and wool carpet. The home is finished to exacting standards and showcases low-maintenance and energy efficient living. 

Externally there is a mono blocked driveway to the front of the property and contemporary paving leading to a small patio and well maintained garden with feature brick planter and boundary wall. Electric power sockets are incorporated within the sheltered entrance space, future proofing the property for EV charging facilities. There is a large, south facing private garden to the rear offering a secluded natural setting thanks to the well-established trees along the boundary. The high quality mono-block patio and timber fencing create a low maintenance environment whilst external lighting, power and tap facilities are provided for ease. 

Festival Court is part of the fabulous Prince's Quay development by Cala. It is situated perfectly to enjoy Glasgow to the fullest, with Finnieston and the Subway stops at Kinning Park and Cessnock all less than a mile away and the City Centre and Southside close by. Commuters have quick access to the National Cycle Routes along the River Clyde, Subway system, Fastlink bus services, Exhibition Centre rail station and prompt road access to the M8, M74 and M77 motorway networks.

Scottish letting agent registration: LARN1903047

More Details

Landlord registration: 525156/260/14062
Deposit £2200
Council tax: F
EPC: C

Request More Details

Abbie Coulson

Abbie Coulson

Portfolio Manager
modern detached house with stone and timber cladding

Looking To Sell Or Let?

Rettie is one of the most trusted and well-respected names in property. Our unrivalled market knowledge helps people from around the world buy, sell, let and develop property in Scotland and the North East of England - from city apartments and rural cottages to large townhouses and prime country homes, farms and estates. We deal with some of the most prestigious properties on the market, but provide the same exceptional standards of service and value for money to all our clients.