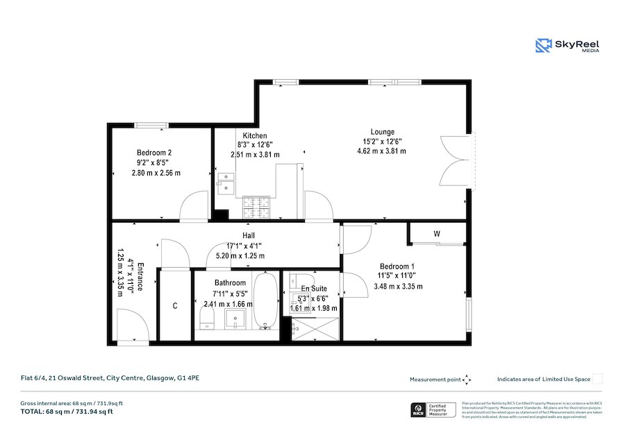
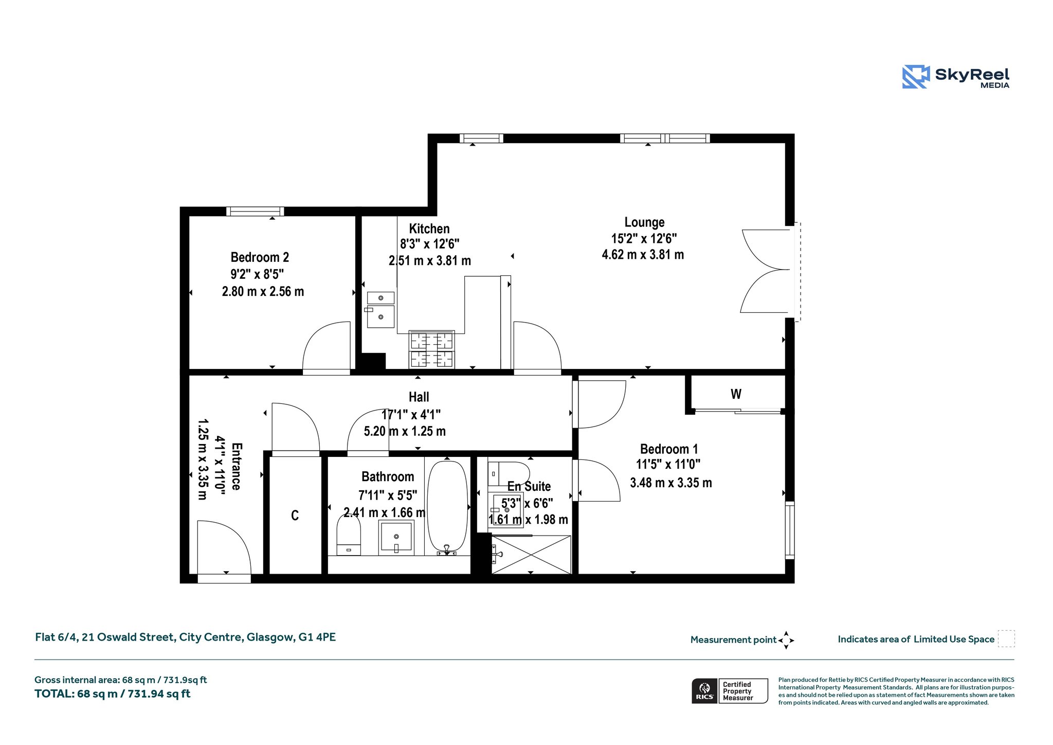
Flat 6/4, 21 Oswald Street, City Centre, Glasgow, G1 4PE

City Centre, Glasgow, G1 4PE
New
Pin View on map

Monthly Rental £1,195 PCM

House

Apartment

Bed

2 Bedrooms

Bathroom

2 Bathrooms

Reception

1 Reception Room

Furnishing

Furnished

Calendar

Available Now

Size

74 sq.m

Parking

Underground Parking

Telephone

Property Description

Well presented two bedroom apartment in the heart of Glasgow City Centre.

The furnished flat comprises of; welcoming entrance hallway, open plan lounge and kitchen with large windows flooding the room with natural light, two well proportioned double bedrooms, with the master benefiting from fitted storage and en suite shower room, the family sized bathroom completes the accommodation.

Further benefits include secure door entry system, lift facilities, double glazing and underground parking.

The property is perfectly situated for easy access to public transport links and within a short walk are Glasgow Central Station along with the Clydeside Expressway providing access to the Central Belt motorway network.

Scottish Letting Agent Registration: LARN1903047

More Details

Landlord registration: 465522/260/03021
Deposit £1395
Council tax: F
EPC: C

Request More Details

Paige Montgomery

Paige Montgomery

Portfolio Manager
Abbie Coulson

Abbie Coulson

Portfolio Manager
modern detached house with stone and timber cladding

Looking To Sell Or Let?

Rettie is one of the most trusted and well-respected names in property. Our unrivalled market knowledge helps people from around the world buy, sell, let and develop property in Scotland and the North East of England - from city apartments and rural cottages to large townhouses and prime country homes, farms and estates. We deal with some of the most prestigious properties on the market, but provide the same exceptional standards of service and value for money to all our clients.