2 Inchgarvie Loan, Richmond Park, Oatlands, Glasgow City, G5 0AR
Offers Over £219,000
Terraced House
2 Bedrooms
2 Bathrooms
1 Reception Room
753 sq.ft
Private Garden
Off Street Parking
Property Description
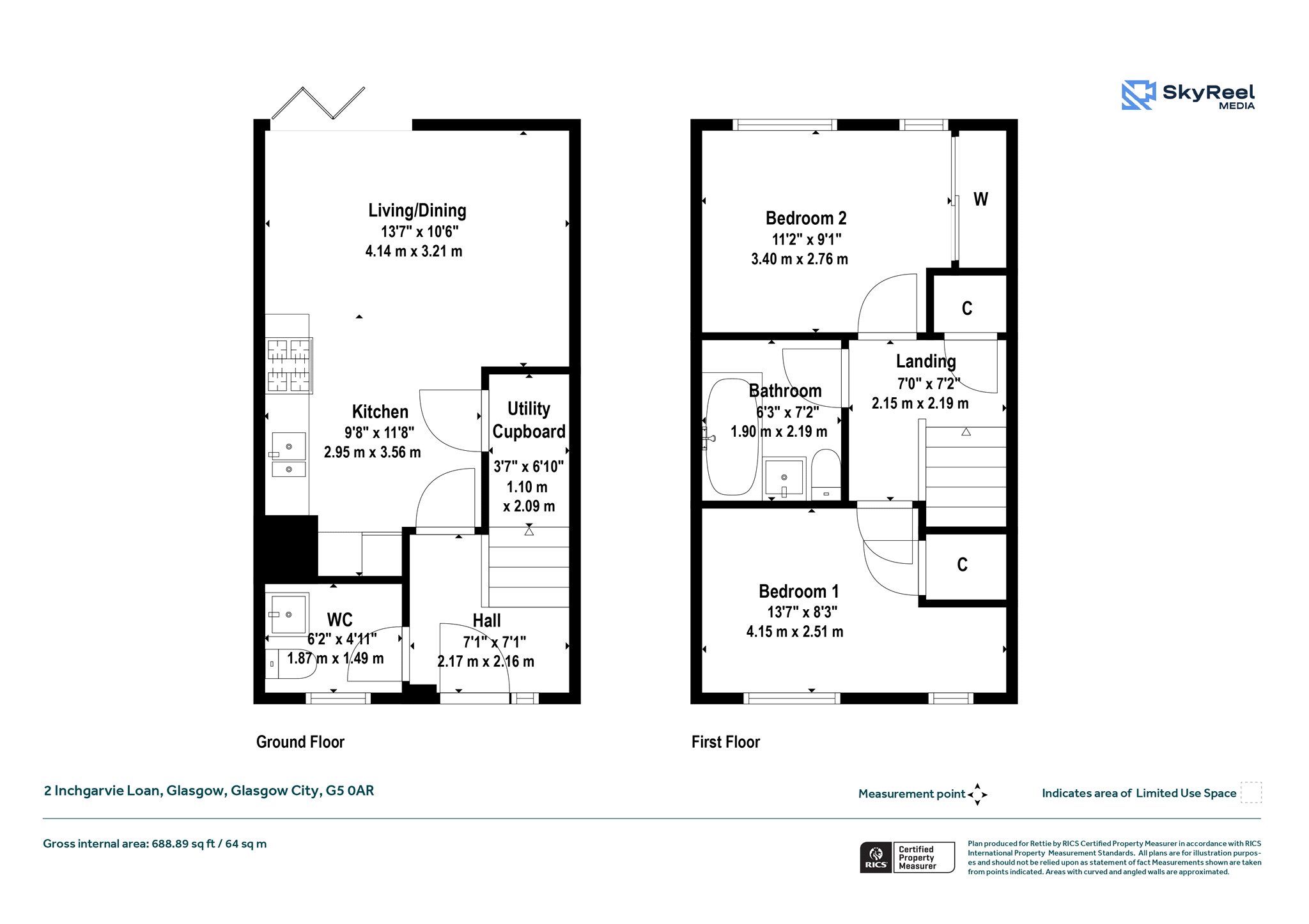
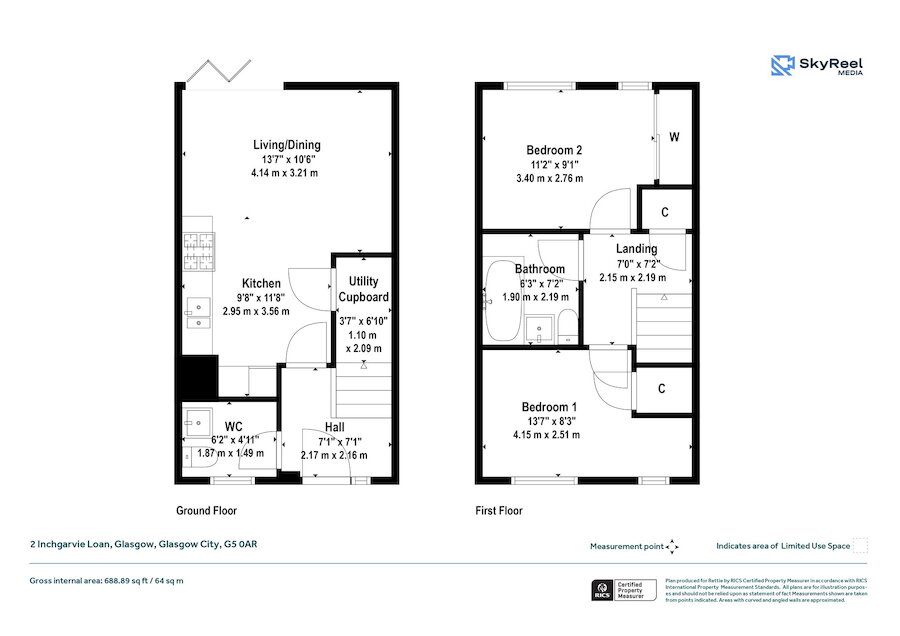
Rarely available, this modern, two-bedroom end terrace villa forms part of the ever-popular Richmond Gate Development in Oatlands, a contemporary residential area positioned on the south bank of the River Clyde and on the edge of Glasgow City Centre. Deceptively spacious, spanning approximately 753 sq ft the property is located on Inchgarvie Loan and within easy reach of Richmond Park grounds. Completed circa 2016 by Avant Homes, the property benefits from a south west facing rear garden, front garden area with a monoblock driveway, and ample guest parking. The location is superb, offering excellent transport links with the nearby M74 motorway network and convenient access to the southeast of Glasgow’s New Gorbals, with Glasgow Green and the Merchant City both within comfortable walking distance.
The property has been well maintained and upgraded by the current owner, featuring quality tiled flooring throughout the lower floor and fresh, modern décor. The accommodation extends to a welcoming reception hallway with staircase to the upper level. On the ground floor there is a cloakroom W.C. and hallway leading through to an impressive and bright open plan living, dining and kitchen area spanning over 20 feet and with bi-fold patio doors to the rear garden, also accessible from the side of the property. Off set to the left is a modern kitchen, fitted with a range of base and wall mounted units, integrated appliances. A useful laundry cupboard provides additional storage. Upstairs, there are two well proportioned double bedrooms, both with fitted wardrobes, along with a modern main bathroom featuring a white three piece suite with over bath shower. Further benefits include two storage cupboards and access to loft. The property enjoys an EPC rating of Band B, with double glazing and a gas fired combi central heating boiler.
Situation
Located on the eastern edge of Glasgow’s City Centre and the New Gorbals, Oatlands area overlooking Richmond Park has undergone extensive urban regeneration over the last 10 years. This established suburb benefits from easy access to both Glasgow’s main shopping thoroughfare, the ‘Style Mile’ being less than 2 miles away and a pleasant walk, through Glasgow Green and there is the Gorbals Leisure Centre or Emirates Stadium in good proximity. It is an area of Glasgow which has benefitted from significant and ongoing redevelopment over the last few decades and is in good proximity to Strathclyde & Caledonian Universities, the Glasgow School of Art, Barclays Wealth hub in Tradeston and the SEC and The Clyde Auditorium beyond. The area benefits from frequent public transport with the nearby city centre offering access to Central and Queen Street Train Stations, and subway stations and the road links to the M74 motorway network are exceptional.
More Details
Situation: Private Garden
Council Tax Band: C
Tenure: Freehold
Your home may be repossessed if you do not keep up repayments on your mortgage.
There may be a fee for mortgage advice. The actual amount you pay will depend upon your circumstances. The fee is up to 1% but a typical fee is 0.3% of the amount borrowed.
Similar Properties
Looking To Sell Or Let?
Rettie is one of the most trusted and well-respected names in property. Our unrivalled market knowledge helps people from around the world buy, sell, let and develop property in Scotland and the North East of England - from city apartments and rural cottages to large townhouses and prime country homes, farms and estates. We deal with some of the most prestigious properties on the market, but provide the same exceptional standards of service and value for money to all our clients.
