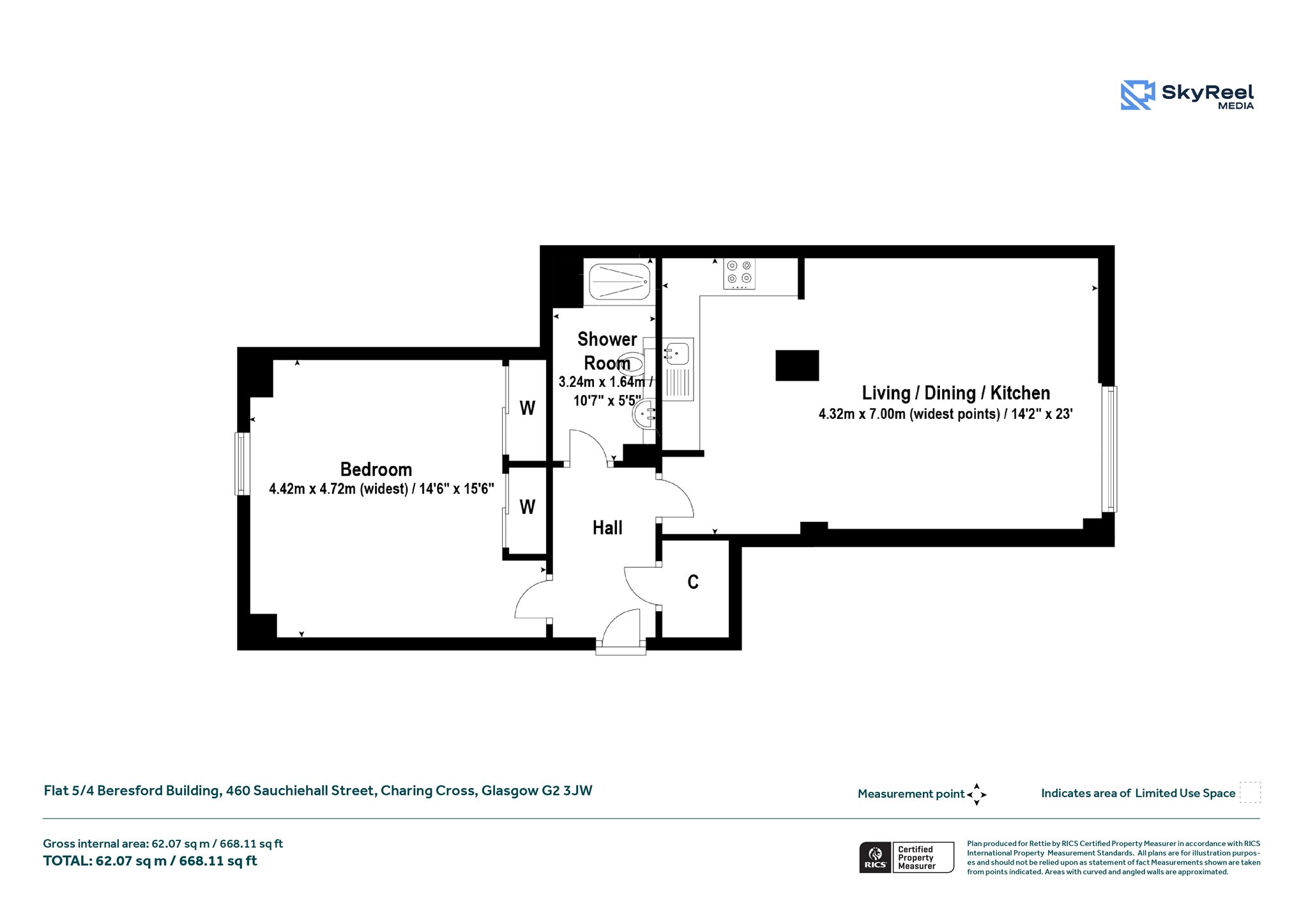
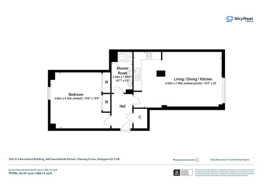
Flat 5/4 Beresford Building, 460 Sauchiehall Street, Charing Cross, Glasgow City, G2 3JW
Offers Over £139,000
Apartment
1 Bedroom
1 Bathroom
1 Reception Room
678 sq.ft
Property Description
Generous one-bedroom apartment extends to over 668 sq ft and is situated on the fifth floor within the landmark Beresford Building, located at Charing Cross. The art-deco building was originally designed and built in 1938 as a hotel, accommodating visitors to The Empire Exhibition and was converted into 112 residential apartments in 2006, offering a wealth of art deco features and benefiting from a comprehensive refurbishment program in the last few years, including roof works and rendering the full exterior to its former glory and with Sauchiehall Street forming part of Glasgow’s Avenues Project, the street has attractive tree lined pavements and cycle lanes.
Accessed via secure entry to an impressive communal entrance with lift or stair access to each floor and concierge service. Internal open walk way leads from the lift to the apartments front door. The accommodation comprises of reception hall with storage cupboard off, an open plan lounge/dining room with kitchen set back, spanning 23 ft, there is window with aspects west and laminate wooden flooring. The kitchen area is recessed from the living space and is complete with a range of base and wall mounted units and integrated appliances, there is a spacious double sized bedroom with window facing to the courtyard and two double sized fitted wardrobes and carpeted flooring. There is a shower room with double shower cubicle, toilet and wash hand basin. The property has underfloor heating provided from a communal central heating system, double glazing and there is a concierge on site Monday – Friday.
Situation
Located on Sauchiehall Street close to Charing Cross, an area of Glasgow’ City Centre which has benefitted from significant redevelopment over the years. Sauchiehall Street benefitted from a major public realm improvements programme, there is a handy Tesco Metro supermarket on the ground floor of the building and it is also conveniently located for access to the International Financial Services District, the City Centre, the Merchant City, Finnieston and the West End, where a wealth of amenities including both general and specialist shopping, wine bars and many highly acclaimed restaurants can be found. The property is in close proximity to the Glasgow School of Art; Royal Conservatoire, Strathclyde, Caledonian & Glasgow Universities. The area benefits from frequent public transport with easy access to nearby stations; Charing Cross, Central and Queen Street Train Stations. The nearby M8/M80 ensures good commuter access throughout the Central Belt.
Travel Directions
Walking or driving from our office at 147 Bath Street, continue along Bath Street heading west towards Charing Cross, at the fifth junction with Elmbank Street, turn right and you will see the entrance to No. 460 facing you at the end of the street across from the junction onto Sauchiehall Street.
More Details
Situation: Contact branch
Council Tax Band: D
Tenure: Contact Branch
Your home may be repossessed if you do not keep up repayments on your mortgage.
There may be a fee for mortgage advice. The actual amount you pay will depend upon your circumstances. The fee is up to 1% but a typical fee is 0.3% of the amount borrowed.
Similar Properties
Looking To Sell Or Let?
Rettie is one of the most trusted and well-respected names in property. Our unrivalled market knowledge helps people from around the world buy, sell, let and develop property in Scotland and the North East of England - from city apartments and rural cottages to large townhouses and prime country homes, farms and estates. We deal with some of the most prestigious properties on the market, but provide the same exceptional standards of service and value for money to all our clients.
