Stewartbank Orchard, Overtown, Garrion Bridge, Clyde Valley, ML2 0RW
Property Description
An impressive south-facing country house over approximately 6.45 acres in the delightful rural setting of the Clyde Valley within easy access of the M74 motorway and Glasgow.
Summary Of Accommodation
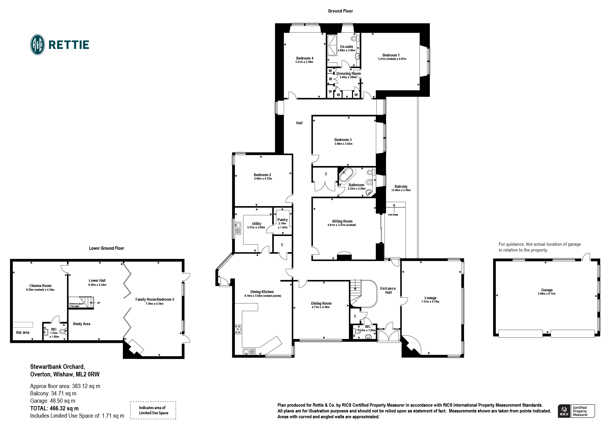
Lower Ground Floor: Lower Hall, Study area, Family Room/Bedroom 5, Cinema Room, WC.
Ground Floor: Entrance Hall, Lounge, Dining Room, WC, Sitting Room, Dining Kitchen, Utility, Pantry, Family Bathroom, Principal Bedroom with En-Suite Shower Room and Dressing Room, 3 further Double Bedrooms and Balcony.
Outbuildings: Double Garage/Storage Shed/Workshop. Garden shed.
Garden: Extensive garden over approximately 6.45 acres surrounding the house’s prominent position. The gardens are mainly laid to lawn interspersed with mature trees including numerous fruit trees. Monoblock patio to the rear and front of the house.
There has previously been planning permission secured for a 2 bedroom house with outstanding south-facing views above the main house at the north corner of the property boundary. This would require a new planning consent.
About 6.45 Acres. For Sale as a Whole
EPC: Band D
Council Tax: Band H
Freehold
More Details
Situation: Private GardenLand/Paddock
Council Tax Band: H
Tenure: Freehold
Your home may be repossessed if you do not keep up repayments on your mortgage. There may be a fee for mortgage advice. The actual amount you pay will depend upon your circumstances.
Similar Properties
Looking To Sell Or Let?
Rettie is one of the most trusted and well-respected names in property. Our unrivalled market knowledge helps people from around the world buy, sell, let and develop property in Scotland and the North East of England - from city apartments and rural cottages to large townhouses and prime country homes, farms and estates. We deal with some of the most prestigious properties on the market, but provide the same exceptional standards of service and value for money to all our clients.
