Braefoot House, Kittochside Road, Carmunnock, Glasgow, G76 9EP
Offers Over £995,000
Detached House
4 Bedrooms
4 Bathrooms
4 Reception Rooms
5,295 sq.ft
Private Garden
Garage
Property Description
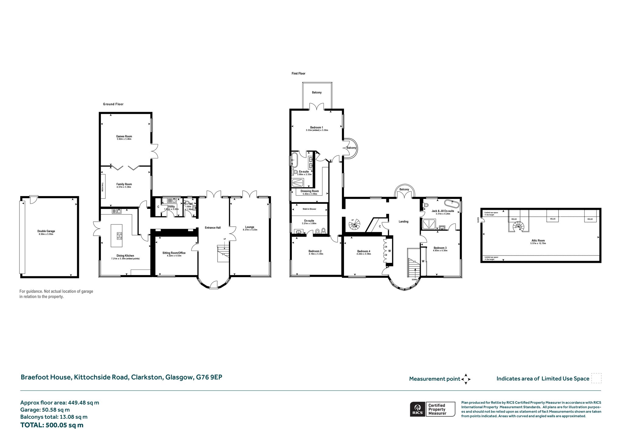
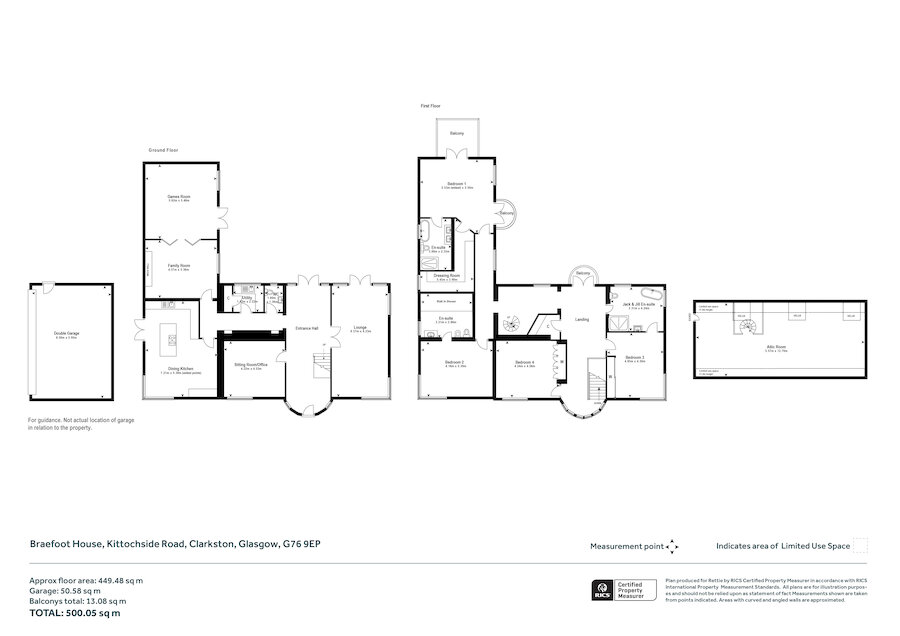
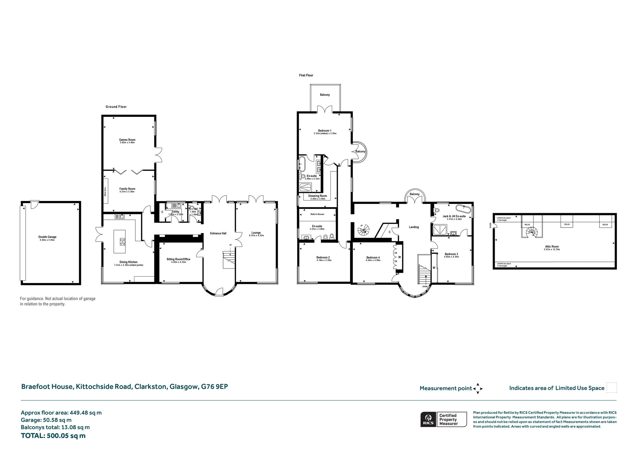
Braefoot House is an elegant and spacious 4-bedroom detached villa, featuring four reception rooms and four double bedrooms set behind electric gates, nestled within mature gardens that extend to approximately 1 acre.
This locally admired home is located in a secluded and private position on the edge of the picturesque conservation village of Carmunnock.
Having undergone extensive upgrades, the property offers a bright, airy, and generously sized living space spread over three levels. The home is tastefully decorated throughout in neutral tones and is immaculately presented in move in condition.
Accessed through electric gates, an impressive sweeping circular driveway leads to a covered entrance and a triple detached garage. The accommodation includes a grand reception hallway, a formal lounge with a feature fireplace and access to the rear gardens, a cozy family room, and a spacious dining-sized kitchen with integrated units and high-quality worktops. There is also a WC, a utility/laundry room, and a generous living room with internal glass doors leading to a snooker/entertainment room.
The upper floor features a bright and spacious galleried landing with a large window to the front, four beautifully presented bedrooms, two with contemporary en-suites, and a stylish family bathroom. An attic room, accessible by a spiral staircase, offers additional space for recreational or entertainment purposes or could potentially serve as a further bedroom.
Additional features of the home include high-spec finishes, tasteful styling, contemporary bathrooms and en-suites, oil-fired heating, replacement double glazing, a security alarm system, and electric gates for added security. The surrounding gardens offer a peaceful and scenic environment, with open views of the countryside beyond.
Early viewing of this exceptional home is highly recommended.
Freehold
More Details
Situation: BalconyPrivate Garden
Council Tax Band: G
Tenure: Freehold
Your home may be repossessed if you do not keep up repayments on your mortgage.
There may be a fee for mortgage advice. The actual amount you pay will depend upon your circumstances. The fee is up to 1% but a typical fee is 0.3% of the amount borrowed.
Similar Properties
Looking To Sell Or Let?
Rettie is one of the most trusted and well-respected names in property. Our unrivalled market knowledge helps people from around the world buy, sell, let and develop property in Scotland and the North East of England - from city apartments and rural cottages to large townhouses and prime country homes, farms and estates. We deal with some of the most prestigious properties on the market, but provide the same exceptional standards of service and value for money to all our clients.
