1 Macnicol Park, East Kilbride, Glasgow, South Lanarkshire, G74 4QE
Offers Over £415,000
Detached House
4 Bedrooms
3 Bathrooms
3 Reception Rooms
Private Garden
Property Description
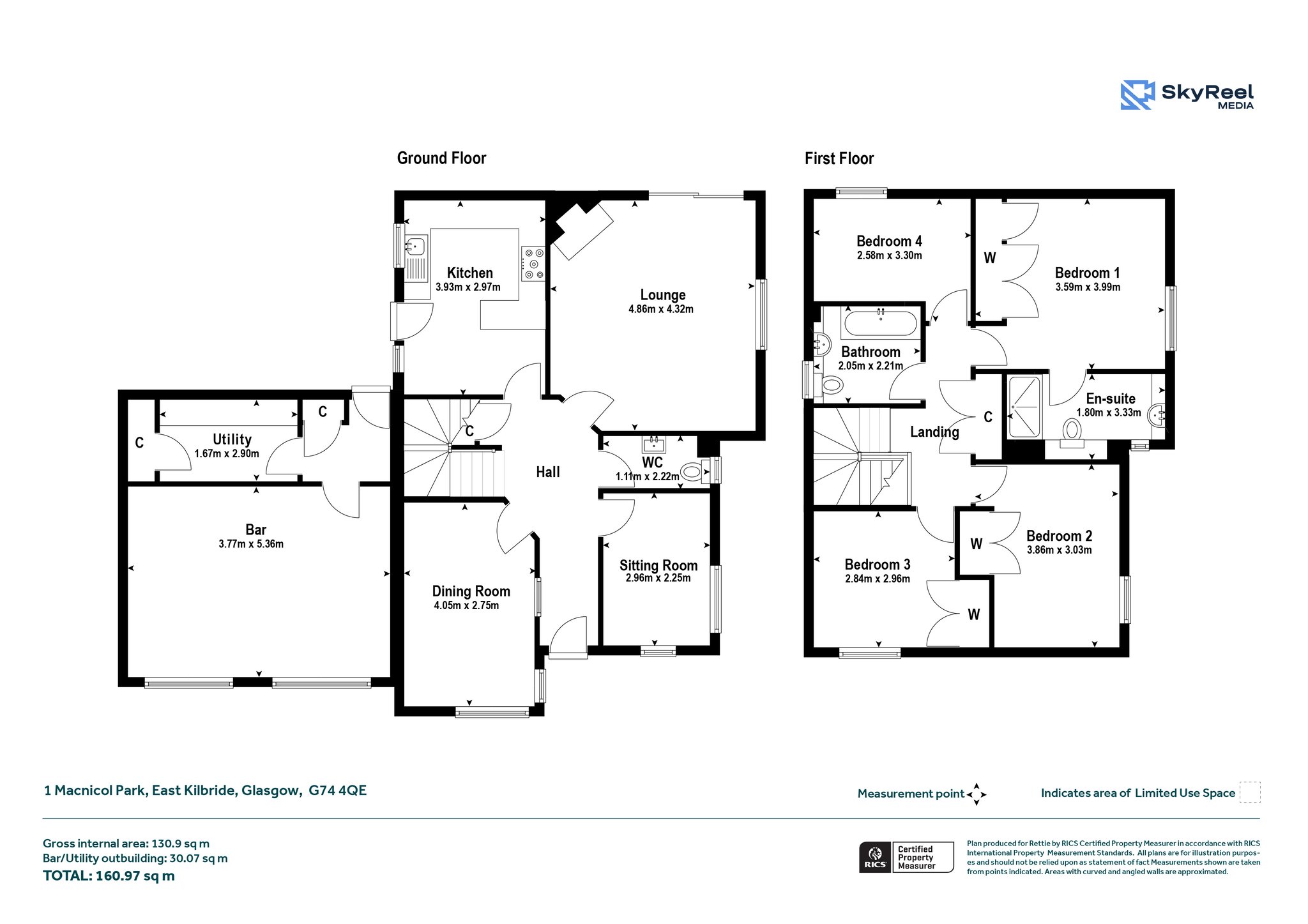
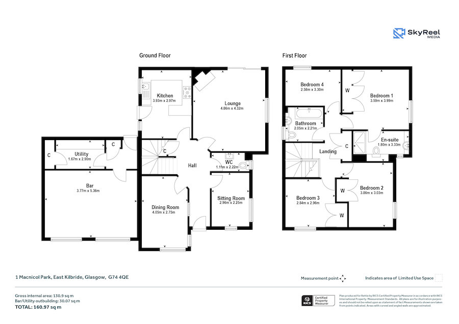
This impressive four-bedroom detached villa on a corner plot offers generous and versatile living space, perfect for modern family life. Set within a sought-after residential pocket, the property combines spacious interiors with a well-thought-out layout across two levels.
On the ground floor, a welcoming entrance hall leads to a bright and spacious lounge, ideal for relaxing or entertaining guests. The well-proportioned dining room provides the perfect setting for family meals, while the separate sitting room offers additional flexible living space—ideal as a playroom, home office, or snug. The fitted kitchen is conveniently positioned with access to the patio ideal for al-fresco dining. A standout feature is the substantial bar/entertaining room, offering fantastic potential for hosting and social occasions, there is also a handy utility room and store cupboard.
Upstairs, the property boasts four well-sized bedrooms. The principal bedroom benefits from its own en-suite shower room, while the remaining bedrooms are served by a modern family bathroom. Each room offers comfortable proportions, making this an ideal home for growing families.
Further benefits include ample storage throughout, a large mono-blocked driveway, and private gardens to the front and rear—perfect for outdoor enjoyment.
Located within easy reach of local amenities, schooling, and transport links, this superb home presents an excellent opportunity to acquire a spacious family property in a popular area.
Early viewing is highly recommended to fully appreciate all that this home has to offer.
The location of this property offers an array of leisure, shopping and dining activities. The area benefits from quality and secondary schooling. East Kilbride’s shopping centre and the St. James retail park are less than 10 minutes' drive away, Giffnock and Newton Mearns offer further shopping and leisure experiences for example, Parklands country club spa, multiple golf courses such as Whitecraigs, Rouken Glen and Cathcart to name a few and the popular David Lloyd leisure complex. Glasgow’s south side which is easily accessible via train boast some of the best restaurants and bars in the city.
More Details
Council Tax: G
EPC: C
Tenure: Freehold
Your home may be repossessed if you do not keep up repayments on your mortgage.
There may be a fee for mortgage advice. The actual amount you pay will depend upon your circumstances. The fee is up to 1% but a typical fee is 0.3% of the amount borrowed.
Similar Properties
Looking To Sell Or Let?
Rettie is one of the most trusted and well-respected names in property. Our unrivalled market knowledge helps people from around the world buy, sell, let and develop property in Scotland and the North East of England - from city apartments and rural cottages to large townhouses and prime country homes, farms and estates. We deal with some of the most prestigious properties on the market, but provide the same exceptional standards of service and value for money to all our clients.
