25/9 Simpson Loan, Quartermile, Edinburgh, EH3 9GE
Property Description
Exceptional Two-Bedroom Duplex Apartment with Study in Quartermile
Situated within the award-winning Quartermile development, Flat 9 at 25 Simpson Loan is a striking duplex apartment that combines contemporary design with classic architectural detail. Designed by world-renowned architects Foster + Partners, this impressive two-bedroom plus study home is set within one of the development’s original conversion blocks and offers a rare blend of modern luxury and period character.
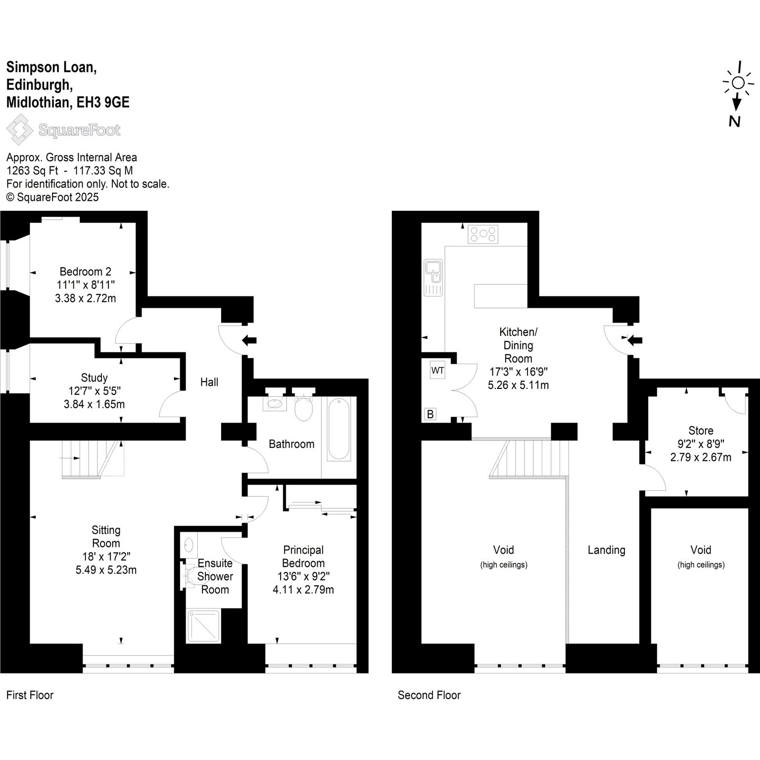
The property is arranged over two well-proportioned levels and has a spacious feel. On the lower level, a beautifully appointed sitting room features double-height ceilings and expansive windows, creating a bright and airy living space with a strong architectural presence. The principal bedroom enjoys the privacy of an ensuite shower room, while a second double bedroom is served by a modern family bathroom. A third room offers flexibility as a study or guest bedroom, ideal for those working from home or hosting visitors.
On the upper level, a spacious open-plan kitchen and dining area offers the perfect setting for entertaining or day-to-day living, with generous natural light and high-quality finishes throughout. Ample integrated storage is provided throughout the apartment including a ‘walk in’ store room, enhancing its practical appeal and there is also a gallery area overlooking the living space below that could be ideal for a workspace or snug.
The property further benefits from lift access, an allocated parking space in the secure underground garage, and an on-site caretaker / concierge service, adding convenience and peace of mind. Residents enjoy access to a beautifully landscaped development with a strong sense of community and a variety of amenities including cafés, restaurants, a gym, and a Sainsbury’s Local, all set on the edge of The Meadows and within walking distance of the Old Town, University of Edinburgh, and the city’s main business districts.
Offering refined urban living in one of Edinburgh’s most desirable settings, this exceptional home is ideally suited for professionals, downsizers, parents purchasing for their children studying at Edinburgh University or investors alike.
Accommodation
First Floor: Entrance hallway, sitting room, principal bedroom, ensuite shower room, second double bedroom, study, family bathroom.
Second Floor: Landing / gallery area, dining kitchen, walk in store room.
Outside Space
Communal stair with lift, communal garden grounds, allocated garaged parking space.
More Details
EPC: C
Council Tax Band: G
Tenure: Freehold
Viewing by appointment only.
Your home may be repossessed if you do not keep up repayments on your mortgage. There may be a fee for mortgage advice. The actual amount you pay will depend upon your circumstances.
Similar Properties
Looking To Sell Or Let?
Rettie is one of the most trusted and well-respected names in property. Our unrivalled market knowledge helps people from around the world buy, sell, let and develop property in Scotland and the North East of England - from city apartments and rural cottages to large townhouses and prime country homes, farms and estates. We deal with some of the most prestigious properties on the market, but provide the same exceptional standards of service and value for money to all our clients.
