Offers Over £710,000
Detached House
4 Bedrooms
2 Bathrooms
2 Reception Rooms
1,735 sq.ft
Private Garden
Garage
Off Street Parking
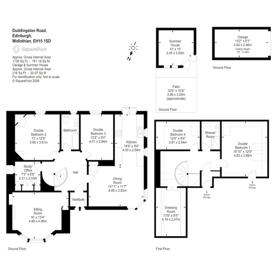
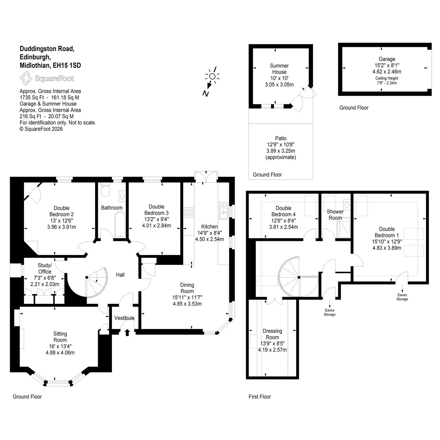
Property Description
Situated in the highly desirable and picturesque Duddingston area of Edinburgh, this exceptional four-bedroom bungalow with a beautifully executed upper conversion offers an outstanding combination of space, style, and versatility. Thoughtfully upgraded and immaculately presented throughout, the property seamlessly blends traditional character with modern comforts, making it an ideal family home in a truly enviable setting.
The accommodation is both generous and flexible, with a welcoming vestibule opening into a central hall that effortlessly connects the main living areas. The elegant sitting room is a standout feature, enhanced by a striking bay window that fills the space with natural light and a charming gas fire that creates a cosy focal point. A spacious dining room flows naturally into the well-appointed kitchen, which offers ample storage and worktop space along with direct access to the garden, perfect for both everyday living and entertaining. The ground floor further benefits from two well-proportioned double bedrooms, a contemporary family bathroom, and a versatile study or home office, ideal for modern working requirements or additional guest accommodation.
Upstairs, the converted upper level provides two further double bedrooms, including a superb principal bedroom that enjoys stunning open views, offering a peaceful retreat away from the main living areas. This level is complemented by a stylish shower room and a dedicated dressing room, adding a touch of luxury and practicality.
Externally, the property is equally impressive, boasting a beautifully maintained wrap-around garden that provides a variety of outdoor spaces for relaxation, play, and entertaining. The charming summer house adds further appeal, offering excellent potential as a studio, workspace, or tranquil garden escape. In addition, the home benefits from off-street parking for two vehicles and a garage equipped with an AV charging point, ensuring convenience for modern lifestyles.
Summary Of Accommodation
Ground Floor
Entrance Vestibule, Hallway, Sitting Room, Dining Room/Kitchen, Two Double Bedrooms, Bathroom, Study/Office
First Floor
Principal Bedroom, Double Bedroom Four, Shower Room, Dressing Room
Externally
Wrap Around Garden, Summer House, Off-Street Parking, Garage.
More Details
Tenure - Freehold
Council Tax - F
EPC - D
Your home may be repossessed if you do not keep up repayments on your mortgage.
There may be a fee for mortgage advice. The actual amount you pay will depend upon your circumstances. The fee is up to 1% but a typical fee is 0.3% of the amount borrowed.
Similar Properties
Looking To Sell Or Let?
Rettie is one of the most trusted and well-respected names in property. Our unrivalled market knowledge helps people from around the world buy, sell, let and develop property in Scotland and the North East of England - from city apartments and rural cottages to large townhouses and prime country homes, farms and estates. We deal with some of the most prestigious properties on the market, but provide the same exceptional standards of service and value for money to all our clients.
