11 West Mains Crofts, West Calder, West Lothian, EH55 8FL

West Calder, West Lothian, EH55 8FL
Pin View on map

Offers Over £890,000

House

Detached House

Bed

7 Bedrooms

Bathroom

6 Bathrooms

Reception

3 Reception Rooms

Size

5,079 sq.ft

Plot

About 1 Acres

Tree

Private Garden

Garage

Double Garage, Garage

Parking

Off Street Parking

Telephone

Property Description

A statement country home, commanding superlative and far-reaching views across the Forth Valley to the Ochil Hills, offering luxuriously appointed and generously proportioned family living accommodation, as well as a spacious self-contained annex.

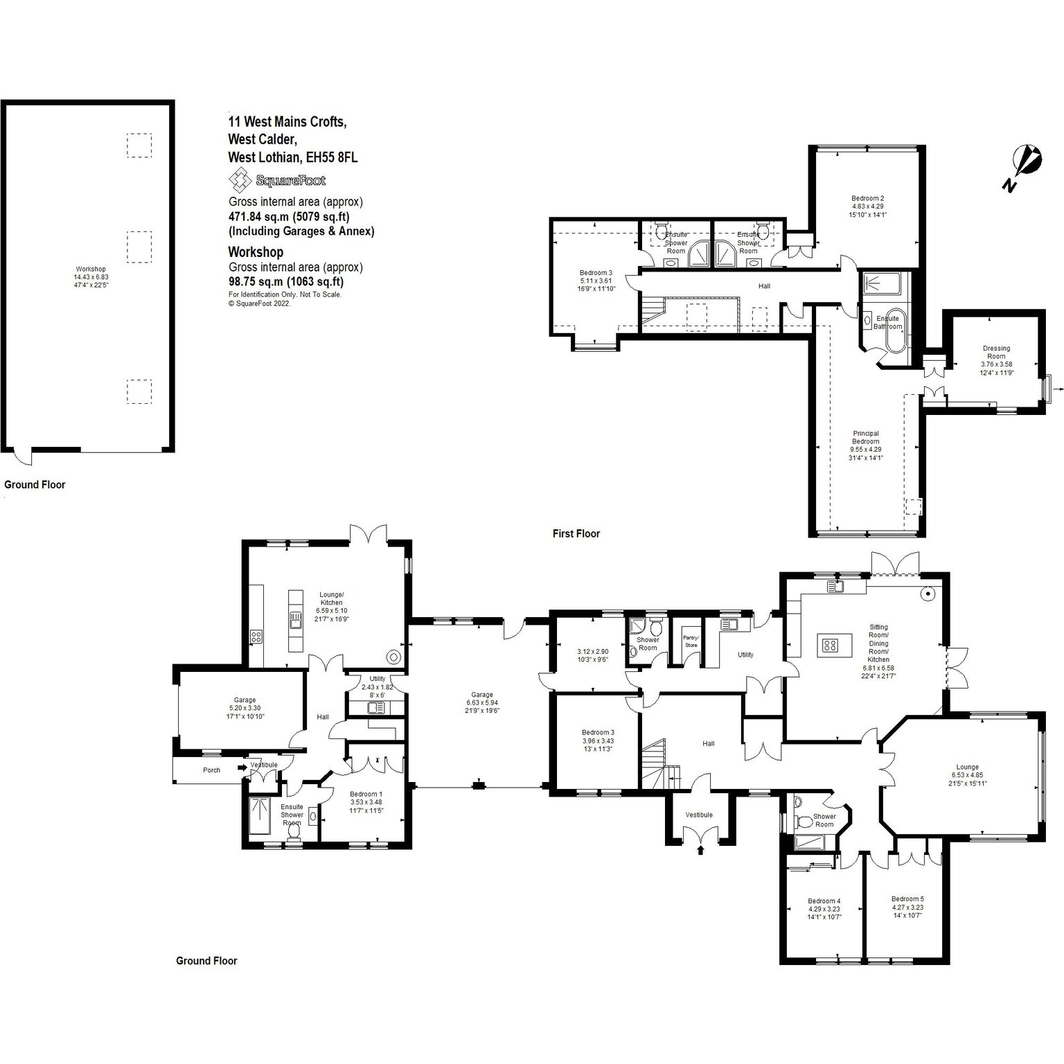
11 West Mains Crofts stands within approximately 1 acre of garden and is accompanied by a modern portal frame shed/workshop measuring approximately
14.3m x 6.8m.

Situated amidst undulating West Lothian countryside, 11 West Mains Crofts forms part of a small enclave of individually designed homes, which share in the idyllic setting and the enviably accessible position in Central Scotland, within commuting distance of both Edinburgh, Glasgow, and Stirling.

West Calder 2.5 miles (4 km); Linlithgow 12 miles (20 km);
Edinburgh City Centre 22 miles (36 km), Stirling 29 miles (47 km); Glasgow City Centre 31 miles (50 km).

(All distances are approximate).

Accommodation Summary

Ground Floor:
Entrance Vestibule, Hall, Sitting Room, open-plan Living/Dining Room and Kitchen, Pantry, Utility Room, and Plant Room.

Three Double Bedrooms (one currently utilised as a home office) and two Shower Rooms. Copious volume of inbuilt storage.

Large Integral Double Garage (6.63m x 5.94 m approx.)

First Floor:
Upper Hall, Principal Bedroom with Dressing Room and en-suite Bathroom, and two Double Bedrooms with en suite Shower Rooms.

Dettached Annexe:
Entrance Vestibule, Hall, open-plan Sitting/Dining Room and Kitchen, Double Bedroom with Jack-and-Jill en suite Shower Room, Utility Room, and walk-in Storage Cupboard.

Integral Single Garage.

Exterior:

Generous plot of around 1 acre, bounding house on all sides and accessed off private road through West Mains Crofts via electrically-operated gate.

Private gravelled driveway providing car parking and turning space for multiple vehicles.

Sweeping lawn gardens to front, side, and rear of the house, enclosed by a combination of neat fencing and established hedging and accented by exterior lighting.

Modern portal frame shed measuring approximately 14.3m x 6.8m.

Ground Source Heat Pump & 16 roof-mounted Solar PV Panels.

More Details

Tenure: Freehold
EPC Rating: Band C
Council Tax Band: H

Request More Details

Joanna Tinson

Joanna Tinson

Senior Sales Negotiator
Alastair Houlden MRICS

Alastair Houlden MRICS

Director of Country House Sales
Paul Banyard Cert CII (MP)

Paul Banyard Cert CII (MP)

Mortgage & Protection Advisor
Mortgage Calculator
Monthly payments
Please set an interest rate.

Your home may be repossessed if you do not keep up repayments on your mortgage. There may be a fee for mortgage advice. The actual amount you pay will depend upon your circumstances.

Tax Calculator
LBTT calculator for properties purchased in Scotland. Stamp Duty calculator for properties purchased in England.
Land & buildings transaction tax (LBTT)
= £0
New build house with stone and timber cladding

Looking To Sell Or Let?

Rettie is one of the most trusted and well-respected names in property. Our unrivalled market knowledge helps people from around the world buy, sell, let and develop property in Scotland and the North East of England - from city apartments and rural cottages to large townhouses and prime country homes, farms and estates. We deal with some of the most prestigious properties on the market, but provide the same exceptional standards of service and value for money to all our clients.