Flat 2, 8 Tay Street, Perth, Perth and Kinross, PH1 5LQ

Perth, Perth and Kinross, PH1 5LQ
Pin View on map

Offers Over £250,000

House

Apartment

Bed

3 Bedrooms

Bathroom

2 Bathrooms

Reception

1 Reception Room

Size

1,507 sq.ft

Telephone

Property Description

This unique opportunity presents a Grade B Listed Victorian property, showcasing striking gothic features enhanced by its attractive stonework. The building is divided into three spacious flats, each offering comfortable living with a blend of historical charm and modern convenience.

Located within easy reach of Perth town centre, the property enjoys stunning views over the River Tay, making it an ideal location for those seeking a combination of heritage architecture and a scenic, urban lifestyle. The property’s timeless elegance, combined with its prime location, makes it a truly special opportunity.

Summary Of Accommodation

Ground Floor: Entrance at ground floor level with stairs rising to:

First Floor: Flat 1: Hall, sitting room, kitchen/breakfast room, Principal bedroom with ensuite shower room, two double bedrooms and family bathroom.

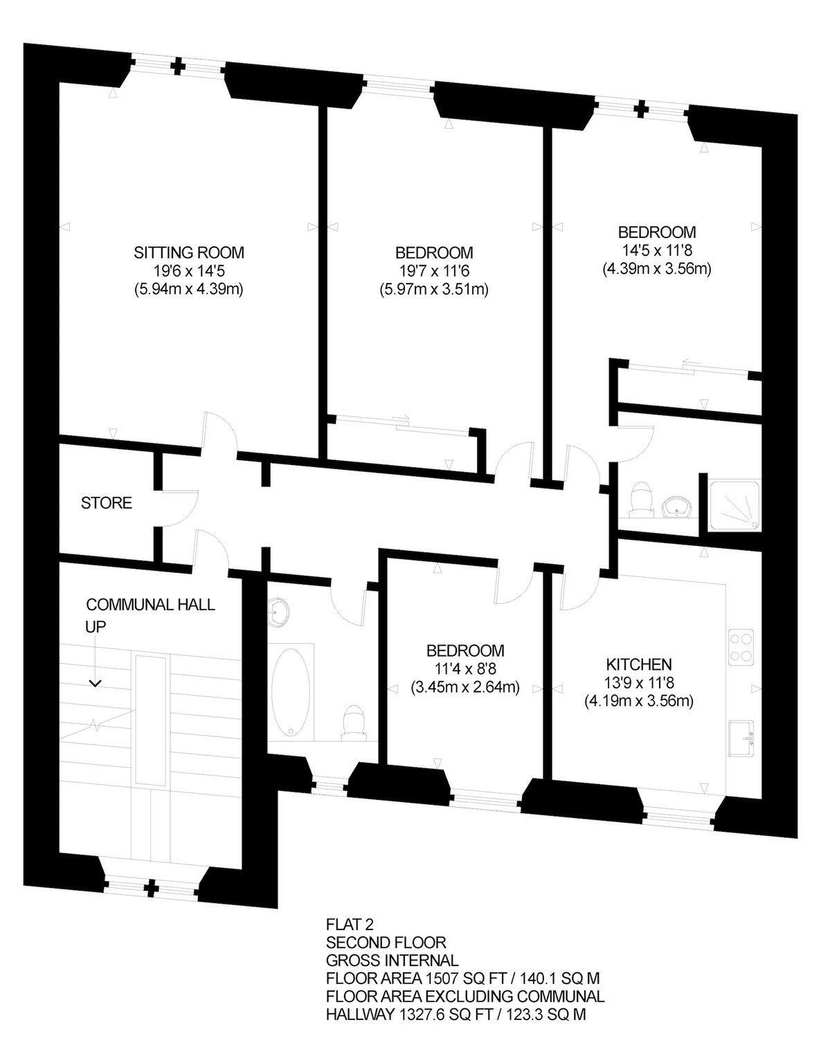
Second Floor: Flat 2: Hall, sitting room, kitchen/breakfast room, double bedroom with en suite shower room, two further double bedrooms and family bathroom.

Third Floor: Flat 3: Hall, Sitting Room, Dining Room, Kitchen, Two double bedrooms and bathroom.

Available as a whole or individually.

EPC Band : C
Council Tax Bands: E

More Details

Situation: Contact branch
Council Tax Band: Contact branch
Tenure: Freehold

Request More Details

Alastair Houlden MRICS

Alastair Houlden MRICS

Director of Country House Sales
Paul Banyard Cert CII (MP)

Paul Banyard Cert CII (MP)

Mortgage & Protection Advisor
Mortgage Calculator
Monthly payments
Please set an interest rate.

Your home may be repossessed if you do not keep up repayments on your mortgage.

There may be a fee for mortgage advice. The actual amount you pay will depend upon your circumstances. The fee is up to 1% but a typical fee is 0.3% of the amount borrowed.

Tax Calculator
LBTT calculator for properties purchased in Scotland. Stamp Duty calculator for properties purchased in England.
Land & buildings transaction tax (LBTT)
= £0
New build house with stone and timber cladding

Looking To Sell Or Let?

Rettie is one of the most trusted and well-respected names in property. Our unrivalled market knowledge helps people from around the world buy, sell, let and develop property in Scotland and the North East of England - from city apartments and rural cottages to large townhouses and prime country homes, farms and estates. We deal with some of the most prestigious properties on the market, but provide the same exceptional standards of service and value for money to all our clients.