Turfhills Farm Cottage, Kinross, Perth and Kinross, KY13 0NQ

Perth and Kinross, KY13 0NQ
Sold
Pin View on map

Offers Over £600,000

House

Detached House

Bed

4 Bedrooms

Bathroom

4 Bathrooms

Reception

4 Reception Rooms

Size

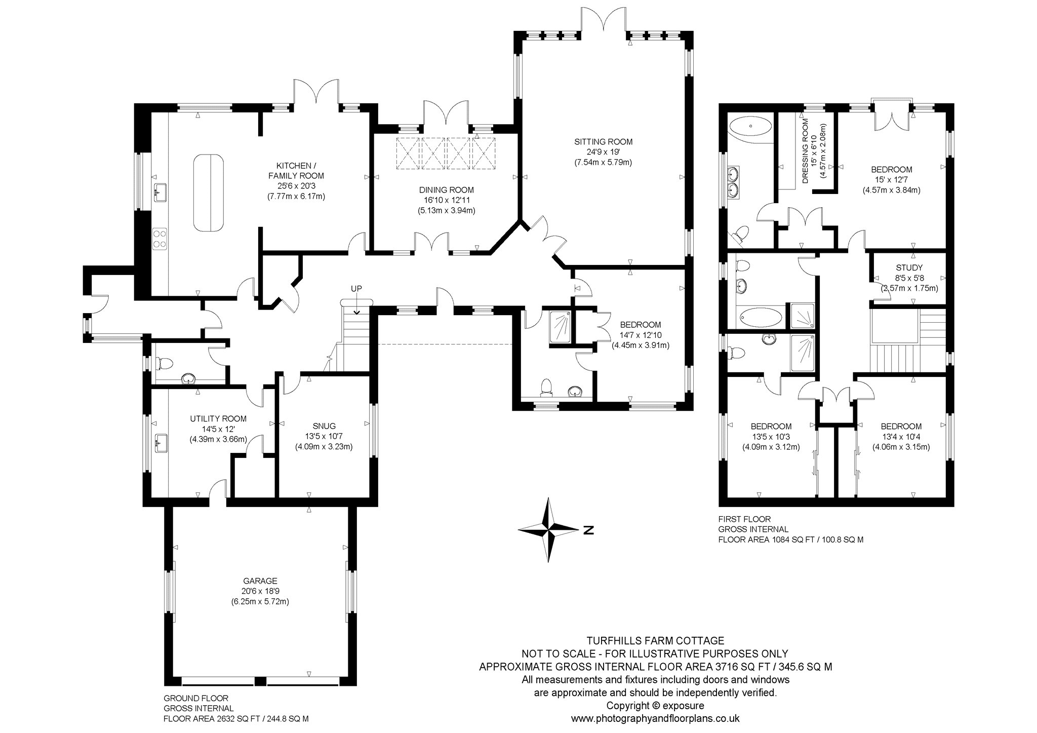
3,716 sq.ft

Tree

Private Garden

Garage

Double Garage

Telephone

Property Description

A timeless yet contemporary country home, affording a wealth of impeccably presented and handsomely proportioned family living accommodation, set within a generous and secluded plot.

The property occupies a semi-rural position to the West of Kinross, within 1 mile of the town’s vibrant main thoroughfare, and features scenic and far-reaching views from the first floor towards the distant hills.

The town’s attractive setting by Loch Leven and
convenient position on the M90 corridor have cemented its popularity for generations.

Accommodation

Entrance Vestibule, Hall, Sitting Room, Dining Room, Kitchen/Family Room, Snug/Home Office, Utility Room, WC, and Double Bedroom 4 with en suite Shower Room.
Landing, Principal Bedroom Suite with Dressing Room and Bathroom, Double Bedroom with en-suite Shower Room, Double Bedroom 3, Family Bathroom, and Study/Box Room.

Exterior
Generous plot bounding the house on all sides, featuring an established and spacious wrap-around lawn garden and a stylish patio terrace set in the sheltered of a veranda. Mature trees, tall hedging, and verdant borders
provide screening and seclusion. Expansive gravel driveway providing parking and turning space for multiple vehicles and a stone pillared entrance with a pair of electrically operated metal gates. Integral Large Double Garage.

More Details

Council Tax Band - G
EPC Rating - Band C
Tenure - Freehold

Contact Us

Alastair Houlden MRICS

Alastair Houlden MRICS

Director of Country House Sales
Paul Banyard Cert CII (MP)

Paul Banyard Cert CII (MP)

Mortgage & Protection Advisor
Mortgage Calculator
Monthly payments
Please set an interest rate.

Your home may be repossessed if you do not keep up repayments on your mortgage.

There may be a fee for mortgage advice. The actual amount you pay will depend upon your circumstances. The fee is up to 1% but a typical fee is 0.3% of the amount borrowed.

Tax Calculator
LBTT calculator for properties purchased in Scotland. Stamp Duty calculator for properties purchased in England.
Land & buildings transaction tax (LBTT)
= £0
New build house with stone and timber cladding

Looking To Sell Or Let?

Rettie is one of the most trusted and well-respected names in property. Our unrivalled market knowledge helps people from around the world buy, sell, let and develop property in Scotland and the North East of England - from city apartments and rural cottages to large townhouses and prime country homes, farms and estates. We deal with some of the most prestigious properties on the market, but provide the same exceptional standards of service and value for money to all our clients.