Elm (Bugaboo) and Larch Cottage, Weem, Aberfeldy, Perth and Kinross, PH15 2LD

Weem, Aberfeldy, Perth and Kinross, PH15 2LD
Pin View on map

Offers Over £375,000

House

Semi Detached House

Bed

4 Bedrooms

Bathroom

4 Bathrooms

Reception

3 Reception Rooms

Size

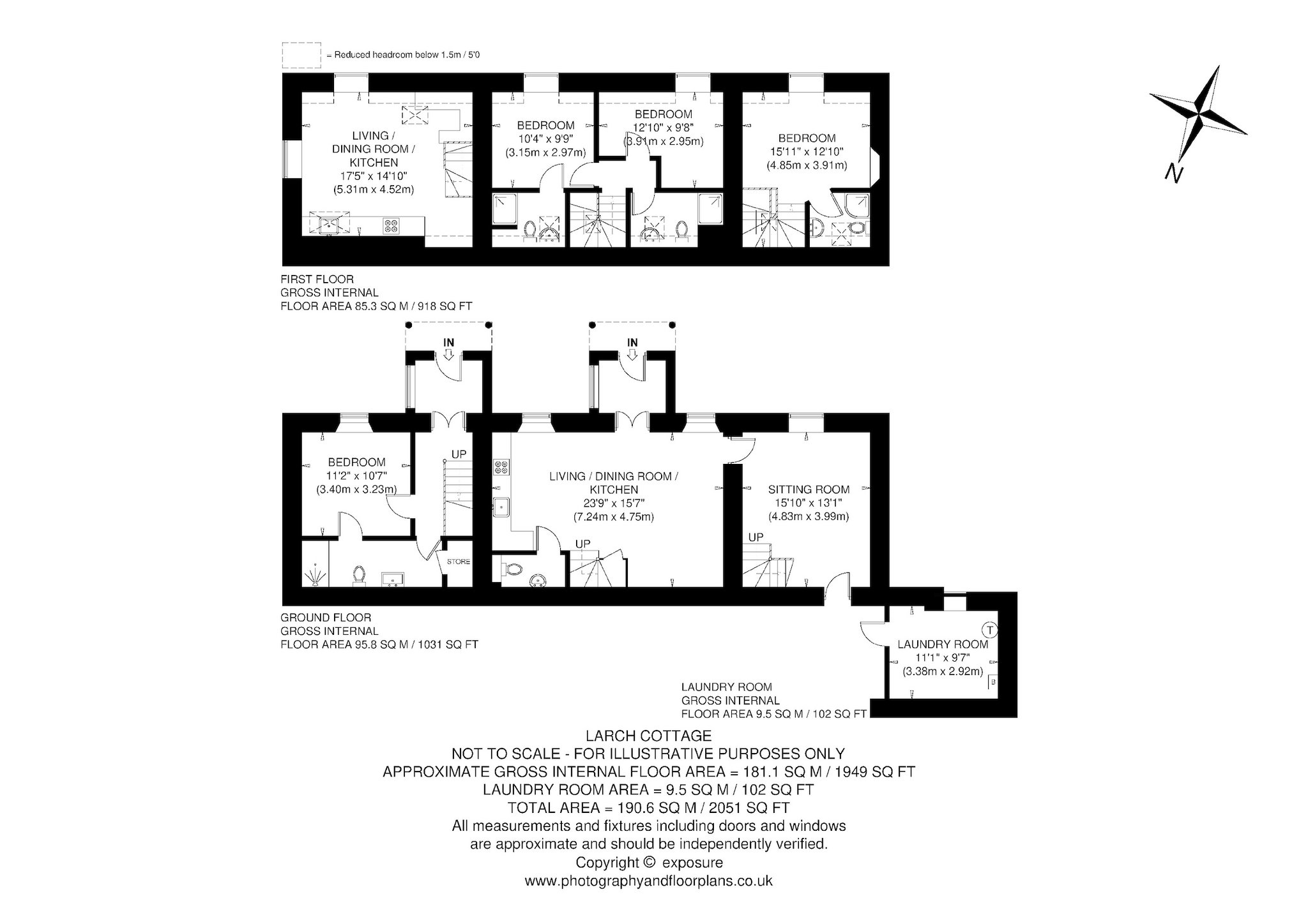
2,051 sq.ft

Tree

Private Garden

Telephone

Property Description

Two attractive cottages which have traditional cottage charm and have been successfully let but offer the potential to alter to one house subject to acquiring the necessary consents.

Accommodation

Ground Floor: Elm Cottage – Porch, Sitting Room, Open plan Kitchen/Dining/Living Room, Separate WC. Larch Cottage – Porch, Hall, Bedroom with jack and jill ensuite shower room.

First Floor: Elm Cottage – Three bedrooms all with ensuite shower room facilities.

Larch Cottage- Open plan kitchen/dining/living room.

Exterior: South facing garden, off road car parking and a laundry/boiler room accessed to the rear of the house.

Epc - C

More Details

Situation: Private Garden
Council Tax Band: Contact branch
Tenure: Freehold

Request More Details

Alastair Houlden MRICS

Alastair Houlden MRICS

Director of Country House Sales
Emma Collie

Emma Collie

Senior Sales Negotiator
Paul Banyard Cert CII (MP)

Paul Banyard Cert CII (MP)

Mortgage & Protection Advisor
Mortgage Calculator
Monthly payments
Please set an interest rate.

Your home may be repossessed if you do not keep up repayments on your mortgage.

There may be a fee for mortgage advice. The actual amount you pay will depend upon your circumstances. The fee is up to 1% but a typical fee is 0.3% of the amount borrowed.

Tax Calculator
LBTT calculator for properties purchased in Scotland. Stamp Duty calculator for properties purchased in England.
Land & buildings transaction tax (LBTT)
= £0
New build house with stone and timber cladding

Looking To Sell Or Let?

Rettie is one of the most trusted and well-respected names in property. Our unrivalled market knowledge helps people from around the world buy, sell, let and develop property in Scotland and the North East of England - from city apartments and rural cottages to large townhouses and prime country homes, farms and estates. We deal with some of the most prestigious properties on the market, but provide the same exceptional standards of service and value for money to all our clients.