4 Old Dalmore Gardens, Auchendinny, Penicuik, Midlothian, EH26 0RR

Auchendinny, Penicuik, Midlothian, EH26 0RR
Pin View on map

Fixed Price £595,000

House

Detached House

Bed

6 Bedrooms

Bathroom

3 Bathrooms

Reception

3 Reception Rooms

Size

2,896 sq.ft

Tree

Private Garden

Garage

Double Garage

Telephone

Property Description

Now at a New Fixed Price - £15,000 below HR valuation.

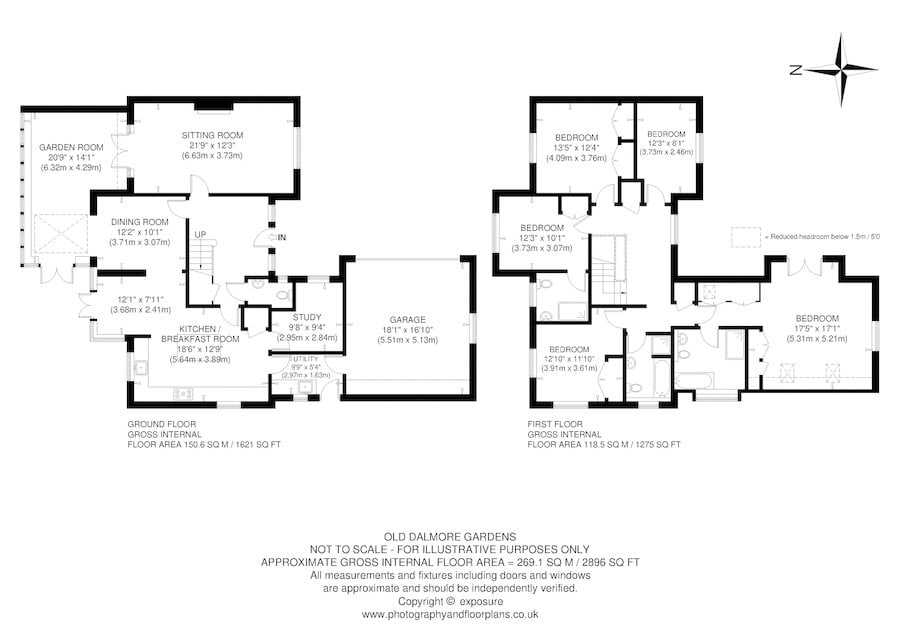
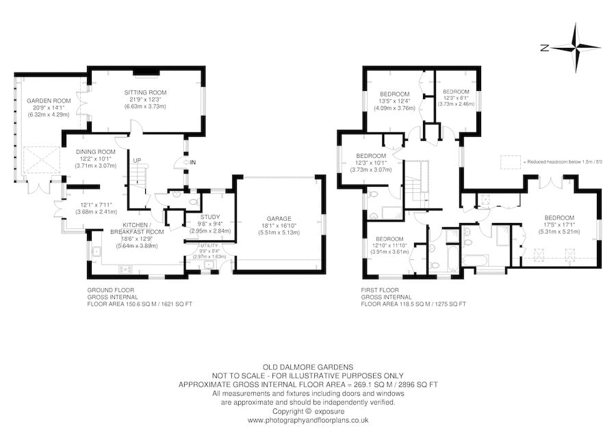
A spacious 5–6-bedroom family home measuring 2,896 sq ft, with a unique position overlooking the River North Esk, with a private patio with river views, rear garden, driveway and an integral double garage, within close proximity to Penicuik’s amenities and within commuting distance of Edinburgh.

Summary Of Accommodation

Ground Floor: Entrance Hall, Sitting Room, Kitchen/Breakfast Room, Dining Room, Garden Room, Study/Bedroom 6, Utility and Cloakroom.

First Floor: Landing, Principal Bedroom and En Suite Bathroom, Double Bedroom with En Suite Shower, Three further Double Bedrooms and a Bathroom.

Garden: At the side of the house is a large private patio that has direct views over the River North Esk, it is the perfect spot to unwind and enjoy the surrounding nature, a paved path leads to the rear garden which is predominantly laid to lawn with a high yew hedge providing privacy.

Garage: An integral double garage with electric door and is powered with electricity, with extensive built in shelving and a private driveway in front.

About: 0.12 Acres

More Details

EPC Band - Band B
Council Tax Band - Band G
Tenure - Freehold

Request More Details

Paul Banyard Cert CII (MP)

Paul Banyard Cert CII (MP)

Mortgage & Protection Advisor
Mortgage Calculator
Monthly payments
Please set an interest rate.

Your home may be repossessed if you do not keep up repayments on your mortgage. There may be a fee for mortgage advice. The actual amount you pay will depend upon your circumstances.

Tax Calculator
LBTT calculator for properties purchased in Scotland. Stamp Duty calculator for properties purchased in England.
Land & buildings transaction tax (LBTT)
= £0
New build house with stone and timber cladding

Looking To Sell Or Let?

Rettie is one of the most trusted and well-respected names in property. Our unrivalled market knowledge helps people from around the world buy, sell, let and develop property in Scotland and the North East of England - from city apartments and rural cottages to large townhouses and prime country homes, farms and estates. We deal with some of the most prestigious properties on the market, but provide the same exceptional standards of service and value for money to all our clients.