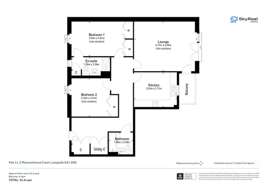
Flat 11, 2 Mansionhouse Court, Langside, Glasgow, G41 3DD
Property Description
A stunning, larger style two bedroomed flat, forming part of Cala's enormously popular Mansionhouse Court Development.
This building is entered via secure door entry system into an immaculate, communal reception hallway and stairwell, with the added benefit of lift access to all levels.
The accommodation of the flat itself comprises large L-shaped reception hallway separate storage cupboard and utility cupboard with a washer/dryer, spacious lounge with Juliet balcony and access out to your own private balcony, separate kitchen with a range of high-quality integrated appliances, base and wall mounted units, stone worktop and space for dining table and chairs. There are two generously sized double bedrooms, both with integrated wardrobes, with bedroom one enjoying a tiled en-suite with large shower enclosure, toilet, vanity unit, heated towel rail and a tiled bathroom with white three piece suite, heated towel rail, vanity unit and over-bath shower.
The property also benefits from double glazing, gas central heating, high quality floor coverings and a modern, neutral decor throughout. Externally there are pristinely kept communal gardens, an allocated parking space and a locked bike store.
Langside is a quiet yet convenient pocket in Glasgow's southside. It is incredibly convenient for the bars, cafes and eateries of Shawlands, Strathbungo and Battlefield as well as enjoying easy access to Langside, Queen's Park and Mount Florida train station.
More Details
Situation: BalconyCommunal Garden
Council Tax Band: E
Tenure: Freehold
Your home may be repossessed if you do not keep up repayments on your mortgage. There may be a fee for mortgage advice. The actual amount you pay will depend upon your circumstances.
Similar Properties
Looking To Sell Or Let?
Rettie is one of the most trusted and well-respected names in property. Our unrivalled market knowledge helps people from around the world buy, sell, let and develop property in Scotland and the North East of England - from city apartments and rural cottages to large townhouses and prime country homes, farms and estates. We deal with some of the most prestigious properties on the market, but provide the same exceptional standards of service and value for money to all our clients.
