The Cottage, Chapel Green, Earlsferry, By Leven, KY9 1AD
Property Description
Rarely available four/five-bedroom coastal home with a beautiful garden and exceptional views minutes from Earlsferry Beach
Deceptively spacious interiors spanning three floors with option for self-contained lower level
Breathtaking Firth of Forth, Earlsferry Beach, and Elie Golf Course views
Beautiful south-west-facing rear garden
Off-street parking with electic car charger
Idyllic East Neuk conservation setting
Lower level can be self-contained – with Holiday Licence
Easy access and walking distance to Earlsferry Beach
More Details
EPC Rating - C
Council Band - G
Tenure - Freehold
Property Details & Description
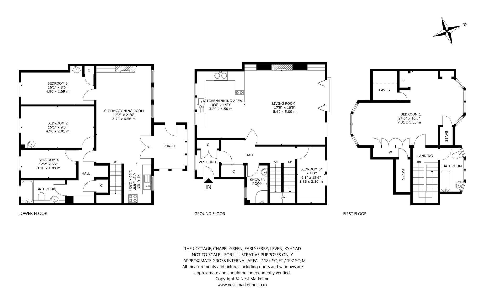
Accommodation
LOWER GROUND FLOOR
Porch, sitting/dining room/kitchen, three bedrooms, bathroom
GROUND FLOOR
Entrance vestibule, hallway, sitting room/kitchen, bedroom/study, shower room
FIRST FLOOR
Bedroom, bathroom
EXTERIOR
South-west-facing rear garden
Off-street parking with electric car charger
Situation
Within walking distance of Earlsferry Beach and High Street, The Cottage lies in a coveted East Neuk location. Peaceful and picturesque, Earlsferry boasts the historic 19th Hole tavern and restaurant whilst residents enjoy access to an array of amenities in neighbouring Elie including a convenience store, bakery, delicatessen, boutiques, and ice cream shops. Additionally, there is a historic parish church, popular restaurants and cafès. Ardross Farm Shop on the outskirts provides the perfect spot to enjoy local artisan produce. Primary school education is catered for and there is a high school in Anstruther. Further options for retail, dining, and leisure are available in the historic town of St Andrews, just under 14 miles away. Renowned as the “home of golf” it is also home to the internationally recognised University of St Andrews. Elie is within easy reach of neighbouring scenic fishing villages including Anstruther, St Monans, Crail, and Pittenweem. Dundee to the north is a forty-minute drive and Edinburgh is approx. 80 minutes by car or an hour by train from Leuchars.
Earlsferry and the connected village of Elie lie along the picturesque East Neuk of Fife. Surrounded by beautiful countryside and coastline including the award-winning beach at Elie, there are a wide variety of outdoor attractions for all ages to enjoy. There is an 18-hole golf course in Elie which has remained largely unchanged since 1895. Adjacent is the Elie Sports Club with a putting course, driving range, 9-hole golf course, five tennis courts, four short tennis courts, and a bowling club. Elie has its own cricket club based out of the popular Ship Inn. Elie Watersports offers a range of activities including windsurfing, sailing, and paddleboarding. State schooling is provided locally at the primary level with high school provision in Anstruther. Private options are available at St Leonards in St Andrews and at The High School of Dundee. An efficient bus service connects Elie to towns throughout Fife, and there are railway stations at Leuchars, Ladybank, Kirkcaldy and Markinch. Edinburgh International Airport is approximately one hour and twenty minutes away.
General Description
Built in 2001, this exceptional and rarely available three-storey coastal home in Earlsferry boasts breathtaking views of the coastline and Elie Golf Course, along with off-street parking and a stunning south-west-facing rear garden. Flanking a private parking area, a gated pathway takes you to the ground floor porch and into a warm carpeted entrance vestibule and hallway. To your left lies a light-filled open-plan dual-aspect kitchen and sitting room. Boasting spectacular south-easterly views across Earlsferry Beach, Elie Bay, and the Firth of Forth the inviting sitting room with bi-fold doors opening to a Juliet balcony is a wonderfully inviting space in which to relax and entertain. The elegant décor includes carpeting, a calm colour palette and a living flame fireplace housed in a natural stone mantle. Looking across to Elie Golf Course, the kitchen boasts white farmhouse style wall and floor cabinetry, complementary worktops and high-spec integrated appliances including a three oven AGA, NEFF electric oven with twin hob, NEFF dishwasher and Samsung fridge/freezer. Completing the layout is a shower room and a versatile bedroom/study. Moving to the first floor and the impressive principal suite awaits. Bathed in natural light it is a delightful retreat with a bespoke window seat looking south-west through dormer windows to the Firth of Forth and the other north-east to Elie Golf Course. Tastefully decorated it benefits from built-in wardrobes, under-eaves storage, and a well-appointed bathroom. The lower level, which can function as a self-contained apartment with its own main door and porch or as part of the home with access via the inner stairs, is equally impressive. Spanning the entire width of the property, the open-plan sitting/dining room and kitchen benefit from a bright south-easterly orientation. The sitting/dining room exudes cosiness, with plush carpeting, ambient lighting, and a serene colour palette. A change in flooring subtly separates it from the compact yet well-equipped kitchen, mirroring the farmhouse style of the main kitchen and fitted with high-spec appliances, including an Indesit electric oven and hob, AEG washer/dryer, and NEFF fridge and freezer. This level also offers three comfortable bedrooms, two doubles and a single each sharing access to a modern bathroom with a bath, wall-mounted shower, hidden cistern WC, and a washbasin built into vanity.
EXTERIOR
To the rear, the enclosed south-west-facing rear garden is accessed from the lower ground floor or via Chapel Green Lane. Meticulously landscaped at its heart is a lush lawn surrounded by established borders. A patio and terrace with gazebo sit either side and provide idyllic retreats for relaxation and entertaining. Residents benefit from easy access to Earlsferry Beach thanks to a public path passing the side of the garden.
There is a gated private parking area with electric car charger.
General Remarks & Information
Satellite Navigation
For the benefit of those with satellite navigation the property’s postcode is KY9 1AD
Fixtures & Fittings
Items specifically mentioned in the particulars of sale are included in the sale price. Additional items of furniture/contents may be available by separate negotiation.
Entry & Possession
Entry and vacant possession will be by mutual agreement and arrangement.
Services
Mains water, electricity, gas and drainage. Central heating provided by mains gas boiler.
Council Tax
Band G
EPC Rating
Band C
Local Authority
Fife Council
Home Report
A Home Report incorporating a Single Survey, Energy Performance Certificate and Property Questionnaire is available for parties genuinely interested in this property. Please contact us, either by telephone or via the website entry for this property, to request a copy. No charge is made for electronic copies; a paper copy can also be made available from our offices or by post, at a charge of £20 to cover reproduction and administrative costs.
Offers
Offers should be submitted in Scottish Legal Form to the selling agents Rettie & Co at 28 Bell Street, St Andrews KY16 9UX.
Servitude Rights, Burdens & Wayleaves
The property is sold subject to and with the benefit of all servitude rights, burdens, reservations and wayleaves including rights of access and rights of way, whether public or private, light, support, drainage, water and wayleaves for masts, pylons, stays, cable, drains and water, gas and other pipes whether contained in the title deeds or informally constituted and whether or not referred to above.
Particulars and Plans
These particulars and plan are believed to be correct, but they are in no way guaranteed. Any error, omission or misstatement shall not annul the sale or entitle any party to compensation nor in any circumstances give grounds for action at law.
Websites and Social Media
This property and other properties offered by Rettie South LLP can be viewed on our website at www.rettie.co.uk as well as our affiliated websites at www.rightmove.co.uk zoopla.com, www.primelocation.com, www.s1homes.com and www.thelondonoffice.co.uk
Proof and Source of Funds/Anti Money Laundering
Under the HMRC Anti Money Laundering legislation all offers to purchase a property on a cash basis or subject to mortgage require evidence of source of funds. This may include evidence of bank statements/funding source, mortgage or confirmation from a solicitor the purchaser has the funds to conclude the transaction. All individuals involved in the transaction are required to produce proof of identity and proof of address. This is acceptable either as original or certified documents.
Misrepresentations
1. The property is sold with all faults and defects, whether of condition or otherwise and neither the seller nor Rettie & Co, the selling agent, are responsible for such faults and defects, nor for any statement contained in the particulars of the property prepared by the said agent.
2. The Purchaser(s) shall be deemed to acknowledge that he has not entered into contact in reliance on the said statements, that he has satisfied himself as to the content of each of the said statements by inspection or otherwise and that no warranty or representation has been made by the seller or the said agents in relation to or in connection with the property.
3. Any error, omission or misstatement in any of the said statements shall not entitle the purchaser(s) to rescind or to be discharged from this contract, nor entitle either party to compensation or damages nor in any circumstances to give either party any cause for action.
Important Notice
Rettie South Llp, Their Clients And Any Joint Agents Give Notice That
1. They are not authorised to make or give any representations or warranties in relation to the property either in writing or by word of mouth. Any information given is entirely without responsibility on the part of the agents or the sellers. These particulars do not form part of any offer or contract and must not be relied upon as statements or representations of fact.
2. Any areas, measurements or distances are approximate. The text, photographs and plans are for guidance only and are not necessarily comprehensive and it should not be assumed that the property remains as photographed. Any error, omission or mis-statement shall not annul the sale, or entitle any party to compensation or recourse to action at law. It should not be assumed that the property has all necessary planning, building regulation or other consents, including for its current use. Rettie South LLP have not tested any services, equipment or facilities. Purchasers must satisfy themselves by inspection or otherwise and ought to seek their own professional advice.
3. All descriptions or references to condition are given in good faith only. Whilst every endeavour is made to ensure accuracy, please check with us on any points of especial importance to you, especially if intending to travel some distance. No responsibility can be accepted for expenses incurred in inspecting properties which have been sold or withdrawn.
Your home may be repossessed if you do not keep up repayments on your mortgage.
There may be a fee for mortgage advice. The actual amount you pay will depend upon your circumstances. The fee is up to 1% but a typical fee is 0.3% of the amount borrowed.
Similar Properties
Looking To Sell Or Let?
Rettie is one of the most trusted and well-respected names in property. Our unrivalled market knowledge helps people from around the world buy, sell, let and develop property in Scotland and the North East of England - from city apartments and rural cottages to large townhouses and prime country homes, farms and estates. We deal with some of the most prestigious properties on the market, but provide the same exceptional standards of service and value for money to all our clients.
