Property Description
Five-bedroom detached home in idyllic setting close to Ladybank and Cupar
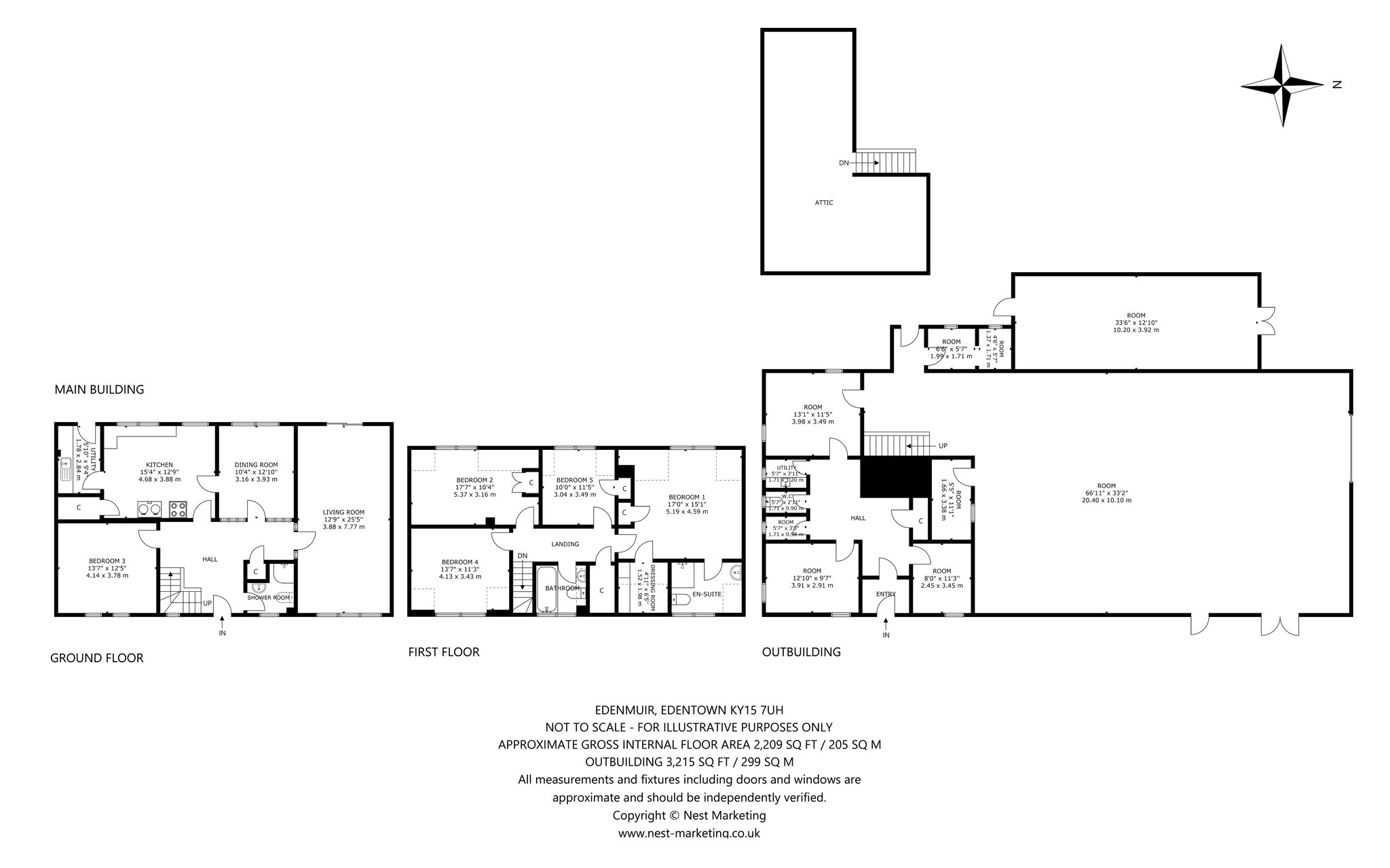
Five-bedroom detached home with attic
East and west-facing orientation
Generous and bright layout
Substantial gardens, grounds, and driveway surrounded by woodlands
Close to Ladybank and Cupar
May be purchased as a whole or in two lots: lot 1 house/lot 2 workshop and ground
Lot 1 - House - O/O £395,000
Lot 2 - Workshop - O/O £150,000
More Details
EPC Rating - D 
Council Band - F 
Tenure - Freehold
Property Details & Description
Accommodation
GROUND FLOOR
Entrance hallway, living room, dining room, kitchen, utility, bedroom, shower room
FIRST FLOOR
Four bedrooms, one with en-suite and dressing area, bathroom
EXTERIOR
Substantial gardens and grounds
Driveway 
Situation
Lying in a tranquil hamlet, Edenmuir just outside the village of Ladybank enjoys a picturesque location in the Fife countryside. Welcoming and thriving, Ladybank boasts a popular golf club with a restaurant, post office, convenience stores, a doctor’s surgery, pharmacy, vet, pub, butcher’s shop, café, church, and a primary school. The highly desirable market town of Cupar, just over a ten-minute drive provides a wealth of retail, dining, and leisure amenities as well as secondary schooling. The ancient university town of St Andrews globally renowned as ‘The Home of Golf’ is a mere thirty-minute drive. For an even greater choice of cultural and visitor attractions, vibrant Dundee, home to the V&A and the revitalized waterfront with the famous RRS Discovery is close by. Edinburgh is approximately 80 minutes to the south. The characterful fishing villages and beautiful beaches that make up this scenic part of Scotland including Anstruther, St Monans, Crail, Elie, and Pittenweem are all easily accessible as is the Lomond Hills Regional Park. 
The area boasts various visitor attractions including Cairnie Fruit Farm, The Scottish Deer Centre, Fife Zoo, and National Trust for Scotland properties such as Hill of Tarvit House, Kellie Castle, and Falkland Palace. Alongside primary schooling in the village and secondary schooling in Cupar, there are private options available at St Leonards in St Andrews and at The High School of Dundee. There is a train station in Ladybank on the Aberdeen to Edinburgh line, with Edinburgh International Airport an hour away by car. Domestic flights are available from Dundee.
General Description
Set in a peaceful location just minutes from the village of Ladybank, this well-presented five-bedroom detached family home lying in substantial grounds offers generous, bright, and comfortable accommodation. A welcoming hallway leads into an expansive living room that spans the full length of the property. With a desirable east and west-facing dual-aspect, this inviting space is filled with natural light and features plush carpeting, a soft, neutral colour palette, and sliding doors that open directly to the rear garden, perfect for entertaining or relaxing with family. Beyond the living room, you pass a versatile dining room leading into a particularly spacious kitchen and adjoining utility room with garden access. While offering scope for cosmetic updates, the kitchen is well-equipped with a range cooker, ample base units, generous worktop space, and room for freestanding appliances. Also on the ground floor is a twin-windowed double bedroom and a modern shower room. Upstairs, a landing with built-in storage leads to four generously sized double bedrooms. The west-facing principal bedroom to the rear, benefits from a dedicated dressing area, built-in cupboard, and an en-suite shower room with a WC, washbasin, and chrome towel radiator. The remaining bedrooms, all well-presented and carpeted, share access to a family bathroom with a bath, WC, and washbasin. A large attic offers additional storage. 
EXTERIOR
Surrounded by woodlands, the property is set on a generous, peaceful, and private plot, offering delightful outdoor spaces on all sides including a spacious lawn bordered by an array of established plants, shrubs, and mature trees, perfect for dining and relaxing. There is an expansive east-facing front garden that is also lawned with a variety of plants.
Gardeners will love the inclusion of a greenhouse.
A gravel driveway offers ample off-street parking for multiple vehicles.
General Remarks & Information
Viewing
Viewing is strictly by appointment with the selling agents Rettie & Co, 28 Bell Street, St Andrews KY16 9UX. Tel: 01334 237700.
Satellite Navigation
The property’s postcode is KY15 7UH
Fixtures and Fittings
Only items specifically mentioned in the particulars of sale are included in the sale price.
Entry & Possession
Entry and vacant possession will be by mutual agreement and arrangement.
Services
Mains water, electric and drainage
Oil central heating 
Local Authority
Fife Council
EPC Rating
D
Council Tax
F
Home Report
A Home Report incorporating a Single Survey, Energy Performance Certificate and Property Questionnaire is available for parties genuinely interested in this property. Please contact us, either by telephone or via the website entry for this property, to request a copy. No charge is made for electronic copies; a paper copy can also be made available from our offices or by post, at a charge of £20 to cover reproduction and administrative costs.
Offers
Offers should be submitted in Scottish Legal Form to the selling agents Rettie & Co at 28 Bell Street, St Andrews KY16 9UX.
Servitude Rights, Burdens & Wayleaves
The property is sold subject to and with the benefit of all servitude rights, burdens, reservations and wayleaves including rights of access and rights of way, whether public or private, light, support, drainage, water and wayleaves for masts, pylons, stays, cable, drains and water, gas and other pipes whether contained in the title deeds or informally constituted and whether or not referred to above.
Particulars and Plans
These particulars and plan are believed to be correct, but they are in no way guaranteed. Any error, omission or misstatement shall not annul the sale or entitle any party to compensation nor in any circumstances give grounds for action at law.
Websites and Social Media
This property and other properties offered by Rettie & Co can be viewed on our website at www.rettie.co.uk as well as our affiliated websites at www.rightmove.co.uk, www.onthemarket.com and www.thelondonoffice.co.uk. In addition, our social media platforms are facebook.com, RettieTownandCountry, twitter.com, RettieandCo, Instagram and LinkedIn.
Proof and Source of Funds/Anti Money Laundering
Under the HMRC Anti Money Laundering legislation all offers to purchase a property on a cash basis or subject to mortgage require evidence of source of funds. This may include evidence of bank statements/funding source, mortgage or confirmation from a solicitor the purchaser has the funds to conclude the transaction. All individuals involved in the transaction are required to produce proof of identity and proof of address. This is acceptable either as original or certified documents.
Misrepresentations
1. The property is sold with all faults and defects, whether of condition or otherwise and neither the seller nor Rettie & Co, the selling agent, are responsible for such faults and defects, nor for any statement contained in the particulars of the property prepared by the said agent.
2. The Purchaser(s) shall be deemed to acknowledge that he has not entered into contact in reliance on the said statements, that he has satisfied himself as to the content of each of the said statements by inspection or otherwise and that no warranty or representation has been made by the seller or the said agents in relation to or in connection with the property.
3. Any error, omission or misstatement in any of the said statements shall not entitle the purchaser(s) to rescind or to be discharged from this contract, nor entitle either party to compensation or damages nor in any circumstances to give either party any cause for action.
Important Notice
Rettie & Co, their clients and any joint agents give notice that:
1. They are not authorised to make or give any representations or warranties in relation to the property either in writing or by word of mouth. Any information given is entirely without responsibility on the part of the agents or the sellers. These particulars do not form part of any offer or contract and must not be relied upon as statements or representations of fact.
2. Any areas, measurements or distances are approximate. The text, photographs and plans are for guidance only and are not necessarily comprehensive and it should not be assumed that the property remains as photographed. Any error, omission or misstatement shall not annul the sale, or entitle any party to compensation or recourse to action at law. It should not be assumed that the property has all necessary planning, building regulation or other consents, including for its current use. Rettie & Co. have not tested any services, equipment or facilities. Purchasers must satisfy themselves by inspection or otherwise and ought to seek their own professional advice.
3. All descriptions or references to condition are given in good faith only. Whilst every endeavour is made to ensure accuracy, please check with us on any points of especial importance to you, especially if intending to travel some distance. No responsibility can be accepted for expenses incurred in inspecting properties which have been sold or withdrawn.
Your home may be repossessed if you do not keep up repayments on your mortgage. There may be a fee for mortgage advice. The actual amount you pay will depend upon your circumstances.
Similar Properties
Looking To Sell Or Let?
Rettie is one of the most trusted and well-respected names in property. Our unrivalled market knowledge helps people from around the world buy, sell, let and develop property in Scotland and the North East of England - from city apartments and rural cottages to large townhouses and prime country homes, farms and estates. We deal with some of the most prestigious properties on the market, but provide the same exceptional standards of service and value for money to all our clients.

