27 Golf Street, Ladybank, Cupar, Fife, KY15 7NT
Property Description
Charming two-bedroom Ladybank home
Two-bedroom semi-detached bungalow
Generously proportioned accommodation
Bright and well-presented interiors
Peaceful village setting
Front and rear gardens
Close to Cupar, St Andrews, and Dundee
More Details
EPC Rating - D 
Council Band - B
Tenure - Freehold
Property Details & Description
Accommodation 
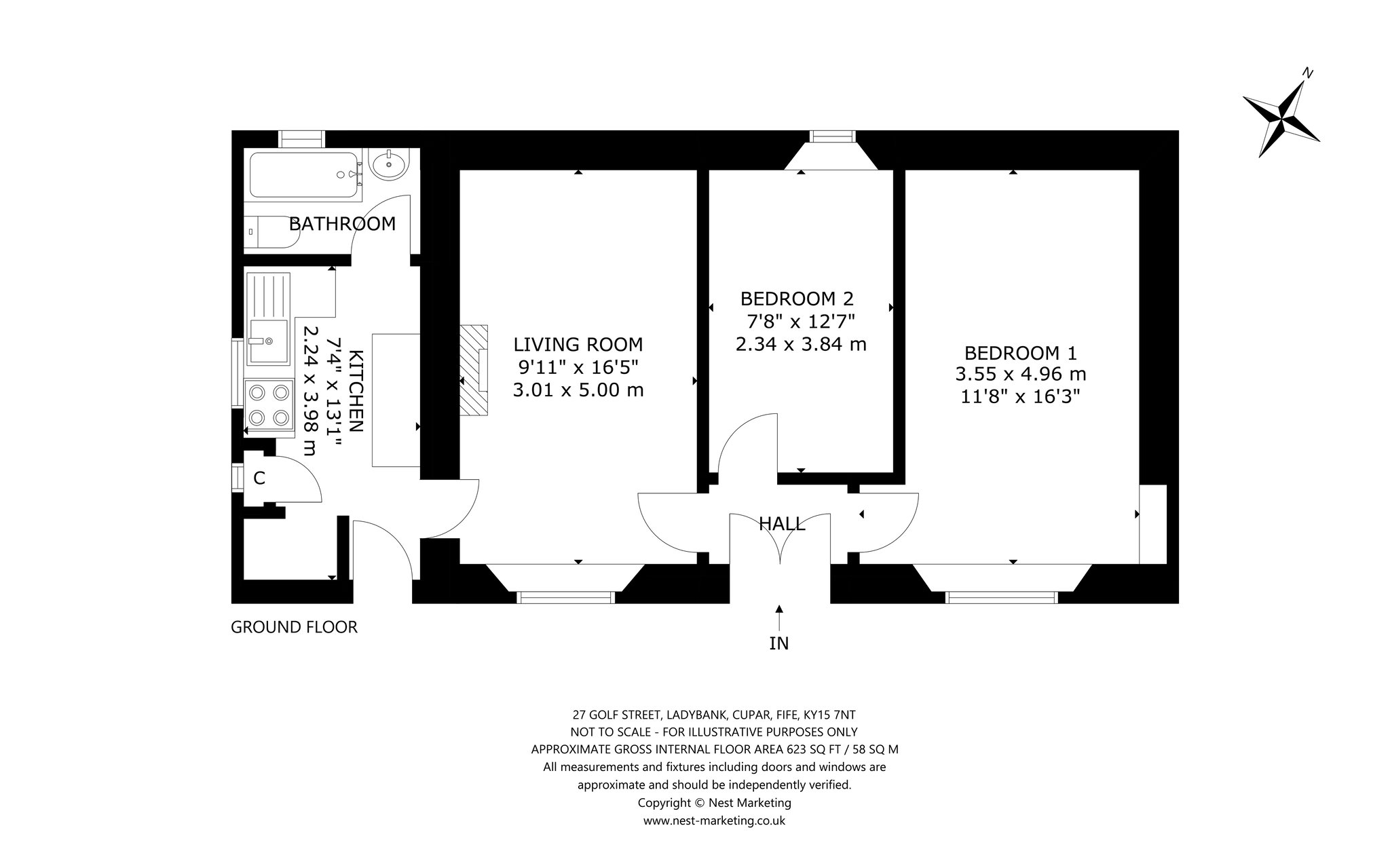
GROUND FLOOR 
Entrance hallway, living room, kitchen, two bedrooms, bathroom
EXTERIOR
Enclosed front and rear gardens 
On-street parking
Situation
Ladybank is a small village close to Cupar. Welcoming and thriving, Ladybank boasts a popular golf club with a restaurant, post office, convenience stores, a doctor’s surgery, pharmacy, vet, pub, butcher’s shop, café, church, and a primary school. The highly desirable market town of Cupar, just a ten-minute drive away provides a wealth of retail, dining, and leisure amenities as well as schooling. The ancient university town of St Andrews globally renowned as ‘The Home of Golf’ is a mere thirty-minute drive. For an even greater choice of cultural and visitor attractions, vibrant Dundee, home to the V&A and the revitalized waterfront with the famous RRS Discovery is close by. Edinburgh is approximately 80 minutes to the south. The characterful fishing villages and beautiful beaches that make up this scenic part of Scotland including Anstruther, St Monans, Crail, Elie, and Pittenweem are all easily accessible as are the Lomond Hills.
The area boasts various visitor attractions including Cairnie Fruit Farm, The Scottish Deer Centre, Fife Zoo, and National Trust for Scotland properties such as Hill of Tarvit House, Kellie Castle, and Falkland Palace. Alongside primary schooling in the village and secondary schooling in Cupar, there are private options available at St Leonards in St Andrews and at The High School of Dundee. There is a train station in Ladybank on the Aberdeen to Edinburgh line, with Edinburgh International Airport an hour away by car. Domestic flights are available from Dundee.
General Description
Peacefully situated in the small village of Ladybank, this two-bedroom semi-detached home offers bright, spacious, and well-presented interiors complemented by private gardens, making it an appealing choice for a wide range of buyers. Set behind mature hedging, a charming front garden frames the entrance. Stepping inside, an inviting hallway is finished with a neutral décor and soft carpeting. To the left, a generously sized living room extends the full length of the property, its large picture window flooding the space with natural light and offering views of the front garden. Tastefully decorated and carpeted, the room is centred around an open fireplace set within a tiled surround, creating a warm and welcoming ambience. Flowing seamlessly from here, the kitchen is fitted with sleek handleless wall and floor units in a natural tone, complemented by smooth black worktops and ample space for freestanding appliances. A built-in cupboard adds practical storage, while a door provides direct access to the side of the home. The kitchen also connects to a modern bathroom featuring a bath with a wall-mounted shower, WC, and washbasin. Returning to the hallway, the principal double bedroom offers a spacious and restful retreat, enhanced by an appealing décor and tranquil views over the front garden. A second double bedroom overlooking the rear garden, completes the accommodation.
EXTERIOR
Tucked behind mature hedging, the front garden features a neat lawn complemented by decorative stones, plants, and trees. To the rear, a private and enclosed garden offers a peaceful retreat, with a lawn framed by mature trees, established borders, paving, and planting. A practical shed provides valuable storage, while ample on-street parking is available.
General Remarks & Information
Satellite Navigation
For the benefit of those with satellite navigation the property’s postcode is KY15 7NT
Fixtures & Fittings
Only items specifically mentioned in the particulars of sale are included in the sale price.
Entry & Possession
Entry and vacant possession will be by mutual agreement and arrangement.
Services
Mains electric, water, gas and drainage.
Council Tax
B
EPC Rating
D
Local Authority
Fife Council
Offers
Offers should be submitted in Scottish Legal Form to the selling agents Rettie & Co at 28 Bell Street, St Andrews KY16 9UX.
Deposit
A deposit of 10% of the purchase price may be required. It will be paid within 7 days of the conclusion of Missives. The deposit will be non-returnable in the event of the Purchaser(s) failing to complete the sale for reasons not attributable to the Seller or his agents.
Servitude Rights, Burdens & Wayleaves
The property is sold subject to and with the benefit of all servitude rights, burdens, reservations and wayleaves including rights of access and rights of way, whether public or private, light, support, drainage, water and wayleaves for masts, pylons, stays, cable, drains and water, gas and other pipes whether contained in the title deeds or informally constituted and whether or not referred to above. 
Particulars and Plans
These particulars and plan are believed to be correct, but they are in no way guaranteed. Any error, omission or misstatement shall not annul the sale or entitle any party to compensation nor in any circumstances give grounds for action at law. 
Websites and Social Media
This property and other properties offered by Rettie South LLP can be viewed on our website at www.rettie.co.uk as well as our affiliated websites at www.rightmove.co.uk zoopla.com, www.primelocation.com, www.s1homes.com and www.thelondonoffice.co.uk
Proof and Source of Funds/Anti Money Laundering
Under the HMRC Anti Money Laundering legislation all offers to purchase a property on a cash basis or subject to mortgage require evidence of source of funds. This may include evidence of bank statements/funding source, mortgage or confirmation from a solicitor the purchaser has the funds to conclude the transaction. All individuals involved in the transaction are required to produce proof of identity and proof of address. This is acceptable either as original or certified documents.
Misrepresentations
1. The property is sold with all faults and defects, whether of condition or otherwise and neither the seller nor Rettie & Co, the selling agent, are responsible for such faults and defects, nor for any statement contained in the particulars of the property prepared by the said agent.
2. The Purchaser(s) shall be deemed to acknowledge that he has not entered into contact in reliance on the said statements, that he has satisfied himself as to the content of each of the said statements by inspection or otherwise and that no warranty or representation has been made by the seller or the said agents in relation to or in connection with the property.
3. Any error, omission or misstatement in any of the said statements shall not entitle the purchaser(s) to rescind or to be discharged from this contract, nor entitle either party to compensation or damages nor in any circumstances to give either party any cause for action.
Important Notice
Rettie South Llp, Their Clients And Any Joint Agents Give Notice That
1. They are not authorised to make or give any representations or warranties in relation to the property either in writing or by word of mouth. Any information given is entirely without responsibility on the part of the agents or the sellers. These particulars do not form part of any offer or contract and must not be relied upon as statements or representations of fact.
2. Any areas, measurements or distances are approximate. The text, photographs and plans are for guidance only and are not necessarily comprehensive and it should not be assumed that the property remains as photographed. Any error, omission or mis-statement shall not annul the sale, or entitle any party to compensation or recourse to action at law. It should not be assumed that the property has all necessary planning, building regulation or other consents, including for its current use. Rettie South LLP have not tested any services, equipment or facilities. Purchasers must satisfy themselves by inspection or otherwise and ought to seek their own professional advice.
3. All descriptions or references to condition are given in good faith only. Whilst every endeavour is made to ensure accuracy, please check with us on any points of especial importance to you, especially if intending to travel some distance. No responsibility can be accepted for expenses incurred in inspecting properties which have been sold or withdrawn.
Your home may be repossessed if you do not keep up repayments on your mortgage. There may be a fee for mortgage advice. The actual amount you pay will depend upon your circumstances.
Similar Properties
Looking To Sell Or Let?
Rettie is one of the most trusted and well-respected names in property. Our unrivalled market knowledge helps people from around the world buy, sell, let and develop property in Scotland and the North East of England - from city apartments and rural cottages to large townhouses and prime country homes, farms and estates. We deal with some of the most prestigious properties on the market, but provide the same exceptional standards of service and value for money to all our clients.
