Property Description
Anworth Cottage is a most attractive and deceptively spacious three-bedroom home, quietly situated on a peaceful country lane within the hamlet of Giffordtown, near Cupar. Upgraded and beautifully presented, the cottage successfully combines traditional charm with modern convenience, offering generous accommodation enhanced by a bright conservatory, a delightful landscaped garden, and excellent parking with both a garage and car port.
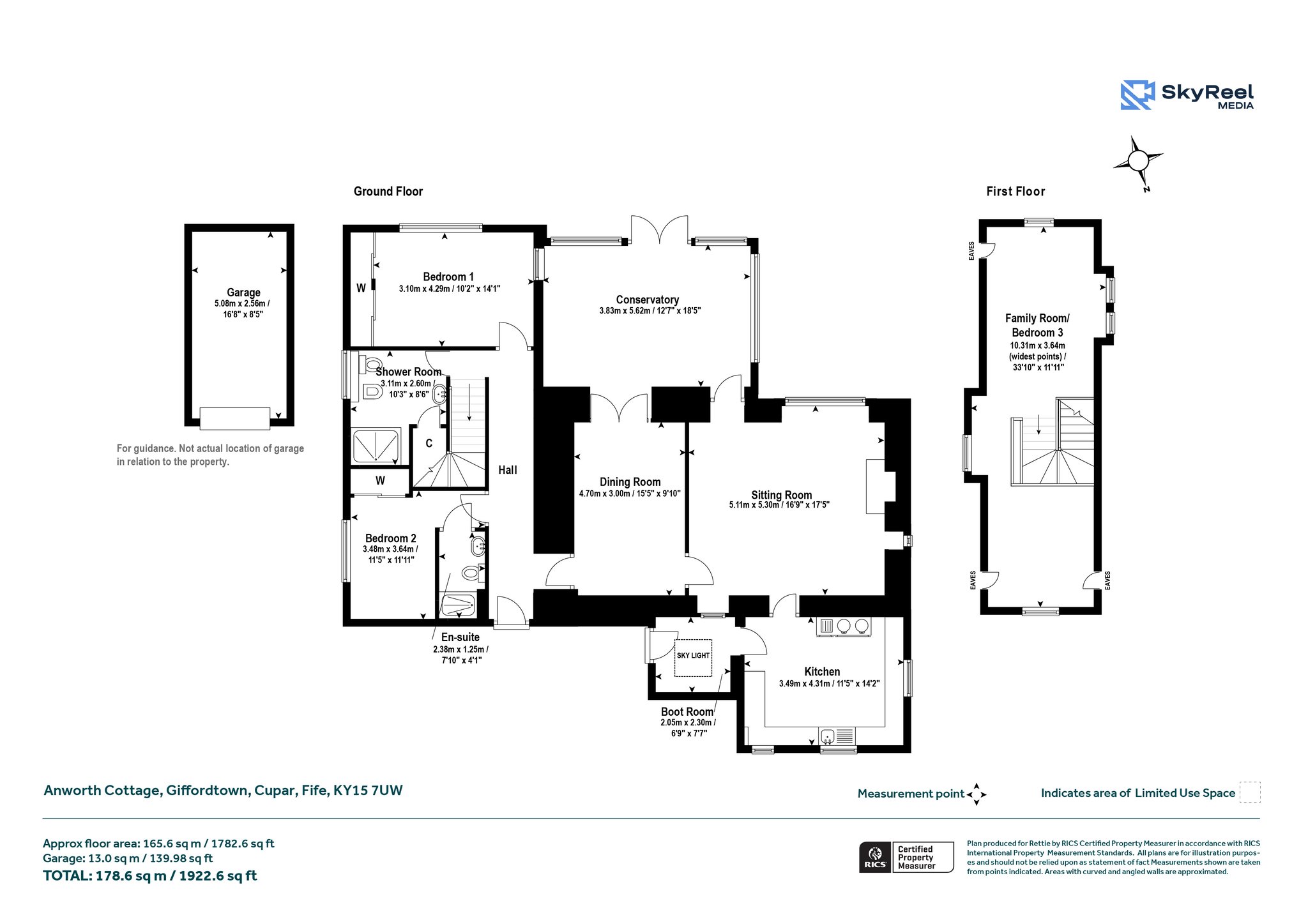
Inside, the property exudes warmth and character, with the sitting room centred around a wood-burning stove and flowing through to both the dining room and conservatory. The conservatory itself is a particular highlight, providing a tranquil retreat from which to enjoy the beautiful gardens and surrounding countryside. The country-style dining kitchen, complete with Aga cooker and warming plate, adds to the home’s appeal, offering a sociable space for everyday living.
The bedroom accommodation is both flexible and generous. The bedroom one is notably spacious, with fitted wardrobes, while the second double bedroom also boasts fitted wardrobes and benefits from a stylish en-suite shower room. A contemporary family shower room with walk-in accessible shower serves the ground floor. The upper level provides a superb third bedroom or family room, with Velux windows capturing far-reaching views and eaves storage.
Externally, Anworth Cottage is equally impressive. The beautifully landscaped garden is thoughtfully planted with mature shrubs and borders, offering both colour and interest throughout the seasons. A driveway provides ample off-street parking, complemented by a car port and garage. The property further benefits from mains gas, mains drainage and double glazing, ensuring modern comfort and efficiency alongside its traditional charm.
Giffordtown is a small, peaceful hamlet set amidst the picturesque Fife countryside, yet ideally placed for access to the nearby towns of Cupar and Kinross. The surrounding area offers a wealth of outdoor pursuits, with walking, cycling, and golfing all easily accessible. Everyday amenities, supermarkets, and excellent schooling can be found in Cupar (approximately 4 miles), while the historic town of St Andrews, renowned worldwide as the “Home of Golf”, lies around 15 miles to the east.
The property is also well placed for commuters, with convenient road links to Dundee, Perth, Kirkcaldy, and Glenrothes. Cupar benefits from a railway station on the main Aberdeen to London line, offering direct services to Edinburgh, while Edinburgh Airport (approx. 40 miles) provides a wide range of domestic and international flights.
More Details
EPC Rating - D
Council Band - E
Tenure - Freehold
Ground Floor
• Entrance hall
• Sitting room with wood-burning stove
• Dining room
• Conservatory with garden views
• Dining kitchen with Aga cooker
• Principal bedroom with fitted wardrobes
• Double bedroom with en-suite shower room
• Modern family shower room with walk-in accessible shower
First Floor
• Bedroom three / family room with Velux windows and eaves storage
Outside
• Beautifully landscaped gardens
• Driveway with car port and garage
General Remarks & Information
Fixtures and Fittings:
Only appliances specifically mentioned in the sales particulars are included in the sale price. In all other aspects the treatment of fixtures and fittings within the relevant Conveyancing Standard Clauses apply.
Services:
Gas heating, mains water, electricity, broadband, telephone (subject to telephone providers’ regulations).
Viewing:
By appointment through St Andrews. 28 Bell Street, St Andrews, KY16 9UX. Email: standrews@rettie.co.uk Tel: 01334 237 700
Offers:
Offers should be submitted in Scottish Legal Form to the selling agents Rettie & Co. A closing date by which offers must be submitted may be fixed later. Please note that interested parties are advised to register their interest with the selling agents in order that they may be advised should a closing date be set. The seller reserves the right to accept any offer at any time.
Postcode:
KY15 7UW
Tenure:
FREEHOLD
Internet Website
This property and other properties offered by Rettie & Co. & Rettie LLP's. can be viewed on our website at www.rettie.co.uk as well as Rightmove, OnTheMarket and The London Office.
Servitude Rights, Burdens & Wayleaves
The property is sold subject to and with the benefit of all servitude rights, burdens, reservations and wayleaves including rights of access and rights of way, whether public or private, light, support, drainage, water and wayleaves for masts, pylons, stays, cable, drains and water, gas and other pipes whether contained in the title deeds or informally constituted and whether or not referred to above.
Important Notice
Rettie, Their Clients And Any Joint Agents Give Notice That
They are not authorised to make or give any representations or warranties in relation to the property either in writing or by word of mouth. Any information given is entirely without responsibility on the part of the agents or the sellers. These particulars do not form part of any offer or contract and must not be relied upon as statements or representations of fact.
All Rettie floorplans are drawn to RICS standard. The text, photographs and plans are for guidance only and are not necessarily comprehensive and it should not be assumed that the property remains as photographed. Any error, omission or mis-statement shall not annul the sale or entitle any party to compensation or recourse to action at law. It should not be assumed that the property has all necessary planning, building regulation or other consents, including for its current use. Rettie & Co. & Rettie LLP’s have not tested any services, equipment or facilities. Purchasers must satisfy themselves by inspection or otherwise and ought to seek their own professional advice.
All descriptions or references to condition are given in good faith only. Whilst every endeavour is made to ensure accuracy, please check with us on any points of especial importance to you, especially if intending to travel some distance. No responsibility can be accepted for expenses incurred in inspecting properties which have been sold or withdrawn.
Proof and source of Funds/Anti Money Laundering
Under the HMRC Anti Money Laundering legislation all offers to purchase a property on a cash basis or subject to mortgage require evidence of source of funds. This may include evidence of bank statements/funding source, mortgage or confirmation from a solicitor the purchaser has the funds to conclude the transaction.
All individuals involved in the transaction are required to produce proof of identity and proof of address. Rettie use electronic verification, if this is not possible original documents are acceptable.
Misrepresentations
The property is sold with all faults and defects, whether of condition or otherwise and neither the seller nor Rettie & Co. or Rettie LLP’s, the selling agent, are responsible for such faults and defects, nor for any statement contained in the particulars of the property prepared by the said agent.
The Purchaser(s) shall be deemed to acknowledge that they have not entered into contract in reliance on the said statements, that they are satisfied themselves as to the content of each of the said statements by inspection or otherwise and that no warranty or representation has been made by the seller or the said agents in relation to or in connection with the property.
Any error, omission or misstatement in any of the said statements shall not entitle the purchaser(s) to rescind or to be discharged from this contract, nor entitle either party to compensation or damages nor in any circumstances to give either party any cause for action.
Your home may be repossessed if you do not keep up repayments on your mortgage.
There may be a fee for mortgage advice. The actual amount you pay will depend upon your circumstances. The fee is up to 1% but a typical fee is 0.3% of the amount borrowed.
Similar Properties
Looking To Sell Or Let?
Rettie is one of the most trusted and well-respected names in property. Our unrivalled market knowledge helps people from around the world buy, sell, let and develop property in Scotland and the North East of England - from city apartments and rural cottages to large townhouses and prime country homes, farms and estates. We deal with some of the most prestigious properties on the market, but provide the same exceptional standards of service and value for money to all our clients.
