Rosebay, 4 Grange Road, St. Andrews, Fife, KY16 8LF

St. Andrews, Fife, KY16 8LF
New
Pin View on map

Offers Over £545,000

House

Detached House

Bed

2 Bedrooms

Bathroom

2 Bathrooms

Reception

3 Reception Rooms

Tree

Private Garden

Garage

Garage

Parking

Off Street Parking

Telephone

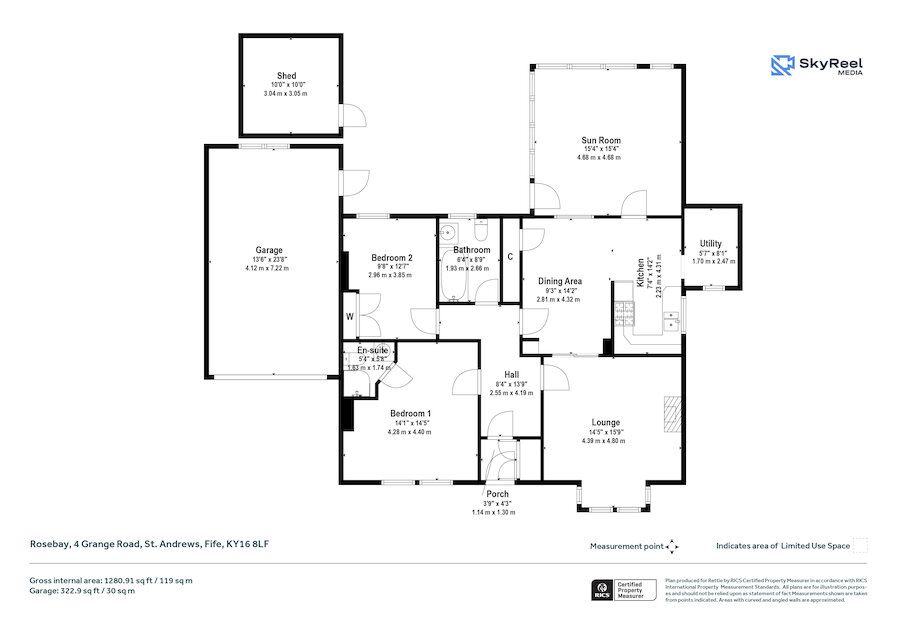
Property Description

Rosebay is a delightful two-bedroom detached bungalow, ideally located just a few minutes’ walk from the sea and the centre of St Andrews, offering bright, well-proportioned accommodation arranged over a single level. The property has a welcoming and practical layout, with well-defined living and bedroom spaces that enjoy excellent natural light throughout. To the front, the lounge is a comfortable reception room featuring a broad bay window and a contemporary gas fireplace, creating an inviting focal point. Sliding doors connect the lounge to a spacious dining area, providing an ideal setting for everyday living and entertaining.

The kitchen is fitted with a generous range of wall and base units, complemented by a gas hob and ample worktop space, with a useful adjoining utility/store cupboard providing additional storage. A particular feature of the home is the sun room to the rear, which enjoys pleasant views across the private garden and offers a quiet, light-filled space to relax. Bedroom one is situated to the front of the property and benefits from an en-suite shower room, while the second bedroom, located to the rear, enjoys garden aspects and includes a built-in storage cupboard. A well-appointed family bathroom completes the accommodation.

Externally, the property sits within well-maintained private gardens and further benefits from a driveway, attached garage and attractive outdoor spaces, offering an ideal balance of relaxation and practicality. To the rear, the garden is laid mainly to lawn and enjoys a pleasant open outlook. A raised timber deck provides an excellent space for outdoor seating and entertaining, with direct access from the property. A gently sloping wooden ramp leads from the deck down to the lawn, enhancing accessibility. The garden is framed by established shrubs and greenery, creating a welcome sense of privacy, while a useful timber garden shed offers valuable outdoor storage.

A particular highlight of Rosebay is its outstanding location, within comfortable walking distance of the town’s renowned West Sands and East Sands beaches. These iconic stretches of unspoilt coastline offer miles of golden sand, breathtaking views and superb scenic walking routes, making the property especially appealing to those seeking a relaxed coastal lifestyle.

More Details

EPC Rating - D
Counncil Tax Band - E
Tenure - Freehold

Summary of Accommodation

  • Entrance hall
  • Lounge with bay window and gas feature fireplace
  • Dining room with sliding doors from the lounge
  • Fitted kitchen with gas hob and ample storage
  • Utility / store cupboard
  • Sun room overlooking the rear garden
  • Bedroom one with en-suite shower room
  • Second bedroom with storage cupboard
  • Bathroom with electric shower over bath
  • Well-maintained private gardens with raised timber deck
  • Attached garage and driveway
  • A few minutes' walk to the sea and the centre of St Andrews

Location
Located on Grange Road, Rosebay occupies an enviable position within a well established and highly sought-after residential area of St Andrews. The property is just a few minutes’ walk from the sea and the town centre, with miles of unspoilt coastline and scenic walking routes close at hand. St Andrews is internationally renowned for its historic university, world-class golf courses and vibrant cultural scene, while also offering a strong sense of community and excellent day-to-day convenience.

The town centre offers a wide selection of independent shops, cafés and restaurants, alongside essential services and leisure facilities. Excellent schooling is available locally at primary and secondary levels, with further education provided by the University of St Andrews. Regular bus services connect the town to Dundee, Cupar and surrounding areas, while mainline rail services to Edinburgh, Aberdeen and beyond are available from nearby Leuchars station. This desirable setting combines coastal living with easy access to amenities, making it an ideal location for a wide range of buyers.

General Remarks & Information

Fixtures and Fittings:
Only appliances specifically mentioned in the sales particulars are included in the sale price. In all other aspects the treatment of fixtures and fittings within the relevant Conveyancing Standard Clauses apply.

Services:
Gas heating, mains water, electricity, broadband, telephone (subject to telephone providers’ regulations).

Viewing:
By appointment through Rettie St Andrews. 28 Bell Street, St Andrews, KY16 9UX. Email: standrews@rettie.co.uk Tel: 01334 237 700

Offers:
Offers should be submitted in Scottish Legal Form to the selling agents Rettie & Co. A closing date by which offers must be submitted may be fixed later. Please note that interested parties are advised to register their interest with the selling agents in order that they may be advised should a closing date be set. The seller reserves the right to accept any offer at any time.

Council Tax Band:
E

EPC Rating:
D

Postcode:
KY16 8LF

Tenure:
Freehold

Particulars Prepared:
15th April 2026

Internet Website
This property and other properties offered by Rettie & Co. & Rettie LLP's. can be viewed on our website at www.rettie.co.uk as well as Rightmove, OnTheMarket and The London Office.

Servitude Rights, Burdens & Wayleaves
The property is sold subject to and with the benefit of all servitude rights, burdens, reservations and wayleaves including rights of access and rights of way, whether public or private, light, support, drainage, water and wayleaves for masts, pylons, stays, cable, drains and water, gas and other pipes whether contained in the title deeds or informally constituted and whether or not referred to above.

Important Notice

Rettie, their clients and any joint agents give notice that:
They are not authorised to make or give any representations or warranties in relation to the property either in writing or by word of mouth. Any information given is entirely without responsibility on the part of the agents or the sellers. These particulars do not form part of any offer or contract and must not be relied upon as statements or representations of fact.

All Rettie floorplans are drawn to RICS standard. The text, photographs and plans are for guidance only and are not necessarily comprehensive and it should not be assumed that the property remains as photographed. Any error, omission or mis-statement shall not annul the sale or entitle any party to compensation or recourse to action at law. It should not be assumed that the property has all necessary planning, building regulation or other consents, including for its current use. Rettie & Co. & Rettie LLP’s have not tested any services, equipment or facilities. Purchasers must satisfy themselves by inspection or otherwise and ought to seek their own professional advice.

All descriptions or references to condition are given in good faith only. Whilst every endeavour is made to ensure accuracy, please check with us on any points of especial importance to you, especially if intending to travel some distance. No responsibility can be accepted for expenses incurred in inspecting properties which have been sold or withdrawn.

Proof and source of Funds/Anti Money Laundering
Under the HMRC Anti Money Laundering legislation all offers to purchase a property on a cash basis or subject to mortgage require evidence of source of funds. This may include evidence of bank statements/funding source, mortgage or confirmation from a solicitor the purchaser has the funds to conclude the transaction.

All individuals involved in the transaction are required to produce proof of identity and proof of address. Rettie use electronic verification, if this is not possible original documents are acceptable.

Misrepresentations
The property is sold with all faults and defects, whether of condition or otherwise and neither the seller nor Rettie & Co. or Rettie LLP’s, the selling agent, are responsible for such faults and defects, nor for any statement contained in the particulars of the property prepared by the said agent.

The Purchaser(s) shall be deemed to acknowledge that they have not entered into contract in reliance on the said statements, that they are satisfied themselves as to the content of each of the said statements by inspection or otherwise and that no warranty or representation has been made by the seller or the said agents in relation to or in connection with the property.

Any error, omission or misstatement in any of the said statements shall not entitle the purchaser(s) to rescind or to be discharged from this contract, nor entitle either party to compensation or damages nor in any circumstances to give either party any cause for action.

Request More Details

Jill McCulley

Jill McCulley

Associate Director
Bob Duncan Cert CII (MP)

Bob Duncan Cert CII (MP)

Managing Director
Mortgage Calculator
Monthly payments
Please set an interest rate.

Your home may be repossessed if you do not keep up repayments on your mortgage.

There may be a fee for mortgage advice. The actual amount you pay will depend upon your circumstances. The fee is up to 1% but a typical fee is 0.3% of the amount borrowed.

Tax Calculator
LBTT calculator for properties purchased in Scotland. Stamp Duty calculator for properties purchased in England.
Land & buildings transaction tax (LBTT)
= £0
New build house with stone and timber cladding

Looking To Sell Or Let?

Rettie is one of the most trusted and well-respected names in property. Our unrivalled market knowledge helps people from around the world buy, sell, let and develop property in Scotland and the North East of England - from city apartments and rural cottages to large townhouses and prime country homes, farms and estates. We deal with some of the most prestigious properties on the market, but provide the same exceptional standards of service and value for money to all our clients.