Copperfield, 22 Church Place, Upper Largo, Leven, Fife, KY8 6EH

Upper Largo, Leven, Fife, KY8 6EH
Sold
Pin View on map

Offers Over £295,000

House

Detached House

Bed

2 Bedrooms

Bathroom

1 Bathroom

Reception

1 Reception Room

Tree

Private Garden

Parking

Off Street Parking

Telephone

Property Description

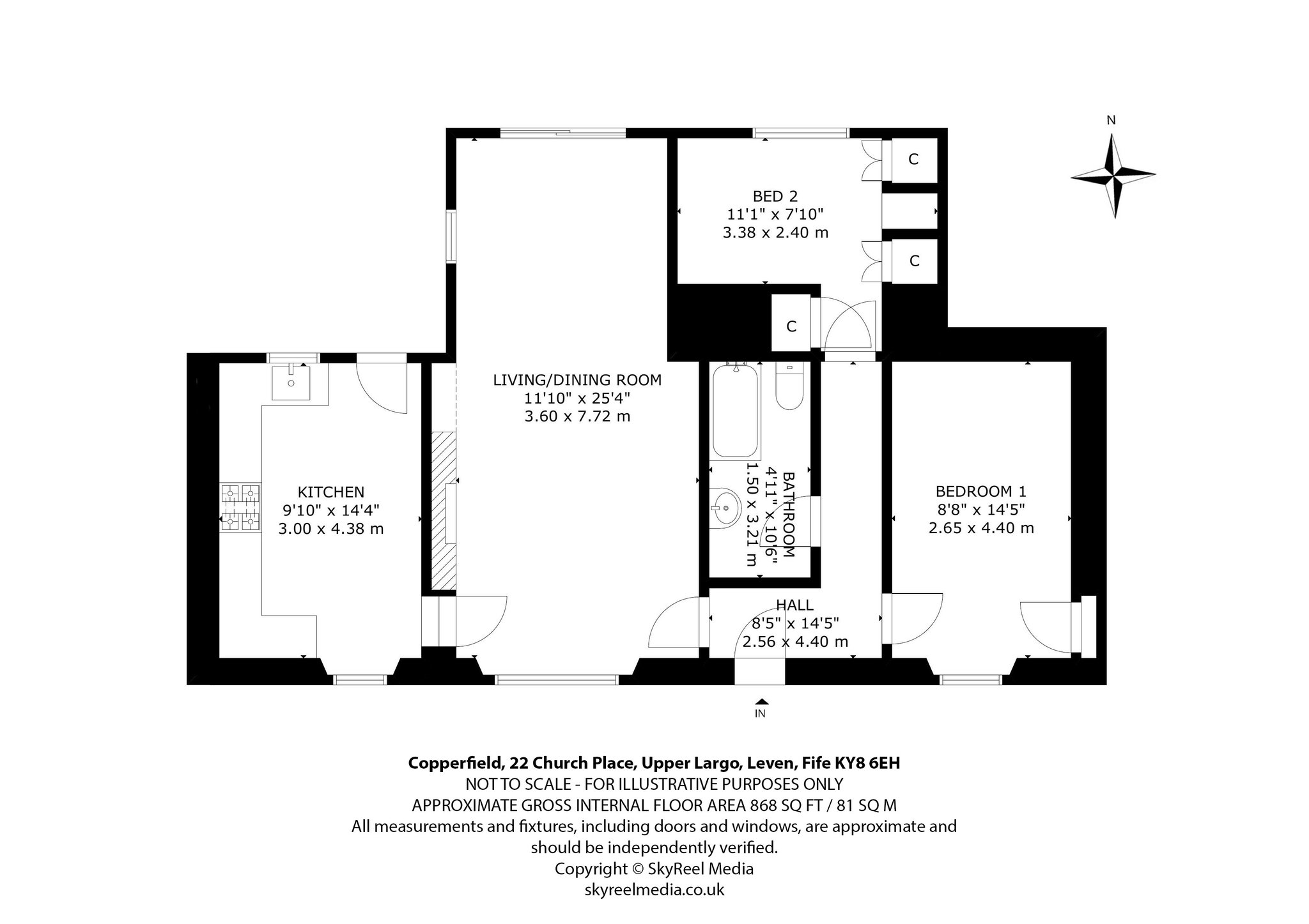
Copperfield is an attractive, detached two-bedroom cottage situated within the peaceful conservation area of Upper Largo. Set on one level, the property has been thoughtfully upgraded in recent years and offers bright, comfortable accommodation with a welcoming sense of character throughout. A well-appointed kitchen sits to the rear of the cottage and provides direct access to the garden, while the spacious sitting room enjoys excellent natural light from patio windows and French doors that open to the private two-level garden. Presented in excellent condition, Copperfield has proven to be a successful holiday let, making it ideal for investors or lifestyle buyers alike.

The layout includes two well-proportioned bedrooms and a modern family bathroom, along with generous storage and full central heating. Outside, the enclosed garden offers a mix of patio and lawned areas arranged over two levels, complete with a brick-built BBQ and established planting. Off-street parking for one car lies to the side of the property, with further parking available on the quiet no-through road. Ideally positioned for access to village amenities, coastal walks, beaches and the wider East Neuk, Copperfield represents an appealing home or holiday base in a sought-after Fife location.

EPC Rating - D
Rateable Value - £2,600
Tenure - Freehold

Summary of Accommodation

  • Detached, single-storey cottage in conservation area
  • Entrance hall
  • Spacious sitting/dining room with open gas fire and French doors to garden
  • Well-fitted kitchen with full range of appliances and garden access
  • Two double sized bedrooms:
  • Family bathroom with bath and shower over
  • Private two-level garden with patio and brick BBQ
  • Off-road parking for one car and on-street parking available
  • Full central heating; recently renovated
  • Short-Term Letting Licence

Location
Upper Largo is a picturesque conservation village set on the edge of the East Neuk of Fife, an area celebrated for its sandy beaches, charming fishing villages and beautiful coastal paths. The cottage is ideally placed, with the village hotel, bar and restaurant just a two-minute walk away, and further dining options within walking distance or a short drive.

The surrounding area offers excellent recreational opportunities, including scenic walks, dedicated cycle routes, and activities for families. Golfers are exceptionally well served, with more than 40 courses across Fife, from world-famous St Andrews links to local gems such as Lundin Links, only a mile away.

The location provides easy access to many historic sites and attractive towns, with St Andrews only 10 miles distant and convenient road links to Edinburgh, Perth, Stirling and Glasgow. The area is also well connected by public transport, with railway stations at Leuchars, Leven, Cupar, Ladybank, Kirkcaldy and Dundee. Edinburgh is within an hour’s drive, and the larger Fife towns of St Andrews, Glenrothes, Dundee and Kirkcaldy are all easily accessible. Edinburgh International Airport is under an hour away by car.

Copperfield offers an ideal blend of tranquillity and accessibility in one of Scotland’s most appealing coastal regions.

General Remarks & Information

Fixtures and Fittings:
Only appliances specifically mentioned in the sales particulars are included in the sale price. In all other aspects the treatment of fixtures and fittings within the relevant Conveyancing Standard Clauses apply.

Services:
Gas heating, mains water, electricity, broadband

Viewing:
By appointment through St Andrews. 28 Bell Street, St Andrews, KY16 9UX. Email: standrews@rettie.co.uk Tel: 01334 237 700

Offers:
Offers should be submitted in Scottish Legal Form to the selling agents Rettie & Co. A closing date by which offers must be submitted may be fixed later. Please note that interested parties are advised to register their interest with the selling agents in order that they may be advised should a closing date be set. The seller reserves the right to accept any offer at any time.

EPC Rating:
D

Rateable Value:
£2,600

Postcode:
KY8 6EH

Tenure:
Freehold

Particulars Prepared:
3rd December 2025

Internet Website
This property and other properties offered by Rettie & Co. & Rettie LLP's. can be viewed on our website at www.rettie.co.uk as well as Rightmove, OnTheMarket and The London Office.

Servitude Rights, Burdens & Wayleaves
The property is sold subject to and with the benefit of all servitude rights, burdens, reservations and wayleaves including rights of access and rights of way, whether public or private, light, support, drainage, water and wayleaves for masts, pylons, stays, cable, drains and water, gas and other pipes whether contained in the title deeds or informally constituted and whether or not referred to above.

Important Notice

Rettie, Their Clients And Any Joint Agents Give Notice That

They are not authorised to make or give any representations or warranties in relation to the property either in writing or by word of mouth. Any information given is entirely without responsibility on the part of the agents or the sellers. These particulars do not form part of any offer or contract and must not be relied upon as statements or representations of fact.
All Rettie floorplans are drawn to RICS standard. The text, photographs and plans are for guidance only and are not necessarily comprehensive and it should not be assumed that the property remains as photographed. Any error, omission or mis-statement shall not annul the sale or entitle any party to compensation or recourse to action at law. It should not be assumed that the property has all necessary planning, building regulation or other consents, including for its current use. Rettie & Co. & Rettie LLP’s have not tested any services, equipment or facilities. Purchasers must satisfy themselves by inspection or otherwise and ought to seek their own professional advice.
All descriptions or references to condition are given in good faith only. Whilst every endeavour is made to ensure accuracy, please check with us on any points of especial importance to you, especially if intending to travel some distance. No responsibility can be accepted for expenses incurred in inspecting properties which have been sold or withdrawn.

Proof and source of Funds/Anti Money Laundering
Under the HMRC Anti Money Laundering legislation all offers to purchase a property on a cash basis or subject to mortgage require evidence of source of funds. This may include evidence of bank statements/funding source, mortgage or confirmation from a solicitor the purchaser has the funds to conclude the transaction.

All individuals involved in the transaction are required to produce proof of identity and proof of address. Rettie use electronic verification, if this is not possible original documents are acceptable.
Misrepresentations

The property is sold with all faults and defects, whether of condition or otherwise and neither the seller nor Rettie & Co. or Rettie LLP’s, the selling agent, are responsible for such faults and defects, nor for any statement contained in the particulars of the property prepared by the said agent.

The Purchaser(s) shall be deemed to acknowledge that they have not entered into contract in reliance on the said statements, that they are satisfied themselves as to the content of each of the said statements by inspection or otherwise and that no warranty or representation has been made by the seller or the said agents in relation to or in connection with the property.

Any error, omission or misstatement in any of the said statements shall not entitle the purchaser(s) to rescind or to be discharged from this contract, nor entitle either party to compensation or damages nor in any circumstances to give either party any cause for action.

More Details

Situation: Private Garden
Council Tax Band: NA
Tenure: Freehold

Contact Us

Caitlin Wishart

Caitlin Wishart

Senior Sales Negotiator
Bob Duncan Cert CII (MP)

Bob Duncan Cert CII (MP)

Managing Director
Mortgage Calculator
Monthly payments
Please set an interest rate.

Your home may be repossessed if you do not keep up repayments on your mortgage.

There may be a fee for mortgage advice. The actual amount you pay will depend upon your circumstances. The fee is up to 1% but a typical fee is 0.3% of the amount borrowed.

Tax Calculator
LBTT calculator for properties purchased in Scotland. Stamp Duty calculator for properties purchased in England.
Land & buildings transaction tax (LBTT)
= £0
New build house with stone and timber cladding

Looking To Sell Or Let?

Rettie is one of the most trusted and well-respected names in property. Our unrivalled market knowledge helps people from around the world buy, sell, let and develop property in Scotland and the North East of England - from city apartments and rural cottages to large townhouses and prime country homes, farms and estates. We deal with some of the most prestigious properties on the market, but provide the same exceptional standards of service and value for money to all our clients.