5 The Dale, Kilconquhar, Fife, KY9 1LY

Kilconquhar, Fife, KY9 1LY
New
Pin View on map

Offers Over £235,000

House

Terraced House

Bed

3 Bedrooms

Bathroom

1 Bathroom

Reception

1 Reception Room

Tree

Private Garden

Telephone

Property Description

Quaint and newly redecorated, mid terraced 3-bedroom house located in the tranquil village of Kilconquhar. The property is situated in the popular East Neuk of Fife and is only 1.5 miles from Elie and 3 miles from St Monans with popular beaches, water sport centre, harbour, famous golf course, shops, pubs and restaurants. There are various countryside walking tracks surrounding the village including the beautiful walk around Kilconquhar Loch (a Site of Special Scientific Interest-SSSI). Winner of the ‘Best Wee Village in Fife and Scotland’ in 2011, Kilconquhar is a Conservation Area and steeped in history, dating as far back as the 12th century. The house is also idyllically situated adjacent to the Barnyards Scottish Wildlife Reserve and benefits from the peace and quiet of a traffic free cul-de-sac.

The property falls into the catchment area for Waid Academy in Anstruther and a school bus provides transport. Golf courses can be found locally at Elie / Earlsferry, Crail, Kingsbarns, Dumbarnie Links and St Andrews is only 10 miles away. Edinburgh is a 45 min drive.

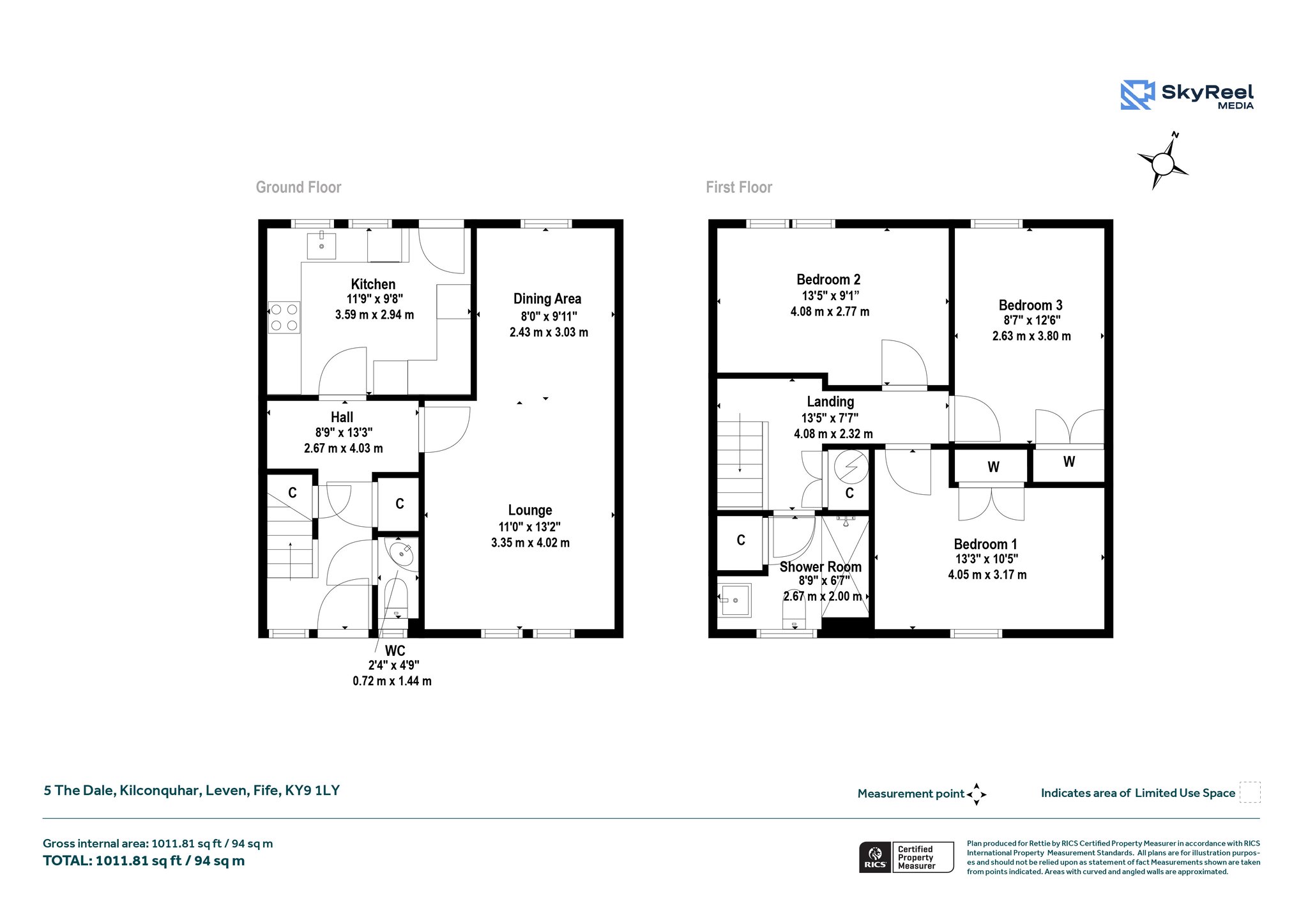
The entrance door opens into a vestibule and hallway. There is a modern fitted kitchen and W.C. on the ground floor, both of which were completed to a high standard 3 years ago. The entrance hallway leads into a spacious open-plan sitting and dining room which extends the full depth of the house, enjoying excellent natural light from dual-aspect windows and providing clearly defined areas for relaxation and dining, also with feature wall mounted electric fire. Dual aspect windows flood the room with natural light. The modern fitted kitchen offers a substantial amount of floor and wall units with under unit lighting, and includes an integrated oven, new induction hob, extractor fan, dishwasher, washing machine, fridge freezer and additional freezer unit.

The property has three good-sized bedrooms, all of which are doubles and two of which have built in storage wardrobes. Two of the bedrooms at the back have lovely views over the Nature Reserve and beyond. The master bedroom sits to the front of the property enjoying a southerly aspect with views of the famous Kilconquhar church tower. There is a modern bathroom upstairs with walk in shower and linen cupboard. There is also a large storage cupboard both on the upstairs landing, and in the hallway on the ground floor. There is double-glazing and electric central heating throughout (please note that both adjacent properties are connected to gas). There is a partially floored loft with light, which is easily accessed by a folding loft ladder and provides a sizeable additional storage area.

The property has an easily maintained, secure and sunny front garden and a private, secure and sunny rear garden with a garden shed that has been split into two sections; a small summer house and a tool shed. There is a shared resident's parking area next to the property and ample on street parking. Superfast Broadband is achievable.

Property Internal floor area 94 sq m

More Details

Council Tax Band: C
EPC Rating: D (walls and roof are insulated)
Tenure - Freehold

General Remarks & Information

Fixtures and Fittings:
Only appliances specifically mentioned in the sales particulars are included in the sale price. In all other aspects the treatment of fixtures and fittings within the relevant Conveyancing Standard Clauses apply.

Services:
Electric heating (please note that both adjacent properties are connected to gas), mains water, electricity, broadband, telephone (subject to telephone providers’ regulations).

Viewing:
By appointment through Rettie St Andrews. 28 Bell Street, St Andrews, KY16 9UX. Email: standrews@rettie.co.uk Tel: 01334 237 700

Offers:
Offers should be submitted in Scottish Legal Form to the selling agents Rettie & Co. A closing date by which offers must be submitted may be fixed later. Please note that interested parties are advised to register their interest with the selling agents in order that they may be advised should a closing date be set. The seller reserves the right to accept any offer at any time.

Connected Persons
Please note that we are required under the Estate Agents Act 1979, and the Provision of Information Regulations 1991, to point out that the client we are acting for on the sale of this property is a ‘connected person' as defined by the act.

Council Tax Band:
C

EPC Rating:
D

Postcode:
KY9 1LY

Tenure:
Freehold

Particulars Prepared:
15th March 2026

Internet Website
This property and other properties offered by Rettie & Co. & Rettie LLP's. can be viewed on our website at www.rettie.co.uk as well as Rightmove, OnTheMarket and The London Office.

Servitude Rights, Burdens & Wayleaves
The property is sold subject to and with the benefit of all servitude rights, burdens, reservations and wayleaves including rights of access and rights of way, whether public or private, light, support, drainage, water and wayleaves for masts, pylons, stays, cable, drains and water, gas and other pipes whether contained in the title deeds or informally constituted and whether or not referred to above.

Important Notice

Rettie, their clients and any joint agents give notice that:
They are not authorised to make or give any representations or warranties in relation to the property either in writing or by word of mouth. Any information given is entirely without responsibility on the part of the agents or the sellers. These particulars do not form part of any offer or contract and must not be relied upon as statements or representations of fact.

All Rettie floorplans are drawn to RICS standard. The text, photographs and plans are for guidance only and are not necessarily comprehensive and it should not be assumed that the property remains as photographed. Any error, omission or mis-statement shall not annul the sale or entitle any party to compensation or recourse to action at law. It should not be assumed that the property has all necessary planning, building regulation or other consents, including for its current use. Rettie & Co. & Rettie LLP’s have not tested any services, equipment or facilities. Purchasers must satisfy themselves by inspection or otherwise and ought to seek their own professional advice.

All descriptions or references to condition are given in good faith only. Whilst every endeavour is made to ensure accuracy, please check with us on any points of especial importance to you, especially if intending to travel some distance. No responsibility can be accepted for expenses incurred in inspecting properties which have been sold or withdrawn.

Proof and source of Funds/Anti Money Laundering
Under the HMRC Anti Money Laundering legislation all offers to purchase a property on a cash basis or subject to mortgage require evidence of source of funds. This may include evidence of bank statements/funding source, mortgage or confirmation from a solicitor the purchaser has the funds to conclude the transaction.

All individuals involved in the transaction are required to produce proof of identity and proof of address. Rettie use electronic verification, if this is not possible original documents are acceptable.

Misrepresentations
The property is sold with all faults and defects, whether of condition or otherwise and neither the seller nor Rettie & Co. or Rettie LLP’s, the selling agent, are responsible for such faults and defects, nor for any statement contained in the particulars of the property prepared by the said agent.

The Purchaser(s) shall be deemed to acknowledge that they have not entered into contract in reliance on the said statements, that they are satisfied themselves as to the content of each of the said statements by inspection or otherwise and that no warranty or representation has been made by the seller or the said agents in relation to or in connection with the property.

Any error, omission or misstatement in any of the said statements shall not entitle the purchaser(s) to rescind or to be discharged from this contract, nor entitle either party to compensation or damages nor in any circumstances to give either party any cause for action.

Request More Details

Jill McCulley

Jill McCulley

Associate Director
Bob Duncan Cert CII (MP)

Bob Duncan Cert CII (MP)

Managing Director
Mortgage Calculator
Monthly payments
Please set an interest rate.

Your home may be repossessed if you do not keep up repayments on your mortgage.

There may be a fee for mortgage advice. The actual amount you pay will depend upon your circumstances. The fee is up to 1% but a typical fee is 0.3% of the amount borrowed.

Tax Calculator
LBTT calculator for properties purchased in Scotland. Stamp Duty calculator for properties purchased in England.
Land & buildings transaction tax (LBTT)
= £0
New build house with stone and timber cladding

Looking To Sell Or Let?

Rettie is one of the most trusted and well-respected names in property. Our unrivalled market knowledge helps people from around the world buy, sell, let and develop property in Scotland and the North East of England - from city apartments and rural cottages to large townhouses and prime country homes, farms and estates. We deal with some of the most prestigious properties on the market, but provide the same exceptional standards of service and value for money to all our clients.