Apt 13, Colinton Road, Edinburgh, Midlothian, EH14 1BY

Edinburgh, Midlothian, EH14 1BY
Under Offer
Pin View on map

Fixed Price £525,000

House

Apartment

Bed

3 Bedrooms

Size

1,245 sq.ft

Parking

Off Street Parking

Telephone

Property Description

NEW REDUCED PRICE

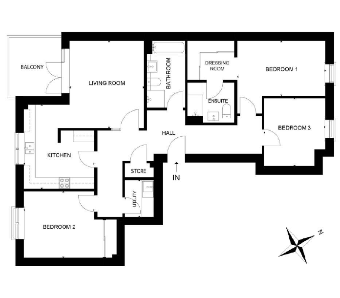
Apartment 13 is located on the first floor at Colinton Road, offering flexible living and ample storage throughout.
This property has three bedrooms, the principle of which boasts a dressing room and ensuite.

The living space which connects to both the kitchen and the balcony, provides a wonderful area for entertaining guests. This layout offers ample storage throughout, as well as a convenient utility room.

Colinton Road sits in the desirable neighbourhood of Craiglockhart, lying just to the east of Colinton. Surrounded by a convenient range of shops, sporting facilities and green spaces - with easy transport links across Edinburgh - this really is an idyllic spot for city living.

The development is neighboured by an excellent variety of open spaces - from the popular Water of Leith to the tranquil Craiglockhart Hill Nature Reserve - making it ideally situated for leisurely weekend walks. Craiglockhart Leisure Centre sits just across the road, an advantageous amenity for keen sports enthusiasts or those wishing to increase fitness. Their gym, tennis and swimming facilities are favourable for all skill levels, whilst those who play golf are also provided for at the Merchants of Edinburgh Golf Club, found within a short five minute drive.

The homes found at Colinton Road completely encompass the phrase "contemporary living".

With a total of 19 premium apartments, ranging from two to three bedrooms, each home is designed to offer a light and airy haven. All boast incredibly generous layouts - the largest of which is over 150 square metres - alongside the added benefit of multi-use spaces throughout and lift access to all floors and apartments. Desirable balconies and terraces offer in-demand outdoor space, whilst the communal gardens provide a tranquil charm, inviting residents to relax and reconnect with nature.

The meticulously designed verdant gardens of Colinton Road feature pathways and a thoughtfully arranged shrubbery, adding to this development's allure and charm.

Interested parties are highly encouraged to contact the Rettie New Homes team to register interest.

0131 243 3858
colintonroad@rettie.co.uk

More Details

Tenure: Freehold
EPC: B
Council Tax band: est. G

Please note: Images may be staged or virtually staged for illustrative purposes. Interior images portray the high standard of interior spec at this development and may not depict the internal space of this specific property. CGIs are used for illustrative purposes only.

Contact Us

Claire Birrell

Claire Birrell

Associate Director
Paul Banyard Cert CII (MP)

Paul Banyard Cert CII (MP)

Mortgage & Protection Advisor
Mortgage Calculator
Monthly payments
Please set an interest rate.

Your home may be repossessed if you do not keep up repayments on your mortgage.

There may be a fee for mortgage advice. The actual amount you pay will depend upon your circumstances. The fee is up to 1% but a typical fee is 0.3% of the amount borrowed.

Tax Calculator
LBTT calculator for properties purchased in Scotland. Stamp Duty calculator for properties purchased in England.
Land & buildings transaction tax (LBTT)
= £0
New build house with stone and timber cladding

Looking To Sell Or Let?

Rettie is one of the most trusted and well-respected names in property. Our unrivalled market knowledge helps people from around the world buy, sell, let and develop property in Scotland and the North East of England - from city apartments and rural cottages to large townhouses and prime country homes, farms and estates. We deal with some of the most prestigious properties on the market, but provide the same exceptional standards of service and value for money to all our clients.