Apt 11, Pavilion A, New Eidyn, St James Quarter, Edinburgh, EH1 3SS

St James Quarter, Edinburgh, EH1 3SS
Sold
Pin View on map

Fixed Price £460,000

House

Upper Floor Apartment

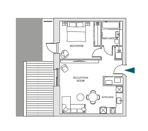
Bed

1 Bedroom

Bathroom

1 Bathroom

Size

625 sq.ft

Tree

Communal Garden

Telephone

Property Description

Price Adjustment

Original Price - £500,000, Reduced Asking Price - Now £460,000.

Beautifully crafted and finished to the highest standard with an impressive specification, this splendid one bedroom apartment is move in ready, offering a beautiful open plan living space above the hustle and bustle of Edinburgh.

Sitting aloft St James Quarter, the ground-breaking lifestyle destination, New Eidyn offers 152 apartments ranging from studio to three bedrooms, providing residents with access to world-class retail, leisure, fitness and hotel facilities on an unprecedented scale for the city centre.

Residents will benefit from world class amenities at New Eidyn, including a concierge service, 24-hour security, landscaped sky gardens, spacious communal garden room and residents’ ground floor reception.

The hotel-style concierge service for residents will be second to none. From the 24-hour security to the range of bespoke amenities, every requirement has been considered and is delivered to an exceptional standard.

Interiors are designed to combine the rich textures of Edinburgh with the elegance of contemporary design, and the philosophy of thoughtful, crafted design is prevalent throughout the apartments. The living spaces are perfect for entertaining, featuring Leicht kitchens, Siemens appliances and carefully chosen natural materials such as stone worktops and wooden flooring. The apartments reference Edinburgh's classical interiors, but with a contemporary flair. This is about modern living without limits. Floor to ceiling windows make the most of natural light, and spaces are finished with the finest materials. The bathrooms are spacious and peaceful, with bespoke vanity units and high quality sanitaryware.

Secure underground carparking is available through separate negotiation.

New Eidyn at St James Quarter is a prime example of city enhancing place-making and will be a unique and inspiring place to live and visit. This is a development by Native Land. Native Land has been bringing forward high-quality, versatile developments throughout the UK since 2003. Partnering with world-class architects and designers to set new standards for innovation, quality and usability, they provide consistent returns for investors, and authentic, high-quality homes, jobs and community spaces.

Available by application only, contact Rettie New Homes to receive the current availability list, fly-through tour and informative brochure for New Eidyn.

neweidyn@rettie.co.uk
0131 322 2660

*Please note, some images may contain elements of CGI and/or have been virtually staged. Any view photography may depict the views from New Eidyn and not the views from this specific apartment.

Tenure: Freehold

EPC: As this property is a New Build, the EPC has not yet been assigned.

Council Tax band: As this property is a New Build, the Council Tax band has not yet been assigned.

More Details

Situation: BalconyCommunal Garden
Council Tax Band: Contact branch
Tenure: Freehold

Contact Us

Claire Birrell

Claire Birrell

Associate Director
Paul Banyard Cert CII (MP)

Paul Banyard Cert CII (MP)

Mortgage & Protection Advisor
Mortgage Calculator
Monthly payments
Please set an interest rate.

Your home may be repossessed if you do not keep up repayments on your mortgage. There may be a fee for mortgage advice. The actual amount you pay will depend upon your circumstances.

Tax Calculator
LBTT calculator for properties purchased in Scotland. Stamp Duty calculator for properties purchased in England.
Land & buildings transaction tax (LBTT)
= £0
New build house with stone and timber cladding

Looking To Sell Or Let?

Rettie is one of the most trusted and well-respected names in property. Our unrivalled market knowledge helps people from around the world buy, sell, let and develop property in Scotland and the North East of England - from city apartments and rural cottages to large townhouses and prime country homes, farms and estates. We deal with some of the most prestigious properties on the market, but provide the same exceptional standards of service and value for money to all our clients.