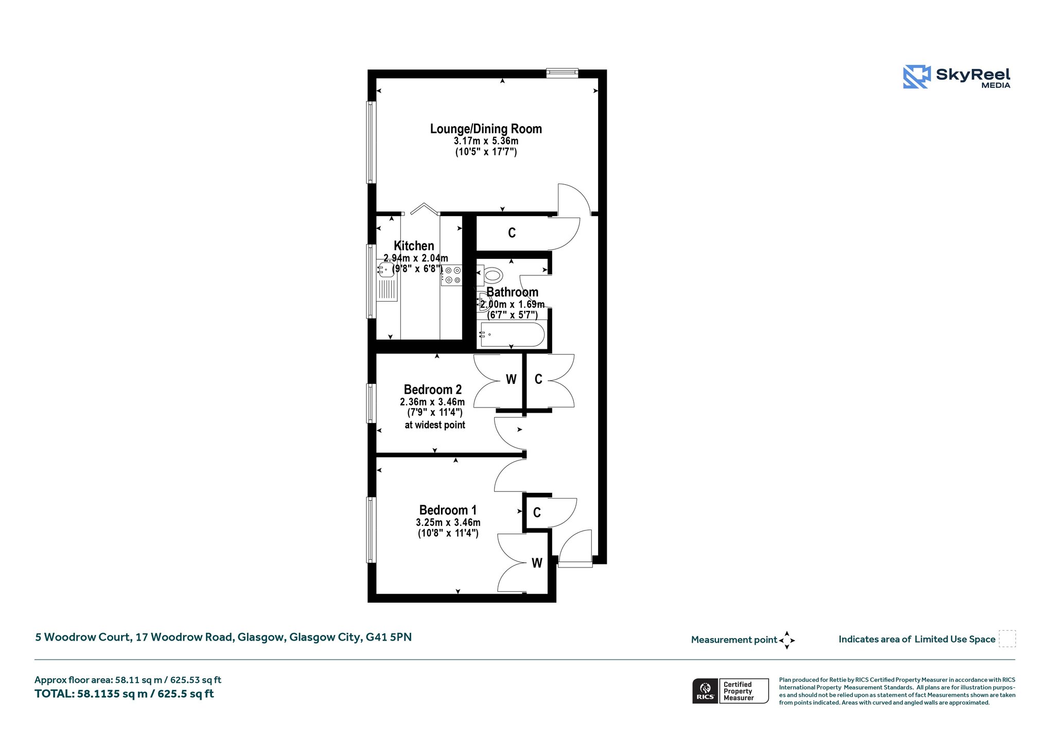
5 Woodrow Court, 17 Woodrow Road, Glasgow, Glasgow City, G41 5PN

Glasgow, Glasgow City, G41 5PN
New
Pin View on map

Monthly Rental £1,100 PCM

House

Apartment

Bed

2 Bedrooms

Bathroom

1 Bathroom

Reception

1 Reception Room

Furnishing

Furnished

Calendar

Available Now

Size

64 sq.m

Tree

Communal Garden

Parking

Off Street Parking, On Street/Permit

Telephone

Property Description

Rettie are delighted to present to the market this spacious apartment situated in the highly desirable residential location area of Pollokshields.

The bright accommodation comprises of; Entrance Hallway leading to all apartments, generously proportioned lounge/dining room with large window overlooking the mature front gardens. Modern fitted Kitchen with ample wall and base units and a range of modern appliances. two double bedrooms, both with fitted storage, and modern bathroom with three piece suite completes the accommodation.

The property further benefits from gas central heating, double glazing and a secure entry system.

Set within an idyllic spot with beautifully maintained garden grounds, mature trees, bushes and manicured lawn.

Scottish Letting Agent Registration: LARN1903047

More Details

Landlord registration: 1796737/260/03022
Deposit £1300
Council tax: D
EPC: C

Request More Details

Megan McKeown

Megan McKeown

Portfolio Manager
modern detached house with stone and timber cladding

Looking To Sell Or Let?

Rettie is one of the most trusted and well-respected names in property. Our unrivalled market knowledge helps people from around the world buy, sell, let and develop property in Scotland and the North East of England - from city apartments and rural cottages to large townhouses and prime country homes, farms and estates. We deal with some of the most prestigious properties on the market, but provide the same exceptional standards of service and value for money to all our clients.