26 Napier Road, Merchiston, Edinburgh, EH10 5AY

Merchiston, Edinburgh, EH10 5AY
New
Pin View on map

Monthly Rental £4,750 PCM

House

Detached House

Bed

6 Bedrooms

Bathroom

4 Bathrooms

Reception

3 Reception Rooms

Furnishing

Unfurnished

Calendar

Available Now

Pets

Pets Considered

Tree

Private Garden

Parking

Off Street Parking

Telephone

Property Description

Virtual Tour Available!

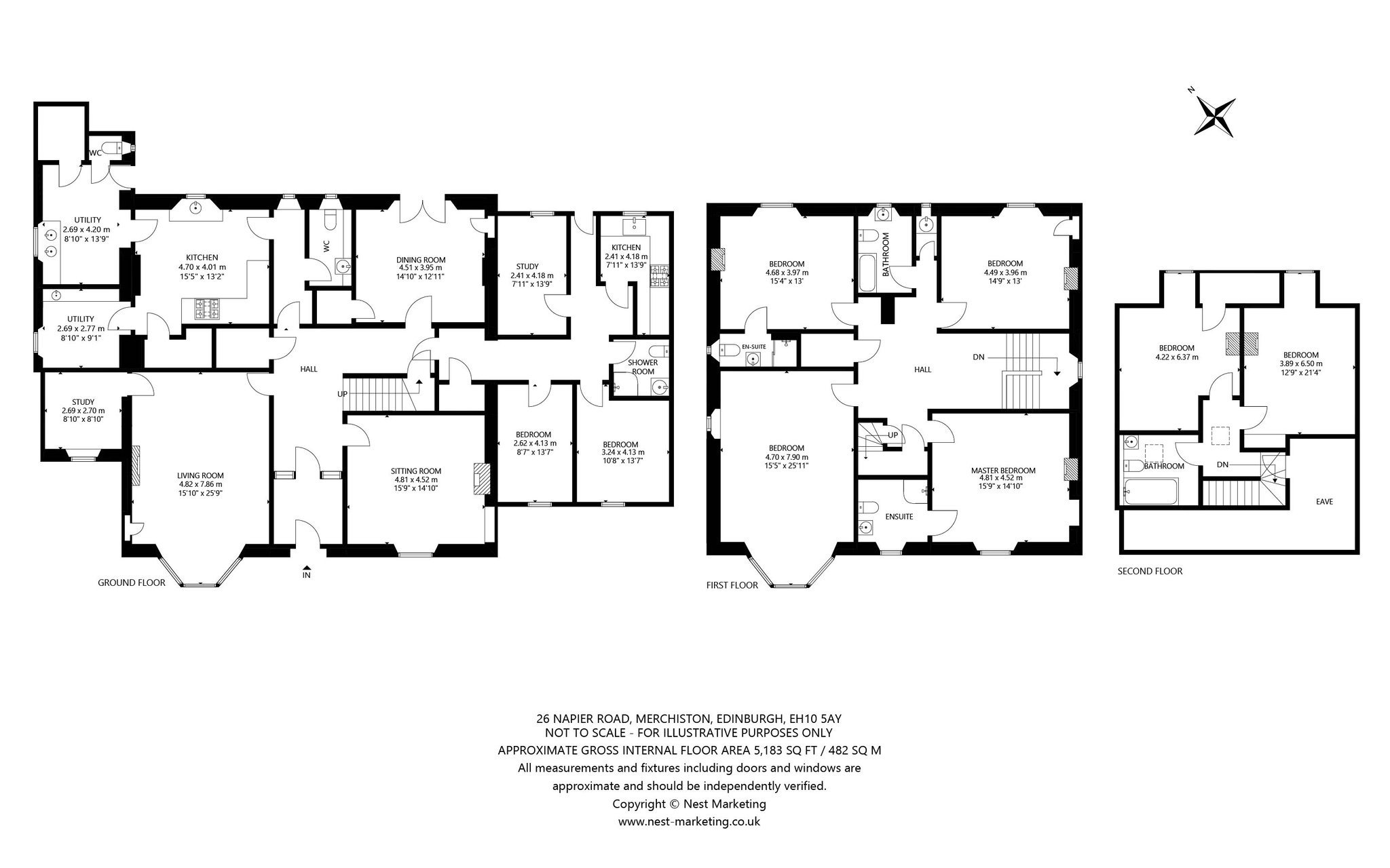
An exciting opportunity to let a superbly spacious Victorian villa which is peacefully situated on one of Merchiston's most affluent and sought after streets. This wonderful property offers versatile accommodation.

Accommodation

Ground Floor: Entrance Vestibule, Reception Hallway, Sitting Room, Livingroom Room, Study, Dining Room, Kitchen, Utility Room, Boiler room, WC.

Ground Floor Annexxe: 2 bedrooms, office, kitchen and shower room.

First Floor: Two ensuite double bedrooms, Two double bedrooms, Family bathroom

Second Floor: Two Double Bedrooms, bathroom and Eaves storage

Private Gardens to the Front and Rear, Private Driveway Parking

More Details

Deposit £4950
Unfurnished
EPC: E
Council Tax Band: H
Scottish Letting Agent Registration – LARN1903047
Landlord registration: 152877/230/21220

Request More Details

Michael Logan

Michael Logan

Portfolio Manager
modern detached house with stone and timber cladding

Looking To Sell Or Let?

Rettie is one of the most trusted and well-respected names in property. Our unrivalled market knowledge helps people from around the world buy, sell, let and develop property in Scotland and the North East of England - from city apartments and rural cottages to large townhouses and prime country homes, farms and estates. We deal with some of the most prestigious properties on the market, but provide the same exceptional standards of service and value for money to all our clients.