53 Cavalry Park Drive, Edinburgh, Midlothian, EH15 3QG

Edinburgh, Midlothian, EH15 3QG
New
Pin View on map

Monthly Rental £3,000 PCM

House

First Floor House

Bed

5 Bedrooms

Bathroom

4 Bathrooms

Reception

2 Reception Rooms

Furnishing

Unfurnished

Calendar

Available From 06/04/2026

Pets

Pets Considered

Size

173 sq.m

Tree

Communal Garden

Garage

Garage

Parking

Off Street Parking

Telephone

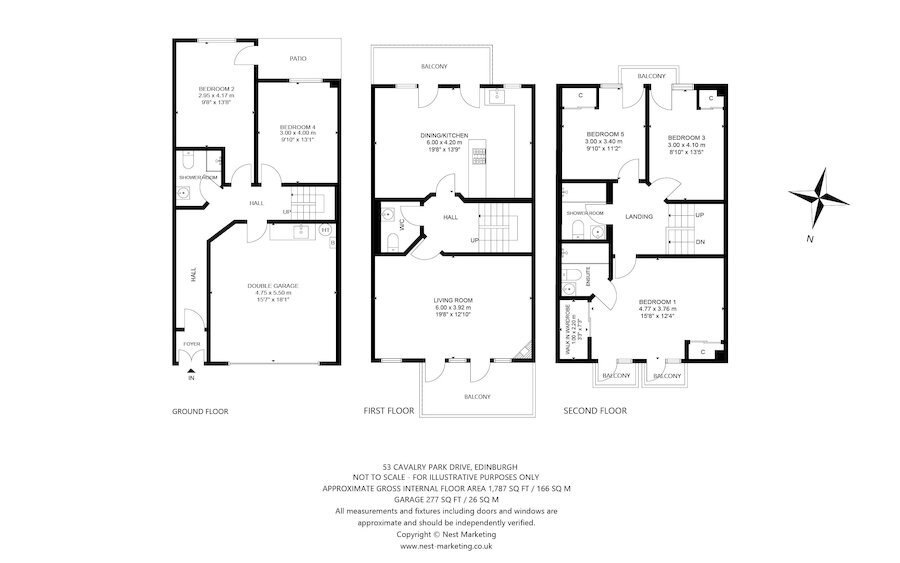
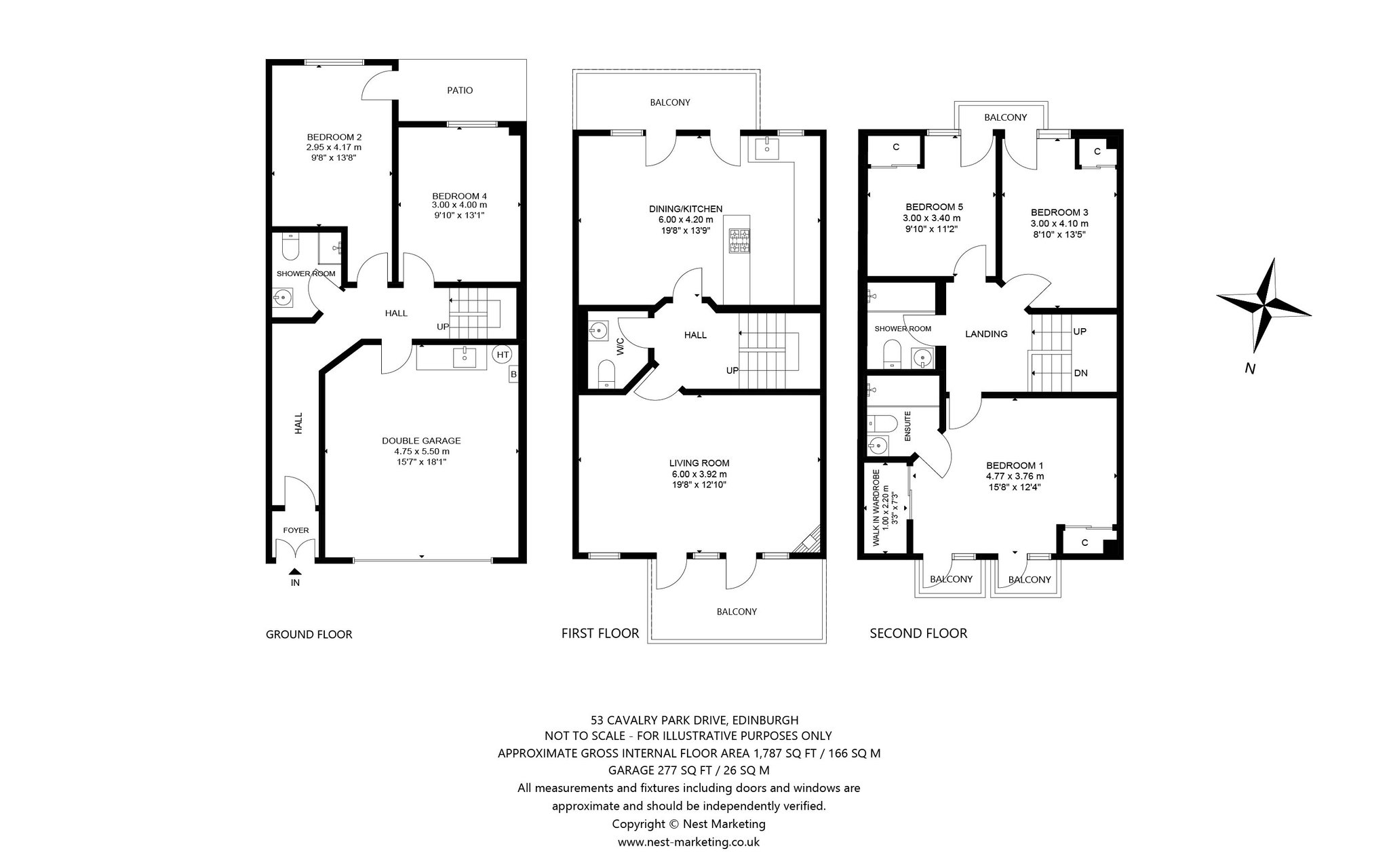
Property Description

Contemporary 5 bedroom mid terraced townhouse set in an exclusive modern development, located in a tranquil setting in the Duddingston Conservation Area. The property is set over three floors, and offers fantastic family accommodation.

The accommodation comprises: ground floor level: double bedroom with access on to the South facing terrace; further double bedroom with wardrobes; shower room; door leading through to garage. First floor: good sized sitting room with balcony and living flame gas fire; large dining kitchen with doors leading onto the balcony with lovely views; WC.
Second floor: principal bedroom with two large fitted wardrobes and ensuite shower room; two further double bedrooms with fitted wardrobes; shower room.

The property further benefits from gas central heating, double glazing, double garage with driveway, communal garden grounds, lovely open aspect over playing fields, large South facing terrace.

Duddingston is a popular area for families, due to the fantastic green space of Holyrood Park and Arthurs Seat, and the well regarded local schools. Loretto and George Heriots are the closest Independent schools. Good transport links connect Duddingston to the City Centre and beyond, and the city bypass and A1 are both easily accessible.

More Details

Deposit £3,200
Pets considered
Unfurnished
Council Tax Band: G
EPC Rating: C
Landlord Registration: 1171933/230/22012 - 1179491/230/04022
Scottish Letting Agent Registration: LARN1903047

Request More Details

Daniel Steele

Daniel Steele

Portfolio Manager
modern detached house with stone and timber cladding

Looking To Sell Or Let?

Rettie is one of the most trusted and well-respected names in property. Our unrivalled market knowledge helps people from around the world buy, sell, let and develop property in Scotland and the North East of England - from city apartments and rural cottages to large townhouses and prime country homes, farms and estates. We deal with some of the most prestigious properties on the market, but provide the same exceptional standards of service and value for money to all our clients.