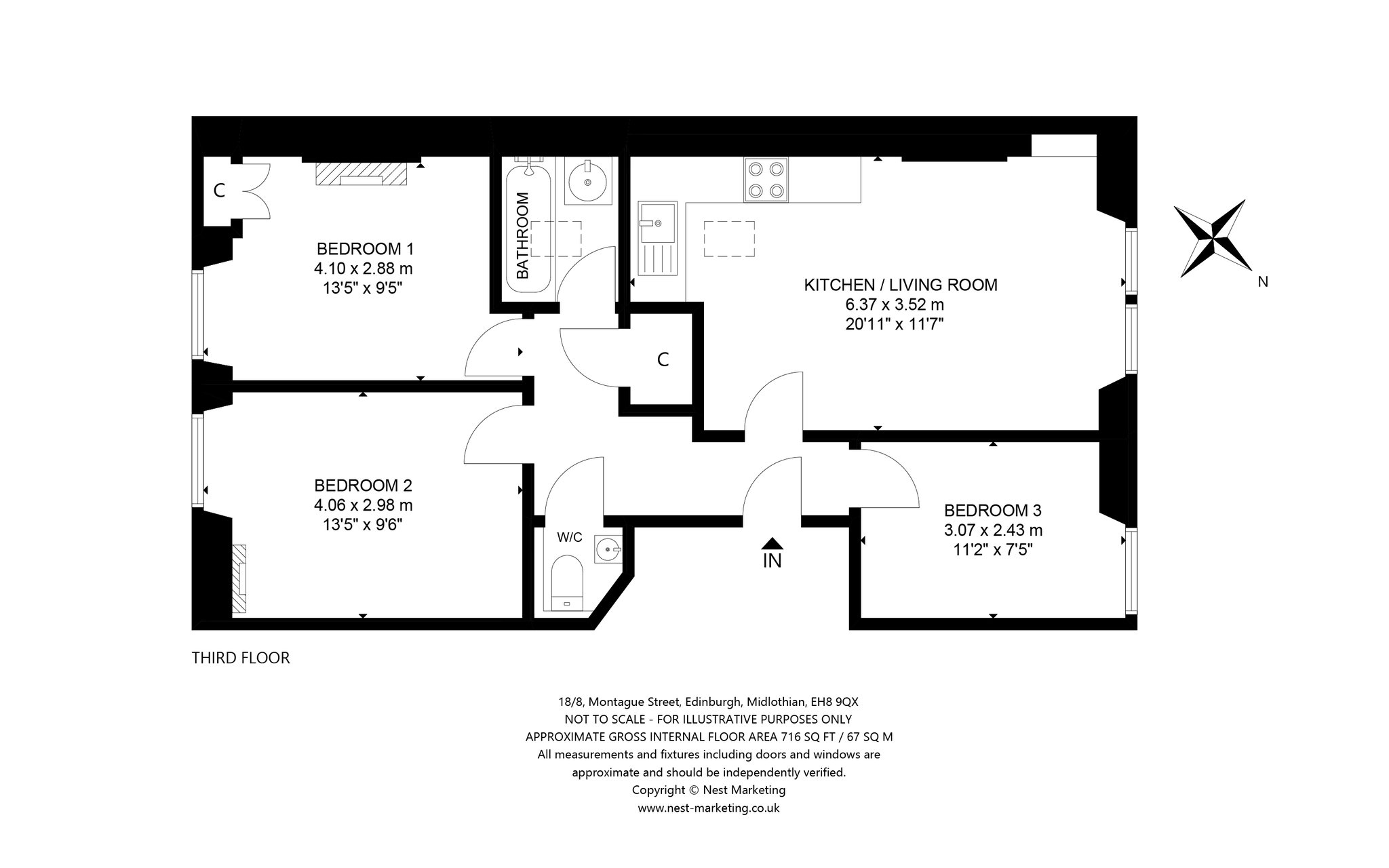
18/8 Montague Street, Edinburgh, Midlothian, EH8 9QX

Edinburgh, Midlothian, EH8 9QX
New
Pin View on map

Monthly Rental £2,800 PCM

House

Upper Floor Apartment

Bed

3 Bedrooms

Bathroom

1 Bathroom

Reception

1 Reception Room

Furnishing

Furnished

Multiple-users

HMO

Calendar

Available From 02/04/2026

Size

68 sq.m

Parking

On Street/Permit

Telephone

Property Description

A superb 3-bedroom HMO flat, located on the third floor of a traditional tenement building in Newington.

The accommodation comprises: entrance hallway; good sized open plan sitting room and kitchen; 3 double bedrooms; bathroom with shower above bath; separate WC.

The property is in an excellent location for access to both Edinburgh University, the Edinburgh Royal Infirmary, and the City Centre. There is an extensive selection of local amenities, including a Sainsbury’s Local supermarket, Tesco Express, various bars, restaurants and bistros, and the Royal Commonwealth Pool is within 10 minutes by foot.

The beautiful green spaces of the Meadows and Holyrood Park and Arthur’s Seat are all a short stroll away.

The property benefits from GCH.

Council street permit parking available

More Details

Furnished
Deposit: £3000
Council Tax Band: D
EPC Rating: D
Landlord registration: 363144/230/07071
Letting Agent Registration Number – LARN1903047

Request More Details

Kornelia Niedzieska

Kornelia Niedzieska

Portfolio Manager
modern detached house with stone and timber cladding

Looking To Sell Or Let?

Rettie is one of the most trusted and well-respected names in property. Our unrivalled market knowledge helps people from around the world buy, sell, let and develop property in Scotland and the North East of England - from city apartments and rural cottages to large townhouses and prime country homes, farms and estates. We deal with some of the most prestigious properties on the market, but provide the same exceptional standards of service and value for money to all our clients.