2F2 (Flat 5), 3 Brougham Street, Edinburgh, Midlothian, EH3 9JS

Edinburgh, Midlothian, EH3 9JS
New
Pin View on map

Monthly Rental £1,650 PCM

House

Upper Floor Apartment

Bed

1 Bedroom

Bathroom

1 Bathroom

Reception

2 Reception Rooms

Furnishing

Furnished

Calendar

Available From 24/04/2026

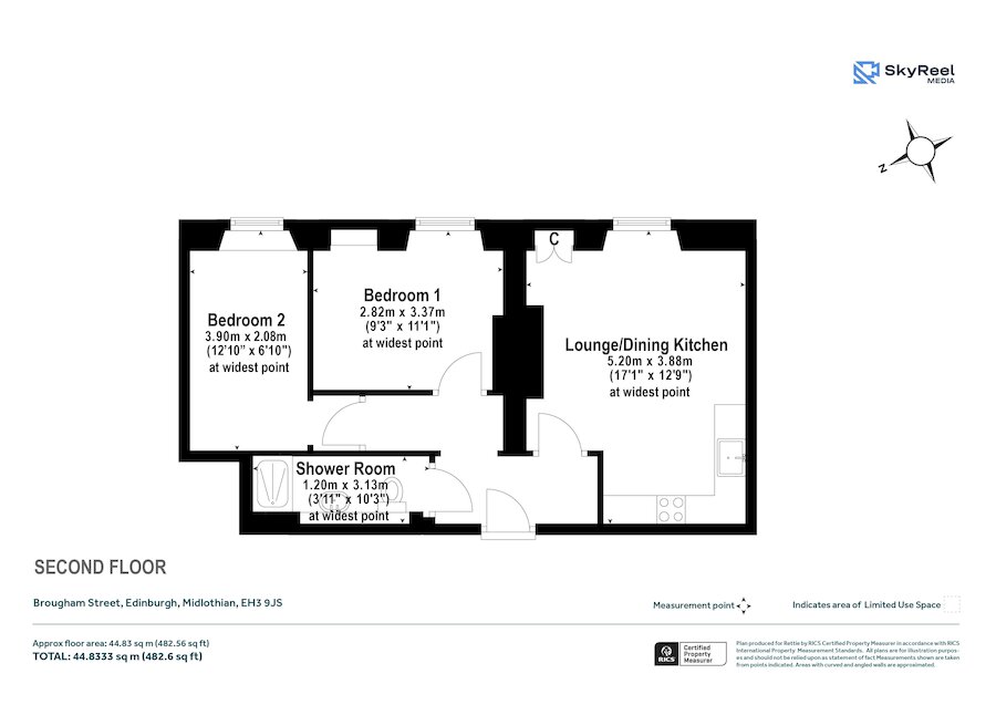
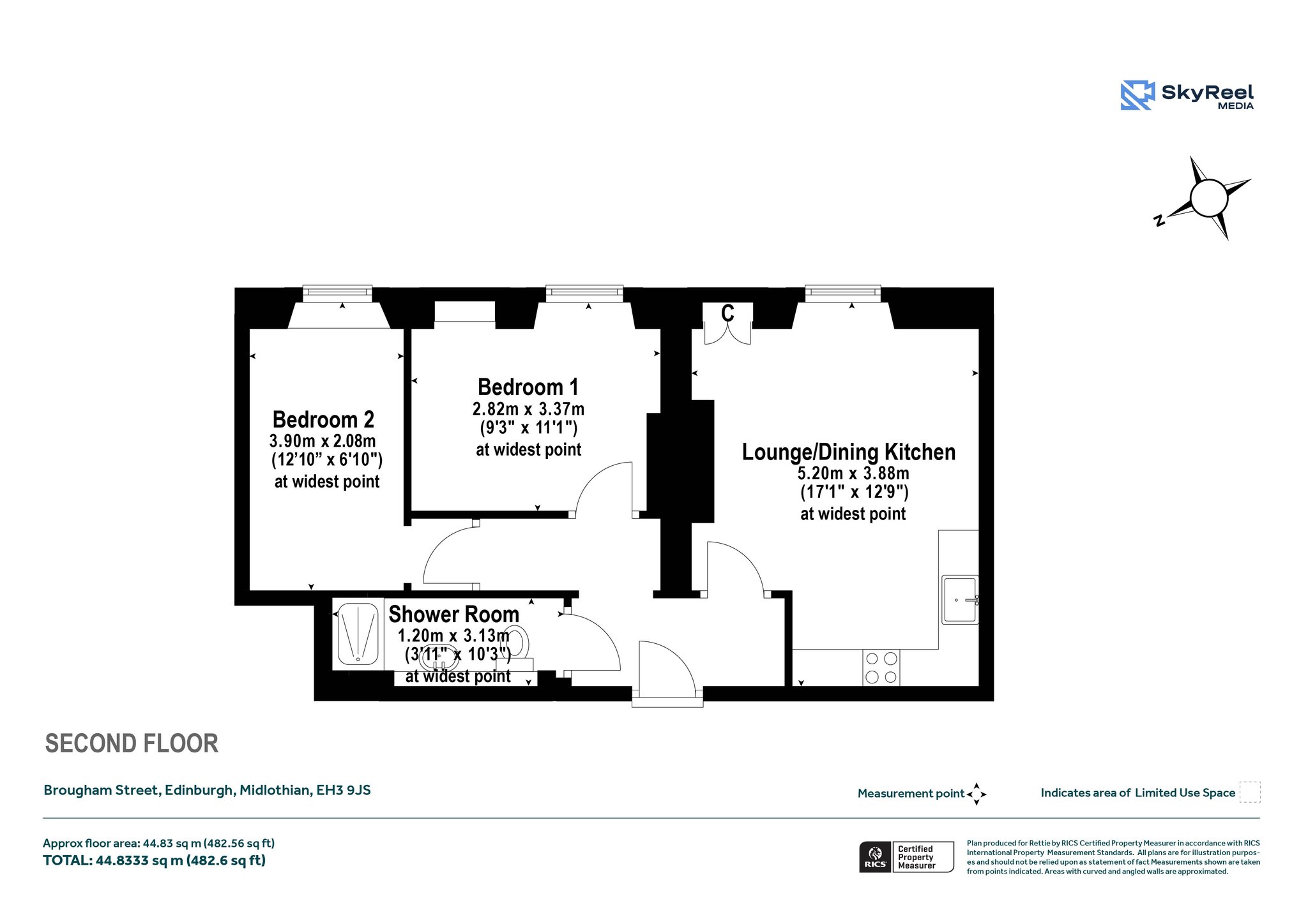
Size

45 sq.m

Tree

Communal Garden

Parking

On Street/Permit

Telephone

Property Description

A contemporary one double bedroom, second-floor flat, offering stylish, modern living in the heart of Edinburgh’s sought-after Tollcross area.

Finished to a high standard throughout, the property combines period charm with contemporary design and benefits from brand-new furniture, bright décor, and quality fittings.

Accommodation Comprises

Entrance hallway; Beautiful open-plan kitchen and living room, tastefully decorated and fully fitted with contemporary units and appliances; Principal double bedroom; Office / study or guest room wth sofa bed and desk. Sleek and modern shower room.

Additional benefits include gas central heating (GCH), access to a well-kept communal garden, and secure entry to the building.

Brougham Street enjoys a prime location in Tollcross, just a short walk from the city centre, the Meadows, and Bruntsfield. This vibrant neighbourhood is popular for its excellent mix of culture, convenience, and green space. There are plenty of cafés, bars, restaurants and independent shops on the doorstep, along with supermarkets for everyday essentials.

The lovely Meadows are moments away, perfect for running, cycling, and outdoor activities. The Cameo Cinema, King’s Theatre, and the Usher Hall provide cultural and entertainment options within walking distance.

Excellent bus services run from Tollcross to all parts of the city, while Haymarket Station is within easy reach, offering rail connections across Scotland and beyond. The area also benefits from good road links to the City Bypass and Edinburgh International Airport.

More Details

Deposit: £1,850
Furnished
Council Tax Band: B
EPC Rating: C
Landlord Registration: 512880/230/24112
LARN1903047

Request More Details

Calum Chrystal

Calum Chrystal

Portfolio Manager
modern detached house with stone and timber cladding

Looking To Sell Or Let?

Rettie is one of the most trusted and well-respected names in property. Our unrivalled market knowledge helps people from around the world buy, sell, let and develop property in Scotland and the North East of England - from city apartments and rural cottages to large townhouses and prime country homes, farms and estates. We deal with some of the most prestigious properties on the market, but provide the same exceptional standards of service and value for money to all our clients.