Ettrick View, 2 Newburgh Farm Steading, Selkirk, Scottish Borders, TD7 5HS
Property Description
A substantial and beautifully proportioned seven-bedroom steading conversion, forming part of a small community of properties situated in the picturesque Ettrick Valley.
Set amidst rolling hills with wraparound views across open farmland, this impressive home combines generous living space with the peace and privacy of rural life.
Accommodation Comprises
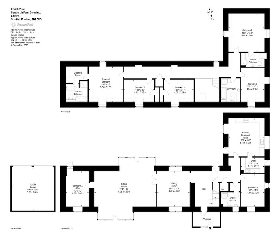
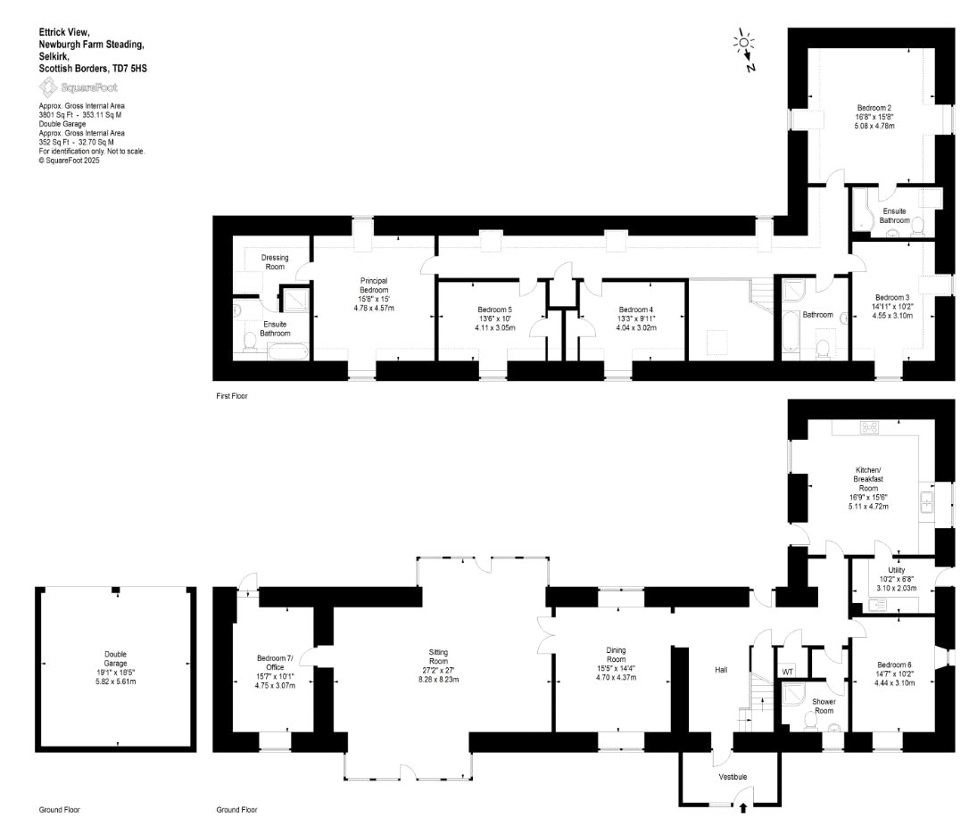
Ground floor - Vestibule; Welcoming Hallway; Dining room leading through to a substantial sitting room with doors at both ends of the room leading directly outside; Dining kitchen with adjoining utility room and doors leading to the garden; Two double bedrooms, which could also be used as an informal sitting room, playroom, snug or study; Shower room; Stairs to first floor.
First floor – Landing; Principal bedroom suite with dressing room and ensuite bathroom; Second large double bedroom with ensuite bathroom; Three further double bedrooms; Family bathroom with bath and separate shower cubicle.
Externally, there is a large enclosed private lawn providing a safe and secure space for children to play, while the courtyard and double garage offer excellent storage for vehicles, bicycles and outdoor equipment, or an external office/gym/workshop. The setting is tranquil and private.
The property is heated via oil fired central heating and has been well-insulated.
The nearby historic market town of Selkirk offers a range of local amenities, including independent shops, supermarkets, cafés, restaurants, healthcare services and leisure facilities. For a wider selection of retail and services, Galashiels is within easy reach.
The area is well regarded for its community atmosphere and schooling options. Primary education is available at Kirkhope and St Joseph's Primary Schools, with Selkirk High School providing secondary education. School transport is typically available for families living in the surrounding countryside.
The Scottish Borders is renowned for its outdoor lifestyle. The surrounding Ettrick and Yarrow Valleys offer excellent walking and cycling routes, fishing on the River Ettrick, equestrian opportunities and access to local sports clubs, including the region’s strong rugby tradition. Nearby golf courses and forest trails further enhance the area’s appeal, while the Borders’ historic towns and annual community events contribute to its welcoming, family-oriented character.
Although offering a true sense of escape, the property remains accessible by road to Galashiels, Hawick and onwards to Edinburgh via the A7, making commuting or occasional city travel entirely manageable.
More Details
Unfurnished
Deposit: £2,700
Council Tax Band: G
EPC Rating: C
Landlord Registration: 1797139/355/09022
LARN1903047
Request More Details
Similar Properties
Looking To Sell Or Let?
Rettie is one of the most trusted and well-respected names in property. Our unrivalled market knowledge helps people from around the world buy, sell, let and develop property in Scotland and the North East of England - from city apartments and rural cottages to large townhouses and prime country homes, farms and estates. We deal with some of the most prestigious properties on the market, but provide the same exceptional standards of service and value for money to all our clients.
