Flat 13, 29 Brighouse Park Cross, Edinburgh, EH4 6GW

Edinburgh, EH4 6GW
New
Pin View on map

Monthly Rental £2,300 PCM

House

Penthouse Apartment

Bed

2 Bedrooms

Bathroom

2 Bathrooms

Reception

1 Reception Room

Furnishing

Unfurnished

Calendar

Available From 01/04/2026

Pets

Pets Considered

Size

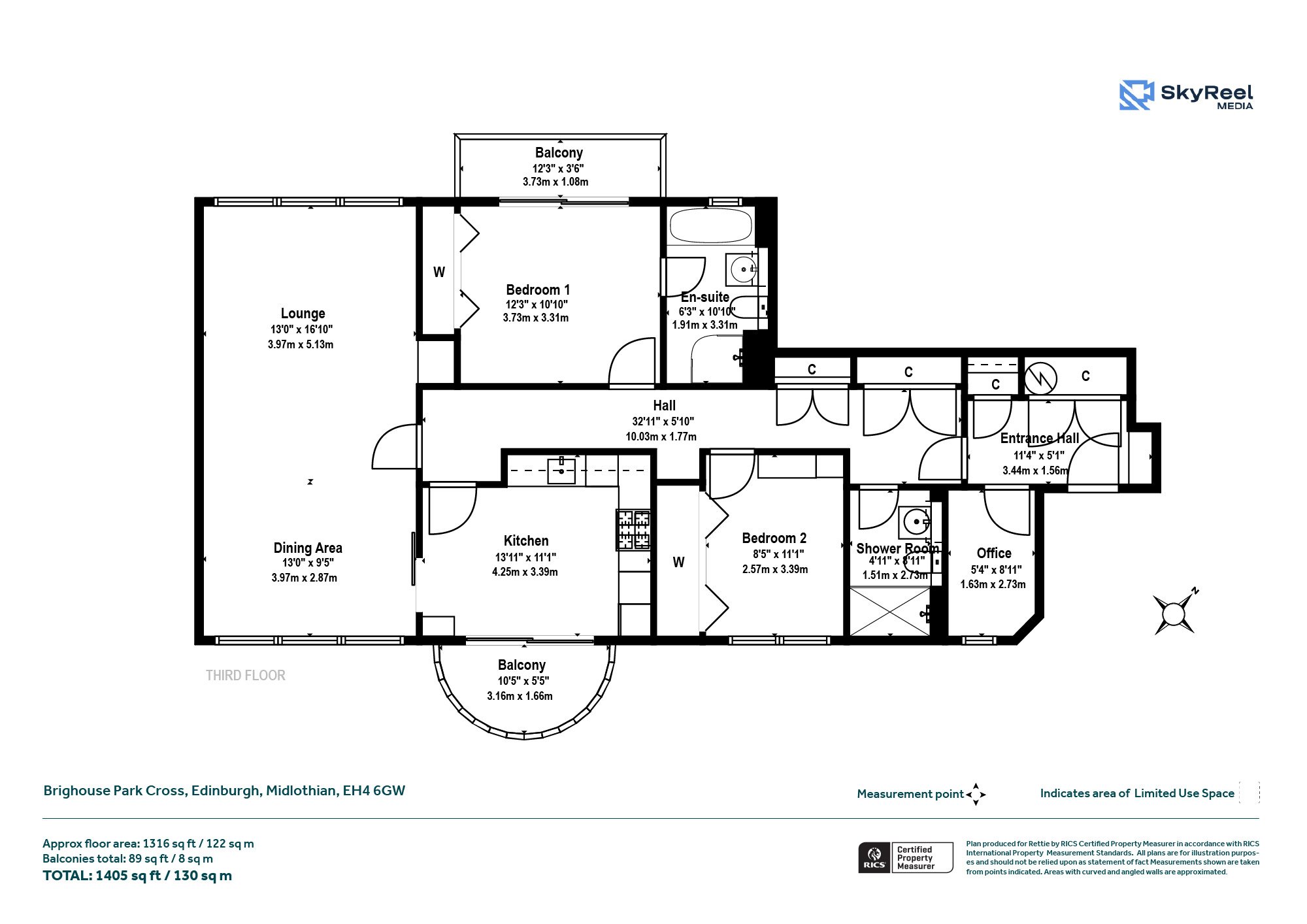
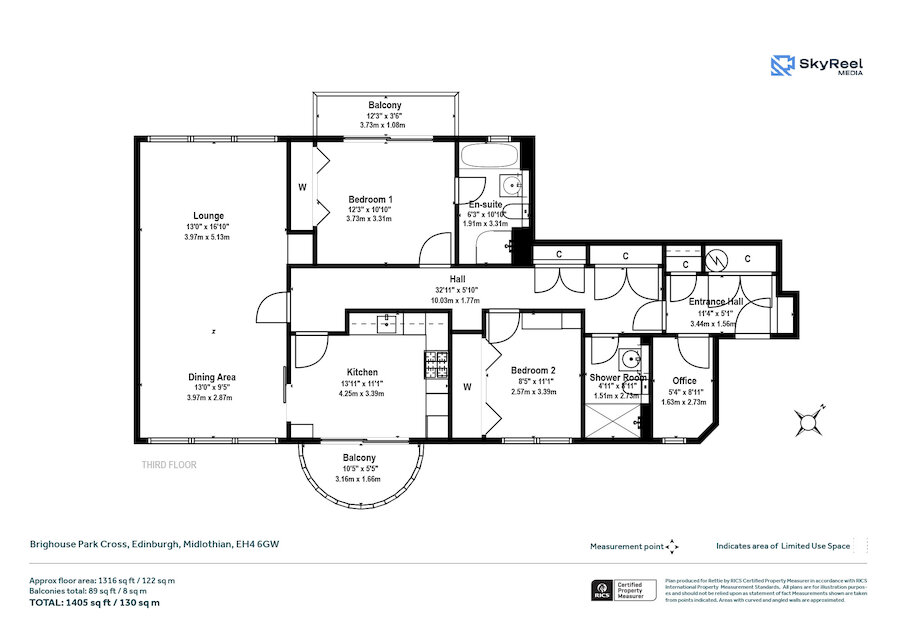
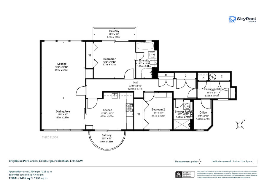
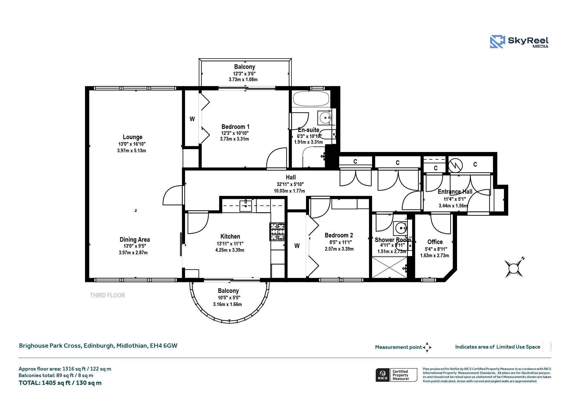
1,405 sq.ft

Tree

Communal Garden

Parking

Secure Parking, Underground Parking

Telephone

Property Description

Flat 13, 29 Brighouse Park Cross is a beautifully presented two bedroom apartment with an additional study, situated on the top (third) floor of a modern and well maintained development in Edinburgh. The building is finished with contemporary external cladding, enhancing its modern aesthetic while providing durability and low maintenance.

The property features one high spec fitted kitchen with quality integrated appliances and a separate, spacious living/dining area, providing an ideal layout for modern living. The living area opens onto two private balconies, offering excellent views and easy access to nearby green spaces and scenic walking routes. The proeprty also has gas underfloor heating throughout.

Both bedrooms are generously proportioned and benefit from excellent storage, with the principal bedroom enjoying an en suite bathroom. A further contemporary shower room serves the remainder of the apartment, alongside the additional study perfect for home working.

The property further benefits from lift access, secure parking, as well as visitors and on street parking available opposite the property- no permit needed and a quiet residential setting.

Brighouse Park Cross is ideally located to the west of the city, offering easy access to Edinburgh city centre, Edinburgh Park, and major transport links including the City Bypass, M8, M9, and Edinburgh Airport. Excellent local amenities are close by, including supermarkets, cafes, and leisure facilities, while Gyle Shopping Centre, Hermiston Gait, and Edinburgh Business Park are all within easy reach. The area is well served by public transport and is surrounded by attractive green spaces and walking paths, making it ideal for professionals seeking a balance of city convenience and outdoor living.

More Details

Unfurnished
Deposit: £2500
EPC: B
Council Tax: G
Landlord Registration: 1795950/230/19012
LARN1903047

Request More Details

Ruby Wilson

Ruby Wilson

Portfolio Manager
modern detached house with stone and timber cladding

Looking To Sell Or Let?

Rettie is one of the most trusted and well-respected names in property. Our unrivalled market knowledge helps people from around the world buy, sell, let and develop property in Scotland and the North East of England - from city apartments and rural cottages to large townhouses and prime country homes, farms and estates. We deal with some of the most prestigious properties on the market, but provide the same exceptional standards of service and value for money to all our clients.