8/2 Orchard Brae Avenue, Edinburgh, Midlothian, EH4 2HP

Edinburgh, Midlothian, EH4 2HP
Pin View on map

Monthly Rental £1,600 PCM

House

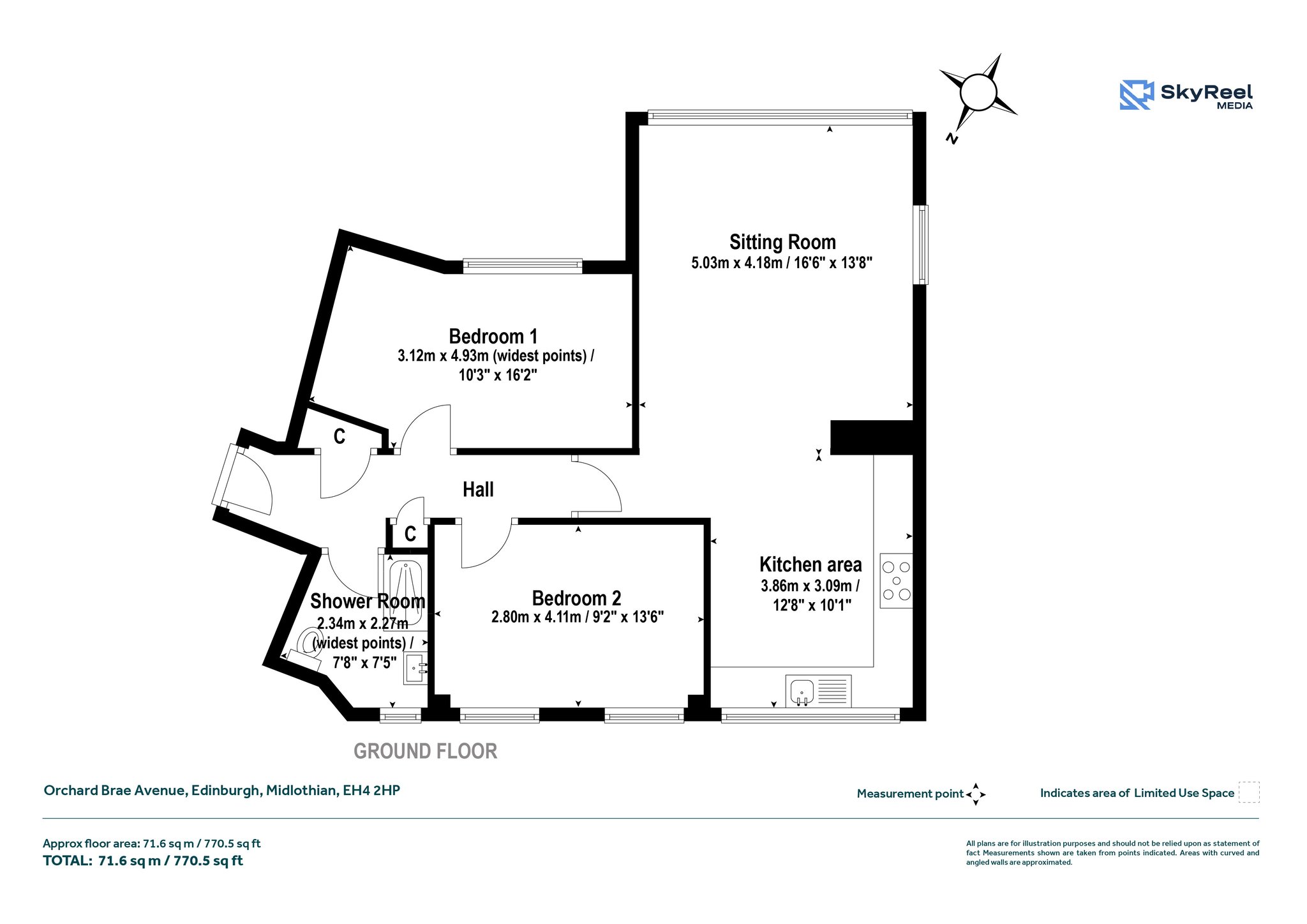
Ground Floor Apartment

Bed

2 Bedrooms

Bathroom

1 Bathroom

Reception

1 Reception Room

Furnishing

Unfurnished

Calendar

Available Now

Pets

Pets Considered

Size

72 sq.m

Parking

Off Street Parking

Telephone

Property Description

Bright and spacious two-bedroom ground floor flat situated in a lovely development in a prime location in Edinburgh.

Property has been recently renovated to an exceptionally high standard and offers a peaceful yet highly convenient location, making it the perfect choice for professionals, families or anyone seeking quality accommodation close to the heart of Edinburgh.

Accommodation comprises;
Welcoming hall with storage cupboards; Large open plan living / kitchen / dining space offering flexible, high quality space, drenched in sunlight from the triple aspect; Modern kitchen with integrated appliances; Two good sized double bedrooms; Contemporary shower room.

Externally, the property benefits from attractive communal gardens and residents parking.

Located within walking distance of the heart of the capital, Orchard Brae offers a central location with excellent shops and amenities available in nearby Craigleith Retail Park and Stockbridge offers an array of independent shops, cafés, bistros, pubs, and restaurants.

More Details

Unfurnished
Deposit: £1,800
Council Tax: D
EPC: E
Landlord Registration: EDI-1621667-25
LARN1903047

Request More Details

Ashleigh Wilson

Ashleigh Wilson

Portfolio Manager
modern detached house with stone and timber cladding

Looking To Sell Or Let?

Rettie is one of the most trusted and well-respected names in property. Our unrivalled market knowledge helps people from around the world buy, sell, let and develop property in Scotland and the North East of England - from city apartments and rural cottages to large townhouses and prime country homes, farms and estates. We deal with some of the most prestigious properties on the market, but provide the same exceptional standards of service and value for money to all our clients.