Flat 5, 119 Gorgie Road, Edinburgh, Midlothian, EH11 1TE

Edinburgh, Midlothian, EH11 1TE
New
Pin View on map

Monthly Rental £1,400 PCM

House

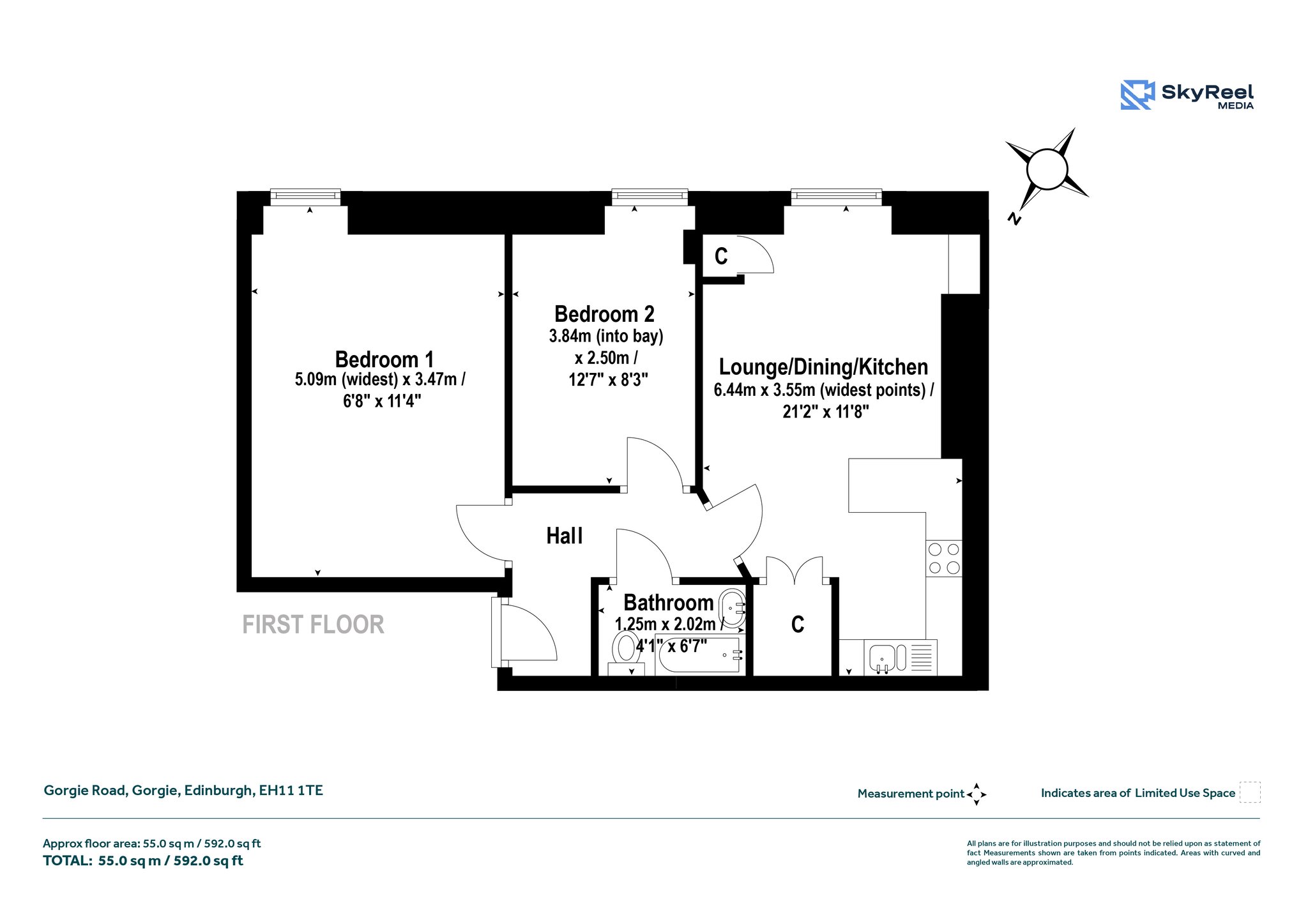
First Floor Apartment

Bed

2 Bedrooms

Furnishing

Furnished

Calendar

Available From 18/05/2026

Pets

Pets Considered

Size

55 sq.m

Tree

Communal Garden

Parking

On Street/Permit

Telephone

Property Description

A well-presented 2-bedroom furnished flat with permit parking, located in the popular residential area of Gorgie, this well-presented first-floor, flat offers comfortable and convenient living just minutes from Edinburgh city centre.

This bright and spacious property features two double bedrooms, each with a double bed, a modern bathroom with shower above bath, and an open-plan kitchen/dining/living area ideal for both relaxing and entertaining. Additional benefits include access to a communal garden and the property is pet-friendly.

Closely located to public transport, the vibrant city centre is easily accessible. There are a number of local amenities, as well as a large Asda Superstore, M&S Food and Aldi just 5 minutes away by car, and many local gyms and leisure facilities close by.

The lovely open green space of Saughton Park is not a far walk away, and the Water of Leith walkway and cycle path provides wonderful walking opportunities all the way from Balerno to Leith.

More Details

Deposit: £1600
Furnished
Council Tax: C
EPC: C
Landlord Registration: 1786867/230/09082
LARN1903047

Request More Details

Ruby Wilson

Ruby Wilson

Portfolio Manager
modern detached house with stone and timber cladding

Looking To Sell Or Let?

Rettie is one of the most trusted and well-respected names in property. Our unrivalled market knowledge helps people from around the world buy, sell, let and develop property in Scotland and the North East of England - from city apartments and rural cottages to large townhouses and prime country homes, farms and estates. We deal with some of the most prestigious properties on the market, but provide the same exceptional standards of service and value for money to all our clients.