Property Description
Virtual tour available
Set within an exclusive, modern landscaped development in the popular residential area of Newington in south Edinburgh, this beautifully proportioned, double upper three-bedroom apartment offers over 1,500 square feet of bright and versatile living space.
Occupying the second and third floors, this impressive property benefits from allocated private parking, secure entry, and stunning panoramic views across the Pentland Hills and Arthur’s Seat.
Accommodation comprises;
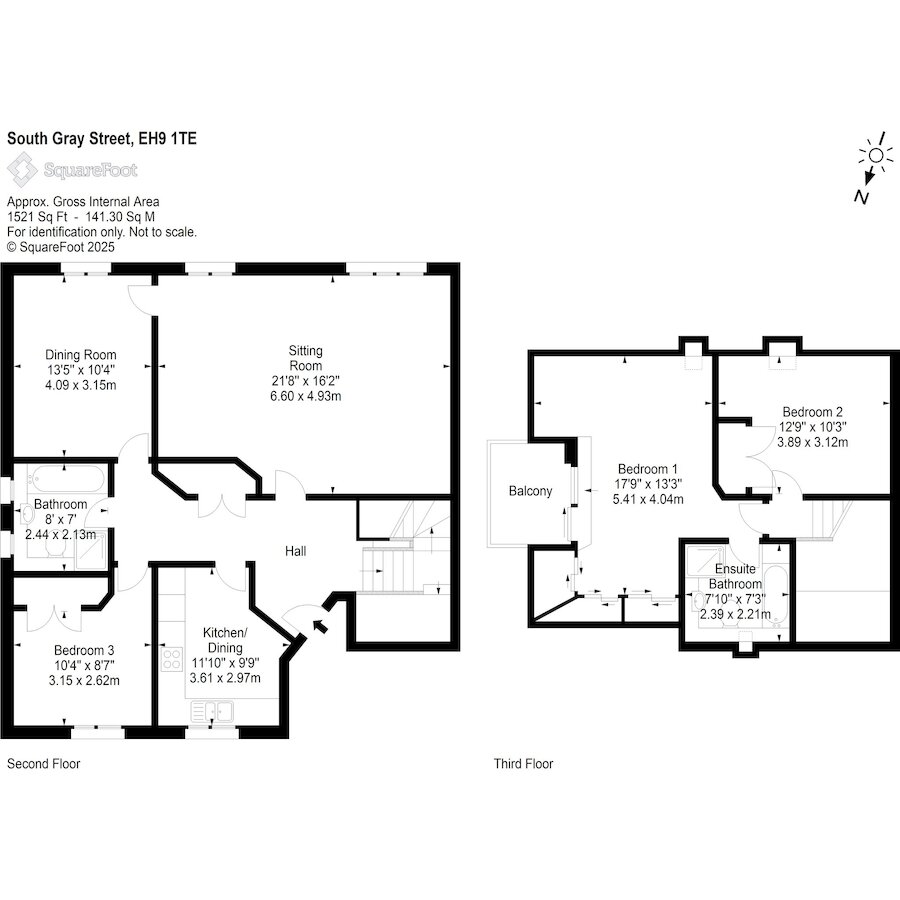
The interior is flooded with natural light throughout. The elegant sitting room and adjacent dining room (which could serve as a fourth bedroom or home office) both enjoy spectacular westerly views toward Hillend and the Pentlands, creating a seamless living environment. The contemporary kitchen is complemented by a bright breakfast area ideal for everyday living. A stylishly tiled bathroom with a separate bath and shower, and a generous double bedroom with fitted wardrobes complete the lower level.
Upstairs, the principal bedroom suite is a standout feature – a luxurious and serene space with extensive built-in storage, a spacious ensuite bathroom with both bath and separate shower, and its own private south-facing balcony. This tranquil outdoor retreat is a true rarity in city living, offering views to the iconic Arthur’s Seat and plenty of space for seating, planters, and morning coffee. A further double bedroom and excellent built-in storage, including floored attic space, offers ample storage and spacious living.
Located to Edinburgh’s south, approximately two miles from the city centre, Newington offers a dynamic social scene and atmosphere, with an abundance of artisan coffee shops, pubs, bars, and restaurants. There is also a wealth of cultural attractions like the Festival Theatre, the Queen’s Hall and Summerhall multi-arts complex. Nearby there are independent shops, express supermarkets and high-street retailers along Nicolson Street and South Clerk Street, with more extensive shopping facilities available at Cameron Toll Shopping Centre. Newington is within the catchment area for well-regarded schools and is served by comprehensive public transport links travelling across the city, day and night.
More Details
Available Furnished or Unfurnished
Deposit: £2,450
EPC: C
Council Tax: G
Landlord Registration: 1790375/230/06102
LARN1903047
Similar Properties
Looking To Sell Or Let?
Rettie is one of the most trusted and well-respected names in property. Our unrivalled market knowledge helps people from around the world buy, sell, let and develop property in Scotland and the North East of England - from city apartments and rural cottages to large townhouses and prime country homes, farms and estates. We deal with some of the most prestigious properties on the market, but provide the same exceptional standards of service and value for money to all our clients.
