8 Kingswood, Leadburn, Scottish Borders, EH46 7BW

Leadburn, Scottish Borders, EH46 7BW
New
Pin View on map

Monthly Rental £2,500 PCM

House

House

Bed

5 Bedrooms

Bathroom

3 Bathrooms

Reception

2 Reception Rooms

Furnishing

Unfurnished

Calendar

Available From 23/03/2026

Pets

Pets Considered

Size

215 sq.m

Tree

Private Garden

Parking

Off Street Parking

Telephone

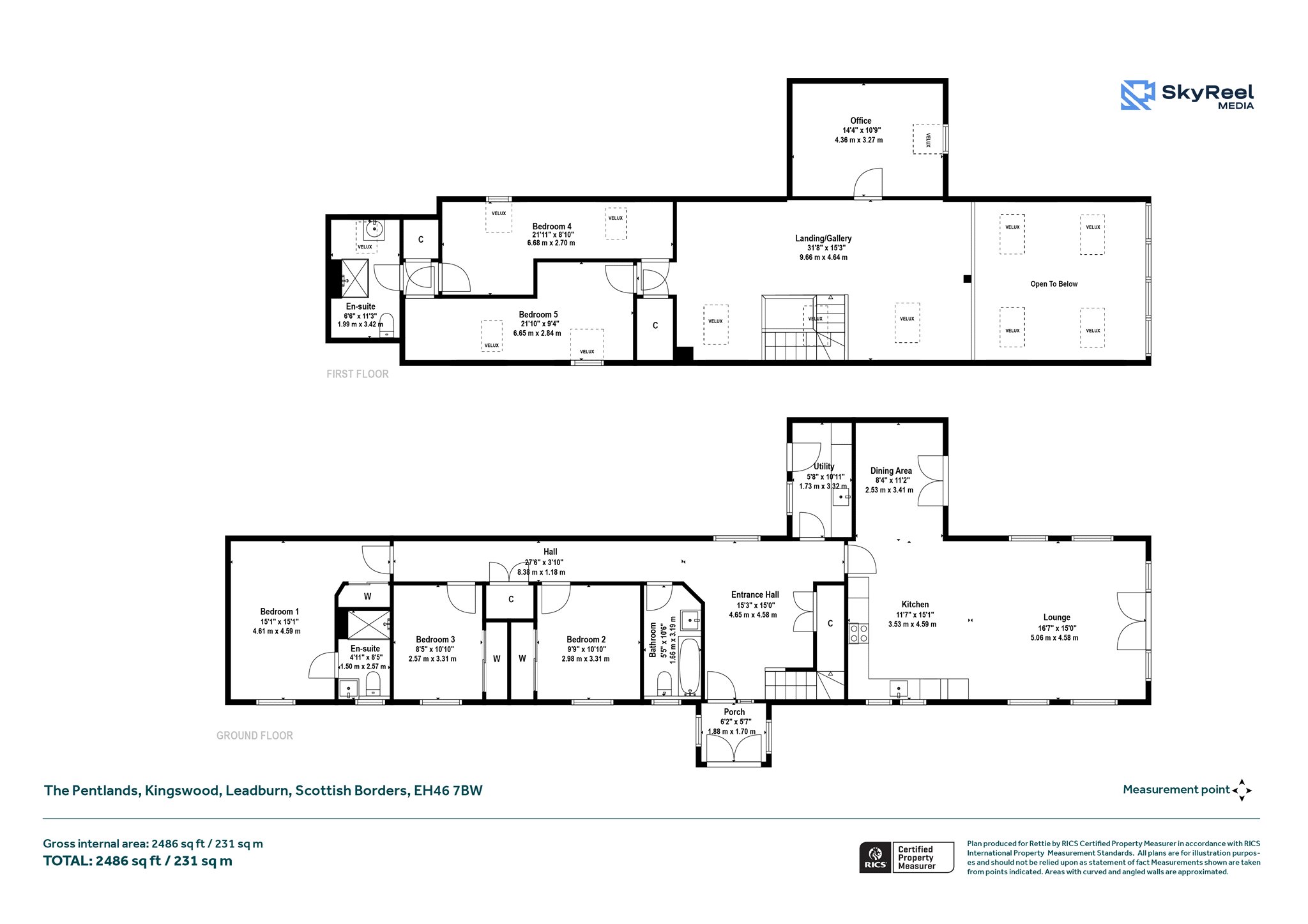
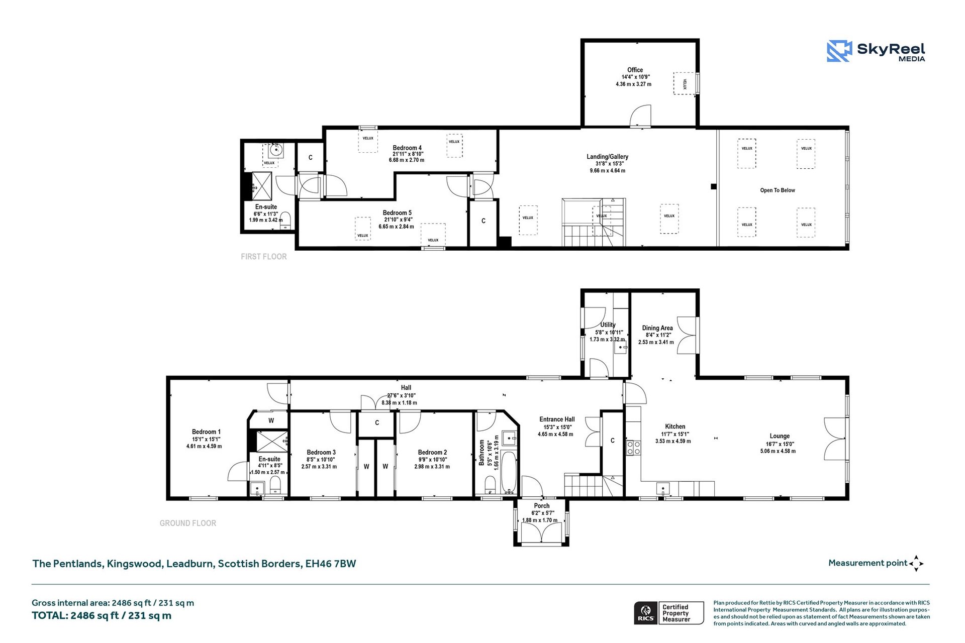
Property Description

Kingswood is an exquisite new build steading offering five/six generously proportioned and beautifully appointed bedrooms. Thoughtfully designed with exceptional attention to detail, the property blends seamlessly with the surrounding development while providing versatile, spacious accommodation ideal for modern living.

The ground floor welcomes you via a practical porch into the heart of the home—a stunning open plan kitchen, dining, and lounge area. This bright, sociable space is perfect for both everyday living and entertaining. A separate utility room adds convenience and additional storage. This level also includes a well proportioned bedroom with en suite shower room, alongside two further bedrooms benefiting from generous built in storage, all served by a contemporary family bathroom.

Upstairs, a striking landing and gallery overlook the living space below, creating an impressive sense of light and openness. The first floor also features a dedicated home office, ideal for remote working or study, as well as two further bedrooms that share a stylish en suite shower room.

The property benefits from excellent storage throughout and is complemented externally by a private garden and off street parking. Offered unfurnished this exceptional home provides flexible living in a peaceful countryside setting within the Pentlands.

The Kingside Development is a unique collection of high quality homes, including both new builds and traditional stone barn conversions, all finished to an exceptional standard. Nestled in the serene Borders countryside, it offers enchanting, far-reaching views and a true sense of tranquillity. Despite its rural charm, Kingside is ideally located just a 30 minute drive from Edinburgh city centre, making it perfect for commuters or those seeking the best of both country and city living.

More Details

Unfurnished
Deposit: £2,700
EPC: B
Council Tax: G
Landlord Registration:1796559/355/29012
1796560/355/29012
LARN1903047

Request More Details

Victoria Sanderson

Victoria Sanderson

Associate Director
Daniel Steele

Daniel Steele

Portfolio Manager
modern detached house with stone and timber cladding

Looking To Sell Or Let?

Rettie is one of the most trusted and well-respected names in property. Our unrivalled market knowledge helps people from around the world buy, sell, let and develop property in Scotland and the North East of England - from city apartments and rural cottages to large townhouses and prime country homes, farms and estates. We deal with some of the most prestigious properties on the market, but provide the same exceptional standards of service and value for money to all our clients.