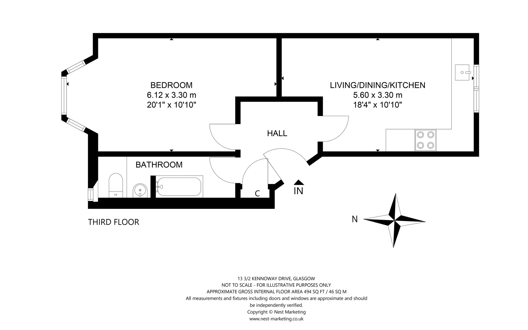
3/2, 13 Kennoway Drive, Glasgow, G11 7UA

Glasgow, G11 7UA
New
Pin View on map

Monthly Rental £895 PCM

House

Upper Floor Apartment

Bed

1 Bedroom

Bathroom

1 Bathroom

Reception

1 Reception Room

Calendar

Available Now

Size

47 sq.m

Tree

Communal Garden

Parking

On Street/Permit

Telephone

Property Description

One bedroom top floor tenanment flat available in West End of Glasgow. The flat is situated just off Dumbarton Road which offers a variety of shops bar and restraunts, as well as motorway links, bus stops and subway links.

The property has been neautrally decorated with laminate flooring throughout and offered on a furnished basis.

Property is available now!

Scottish Letting Agent Registration: LARN1903047

More Details

Landlord registration: 570418/260/14081
Deposit: £1095.00
Council tax: B
EPC: D

Request More Details

Paige Montgomery

Paige Montgomery

Portfolio Manager
modern detached house with stone and timber cladding

Looking To Sell Or Let?

Rettie is one of the most trusted and well-respected names in property. Our unrivalled market knowledge helps people from around the world buy, sell, let and develop property in Scotland and the North East of England - from city apartments and rural cottages to large townhouses and prime country homes, farms and estates. We deal with some of the most prestigious properties on the market, but provide the same exceptional standards of service and value for money to all our clients.