4/6, 83 Wilson Street, Glasgow, G1 1UZ

Glasgow, G1 1UZ
New
Pin View on map

Monthly Rental £1,200 PCM

House

Upper Floor Apartment

Bed

2 Bedrooms

Bathroom

1 Bathroom

Reception

1 Reception Room

Furnishing

Furnished

Calendar

Available From 31/10/2025

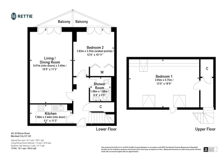
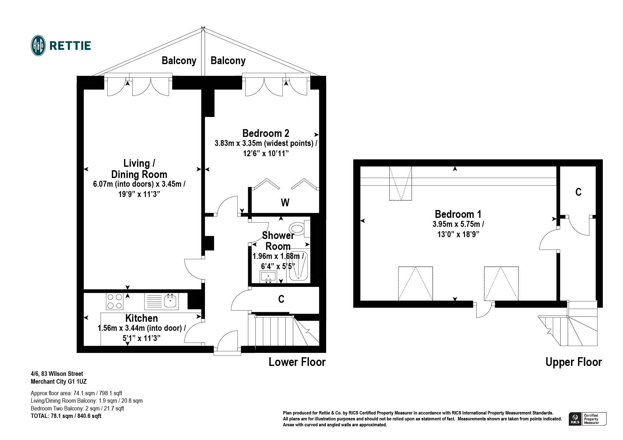
Size

66 sq.m

Parking

On Street/Permit

Telephone

Property Description

Boasting the only balcony in the building, this super two-bedroom duplex apartment is situated on the top (fourth) floor of Glassford Court, a development set on the corner of Wilson Street and Glassford Street, in the very heart of Glasgow’s popular Merchant City. Situated within a striking and prominent red brick building adjoining sandstone warehouse building that was converted into flats in the 1980’s as part of the regeneration of the Merchant City, the property benefits from access to residents Permit Parking.

The apartment is set over two floors and has a modernised interior having been upgraded during its current ownership. Spanning over 840 sq ft, notable highlights including living space and bedroom two having patio door access to the buildings only balcony offering an outlook over Wilson Street, refitted shower room and very generous main bedroom on the upper level with coombe ceilings and Velux windows. The property has electric heating and EPC Band D.

Accommodation:

  • Security entry system; well-presented communal entrance lobby with lift and stair access to each floor, door to bin store and secure doors to communal hallway.
  • Welcoming reception hall with large cupboards and stair to upper level with additional storage cupboard.
  • Impressive main living/dining room with laminate floor, high ceilings, three section tall windows with patio doors to private balcony.
  • Internal kitchen complete base and wall units, a mix of integrated and under counter appliances and laminate floorcoverings.
  • Re-fitted shower room with suite comprising shower, toilet and wash hand basin, there is linoleum flooring, tile design wet wall.
  • Double bedroom which has continued laminate wooden flooring and three section tall windows with patio doors to private balcony.
  • Stairs lead to upper main bedroom, a sizeable room spanning over 18’9” having with laminate wooden flooring and three Velux windows in the coombe ceiling.
  • The property has electric heaters and has the considerable benefit of access to Glasgow City Council Residents Permit Parking

Situation

This apartment is situated in the heart of the Merchant City, an area within Glasgow’s City Centre that has benefitted from significant redevelopment in the last few decades with a mix of both residential and commercial redevelopment. This location offers unquestionably one of the most envied and prominent social locations Glasgow has to offer with wealth of amenities including both general and specialist shopping, wine bars and many highly acclaimed restaurants and is also conveniently located for access to the City Centre. The property is in proximity to Strathclyde & Caledonian Universities, the Glasgow School of Art, the S.E.C. and The Clyde Auditorium. The area benefits from frequent public transport with easy access to Central and Queen Street Train Stations, and St Enoch subway stations. Public transport and road links are exceptional.

Scottish Letting Agent Registration: LARN1903047

Landlord Registration: 506162/260/25082
deposit £1400
council Tax: D
epc

More Details

Deposit: £1,400
Council Tax Band: D
EPC rating: D

Request More Details

Megan McKeown

Megan McKeown

Portfolio Manager
modern detached house with stone and timber cladding

Looking To Sell Or Let?

Rettie is one of the most trusted and well-respected names in property. Our unrivalled market knowledge helps people from around the world buy, sell, let and develop property in Scotland and the North East of England - from city apartments and rural cottages to large townhouses and prime country homes, farms and estates. We deal with some of the most prestigious properties on the market, but provide the same exceptional standards of service and value for money to all our clients.