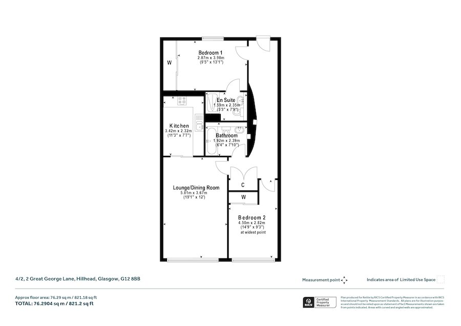
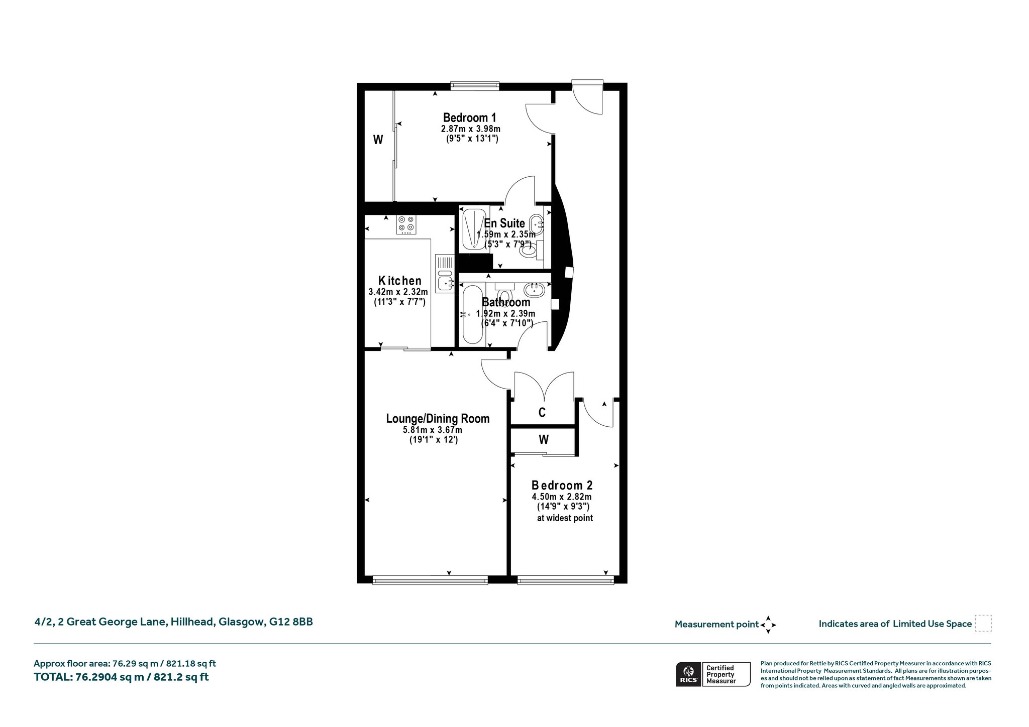
4/2, 2 Great George Lane, Hillhead, Glasgow, G12 8BB

Hillhead, Glasgow, G12 8BB
New
Pin View on map

Monthly Rental £1,495 PCM

House

Apartment

Bed

2 Bedrooms

Bathroom

2 Bathrooms

Reception

1 Reception Room

Furnishing

Furnished

Calendar

Available From 06/05/2026

Size

83 sq.m

Parking

On Street/Permit

Telephone

Property Description

This is an impressive fourth floor two-bedroom modern flat forming part of the ‘Ashton Apartments’ development in the highly popular and incredibly convenient Hillhead area. Situated just off Byres Road the property is exceptionally well placed for an outstanding selection of local amenities including excellent transport links and easy access to The University of Glasgow and The Botanic Gardens. the property is situated adjacent to Ashton Lane with excellent venues including The Grosvenor Cinema, The Ubiquitous Chip and many more bars and restaurants.

The accommodation is naturally bright, of comfortable proportions and smartly presented throughout with notable highlights including a fabulous main lounge/dining room, a separate kitchen, two spacious double bedrooms (both with fitted wardrobes), an en suite shower room and a three piece bathroom. In addition, there is a superb residents’ roof terrace.

Accommodation:

  • Security entry system
  • Communal entrance close – lift or stair access to each level
  • Broad and welcoming reception hall extending to over 25ft with storage cupboard off
  • Main lounge/dining room with three section window to the front
  • Separate kitchen complete with a range of base and wall units and integrated appliance
  • Bedroom one with window to the rear and fitted wardrobes
  • En suite shower room
  • Bedroom two with three section window to the front
  • Three piece bathroom off the reception hall
  • Gas central heating
  • Double glazing
  • Residents’ roof terrace

Scottish Letting Agent Registration: LARN1903047

More Details

Landlord registration: 1783386/260/16062
Deposit £1695
Council tax: E
EPC: C

Request More Details

Abbie Coulson

Abbie Coulson

Portfolio Manager
modern detached house with stone and timber cladding

Looking To Sell Or Let?

Rettie is one of the most trusted and well-respected names in property. Our unrivalled market knowledge helps people from around the world buy, sell, let and develop property in Scotland and the North East of England - from city apartments and rural cottages to large townhouses and prime country homes, farms and estates. We deal with some of the most prestigious properties on the market, but provide the same exceptional standards of service and value for money to all our clients.