1/2, 3 Arthur Street, Glasgow, Glasgow City, G3 8QZ

Glasgow, Glasgow City, G3 8QZ
New
Pin View on map

Monthly Rental £1,400 PCM

House

Apartment

Bed

2 Bedrooms

Bathroom

1 Bathroom

Reception

1 Reception Room

Furnishing

Furnished

Calendar

Available From 20/04/2026

Size

57 sq.m

Tree

Communal Garden

Telephone

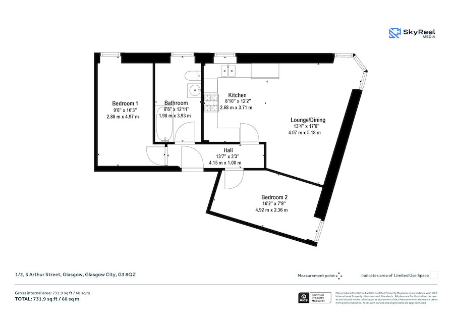
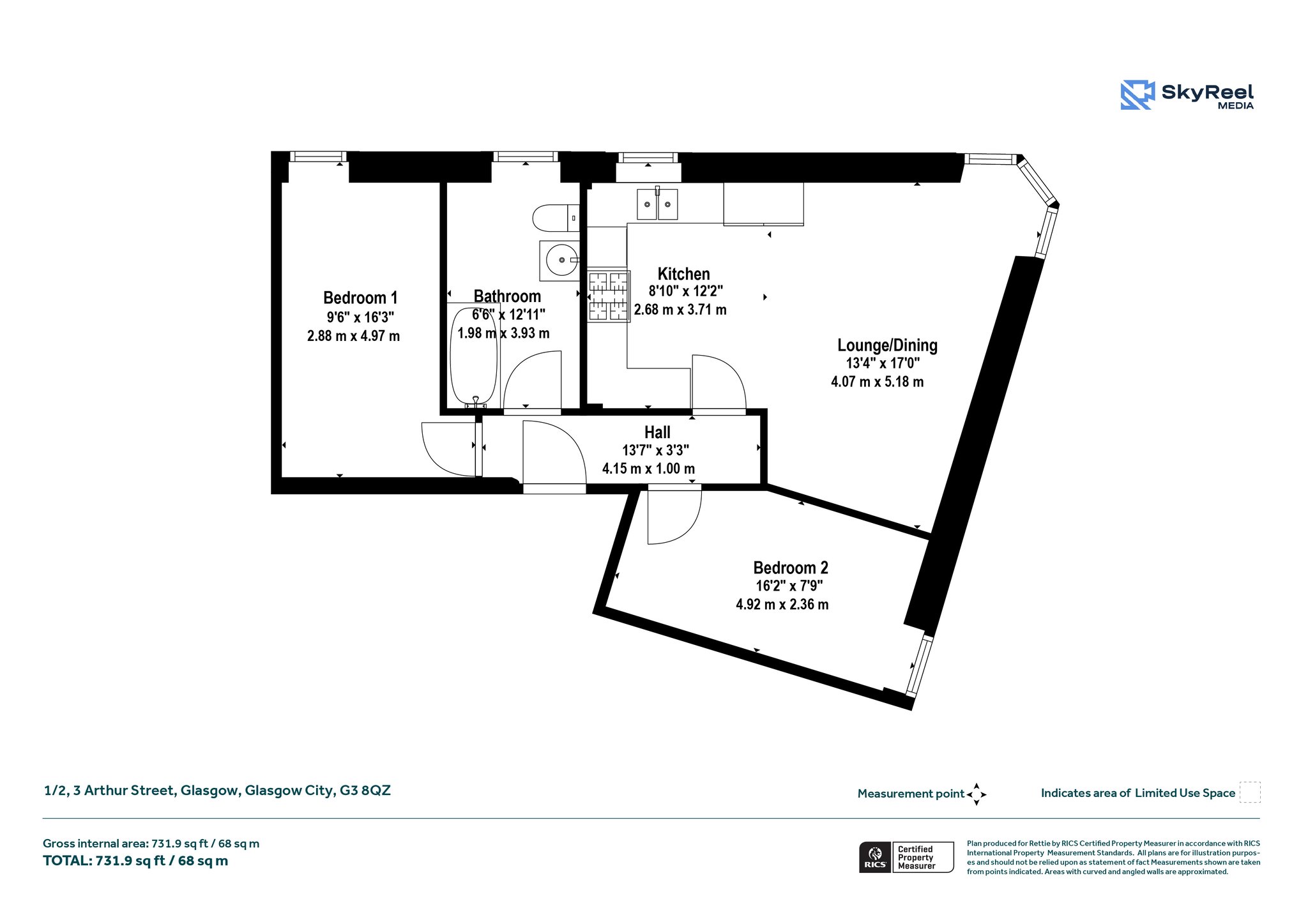
Property Description

Rettie are delighted to present to market this well presented spacious two-bedroom apartment in the ever popular Finnieston area.

The property consists of bay windowed lounge with fabulous open plan kitchen. The bay window offers the perfect space for dining whilst watching the world go by. Both bedrooms are spacious doubles allowing for ample storage. The property further benefits from a modern and bright freshly fitted bathroom.
Please note this property is offered on a furnished basis.
Viewing is highly recommended.

More Details

Scottish Letting Agent Registration: LARN1903047
Deposit: £1600

More Details

EPC: C
Council tax band: C
Landlord Registration: Pending

Request More Details

Karen Crocket

Karen Crocket

Portfolio Manager
modern detached house with stone and timber cladding

Looking To Sell Or Let?

Rettie is one of the most trusted and well-respected names in property. Our unrivalled market knowledge helps people from around the world buy, sell, let and develop property in Scotland and the North East of England - from city apartments and rural cottages to large townhouses and prime country homes, farms and estates. We deal with some of the most prestigious properties on the market, but provide the same exceptional standards of service and value for money to all our clients.