2/2, 7 Knowehead Gardens, Glasgow, Glasgow City, G41 5RE

Glasgow, Glasgow City, G41 5RE
Now Let
Pin View on map

Monthly Rental £1,395 PCM

House

Upper Floor Apartment

Bed

3 Bedrooms

Bathroom

2 Bathrooms

Reception

1 Reception Room

Furnishing

Unfurnished

Size

85 sq.m

Tree

Communal Garden

Parking

Off Street Parking

Telephone

Property Description

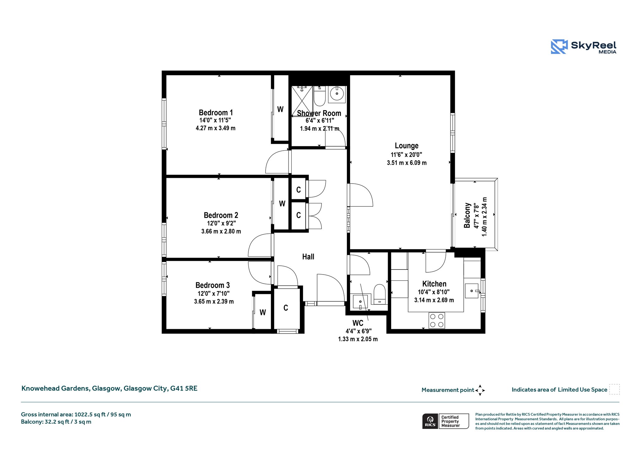
Rettie are delighted to present this newly refurbished, three bedroom second floor flat located in the highly popular area of Pollokshields.

The accommodation comprises of; welcoming reception hallway with generous storage and WC off, delightful main lounge/diner with patio doors to a private balcony, newly fitted sleek kitchen with a range of modern appliances, three double sized bedrooms with fitted wardrobes and a modern bathroom with three piece suite and walk in shower.

The property further benefits from; a well kept communal garden, off street parking and a secure entry system.

Knowehead Gardens is located within the popular area of Pollokshields district of Glasgow. Situated close to a great selection of local amenities and transport links. Local schooling at both primary and secondary is close at hand, together with Glasgow Clyde College providing further education. Shawlands, Mount Florida, Strathbungo, Queen's Park and Battlefield are within close proximity and have an excellent selection of shopping, restaurants and bars/bistros. Braehead and Silverburn Shopping Centres are also nearby. Excellent motorway access to City Centre and beyond by means of the M8, M77, M74 and Clyde Tunnel.

Scottish Letting Agent Registration: LARN1903047

More Details

Landlord registration: 349338/260/26521 / 349340/260/26521
Deposit £1595
Council tax: E
EPC:E

Contact Us

Abbie Coulson

Abbie Coulson

Portfolio Manager
Megan McKeown

Megan McKeown

Portfolio Manager
modern detached house with stone and timber cladding

Looking To Sell Or Let?

Rettie is one of the most trusted and well-respected names in property. Our unrivalled market knowledge helps people from around the world buy, sell, let and develop property in Scotland and the North East of England - from city apartments and rural cottages to large townhouses and prime country homes, farms and estates. We deal with some of the most prestigious properties on the market, but provide the same exceptional standards of service and value for money to all our clients.