The Elms, 14 Clouds, Duns, Scottish Borders, TD11 3BB

14 Clouds, Duns, Scottish Borders, TD11 3BB
Under Offer
Pin View on map

Guide Price £390,000

House

Semi Detached House

Bed

4 Bedrooms

Bathroom

2 Bathrooms

Reception

2 Reception Rooms

Size

303 sq.m

Tree

Private Garden

Garage

Garage

Telephone

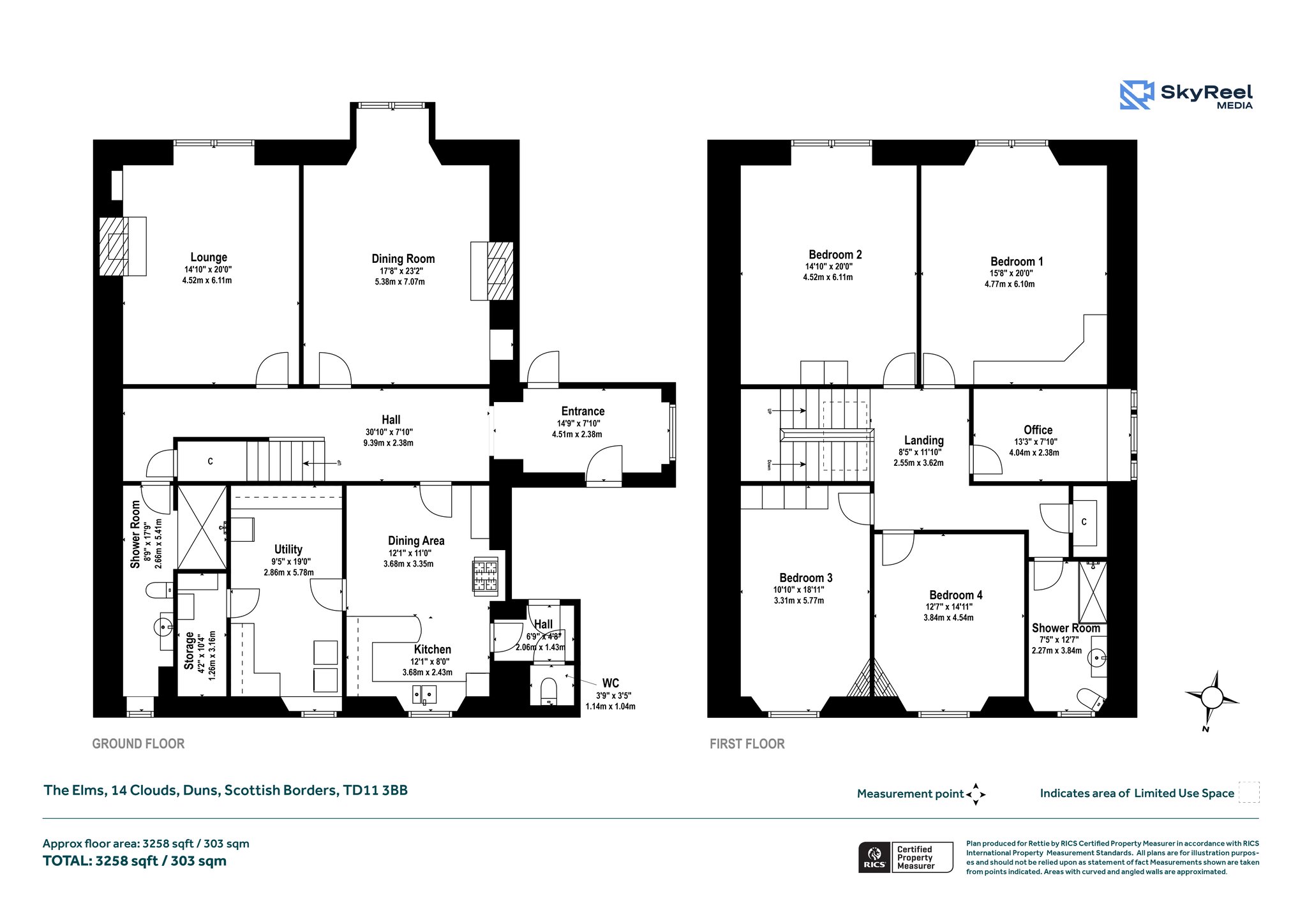
Property Description

Set in an elevated position with open views across the surrounding landscape, The Elms is a striking four-bedroom, semi-detached home formed from the sympathetic conversion of a former United Secession Church. This Grade C listed property blends historic character with generous living space, offering a unique and versatile home in a peaceful and highly desirable setting on the edge of Duns.

The property comprises four bedrooms, flexible reception space and externally benefits from a garage and stone outbuilding, ideal for storage or workshop use. The enclosed rear garden provides a private and secure outdoor space, whilst the elevated position ensures attractive open views and a feeling of privacy.

Accommodation Comprises:

First Floor: Reception Hall, Drawing Room, Lounge, Kitchen, Utility, Cloakroom, Wet Room.

Second Floor: Landing, Four Bedrooms, Box Room, Bathroom

Outside: Enclosed Rear Garden, Garage, Stone Outbuilding.

Distances: Berwick-upon-Tweed 15 miles, Edinburgh 40 miles, Newcastle 65 miles.

More Details

Tenure: Freehold
EPC: D (58)
Servicing All mains services connected.
Council Tax Band: F
Agents Notes: Please be aware the property is grade C listed and lies within a conservation area.

Contact Us

Amy Brown

Amy Brown

Associate Director
Mortgage Calculator
Monthly payments
Please set an interest rate.

Your home may be repossessed if you do not keep up repayments on your mortgage.

There may be a fee for mortgage advice. The actual amount you pay will depend upon your circumstances. The fee is up to 1% but a typical fee is 0.3% of the amount borrowed.

Tax Calculator
LBTT calculator for properties purchased in Scotland. Stamp Duty calculator for properties purchased in England.
Land & buildings transaction tax (LBTT)
= £0
New build house with stone and timber cladding

Looking To Sell Or Let?

Rettie is one of the most trusted and well-respected names in property. Our unrivalled market knowledge helps people from around the world buy, sell, let and develop property in Scotland and the North East of England - from city apartments and rural cottages to large townhouses and prime country homes, farms and estates. We deal with some of the most prestigious properties on the market, but provide the same exceptional standards of service and value for money to all our clients.