59B Bridge Street, Berwick-upon-Tweed, Northumberland, TD15 1ES

Berwick-upon-Tweed, Northumberland, TD15 1ES
Pin View on map

Guide Price £190,000

House

Upper Floor Apartment

Bed

2 Bedrooms

Bathroom

1 Bathroom

Reception

1 Reception Room

Size

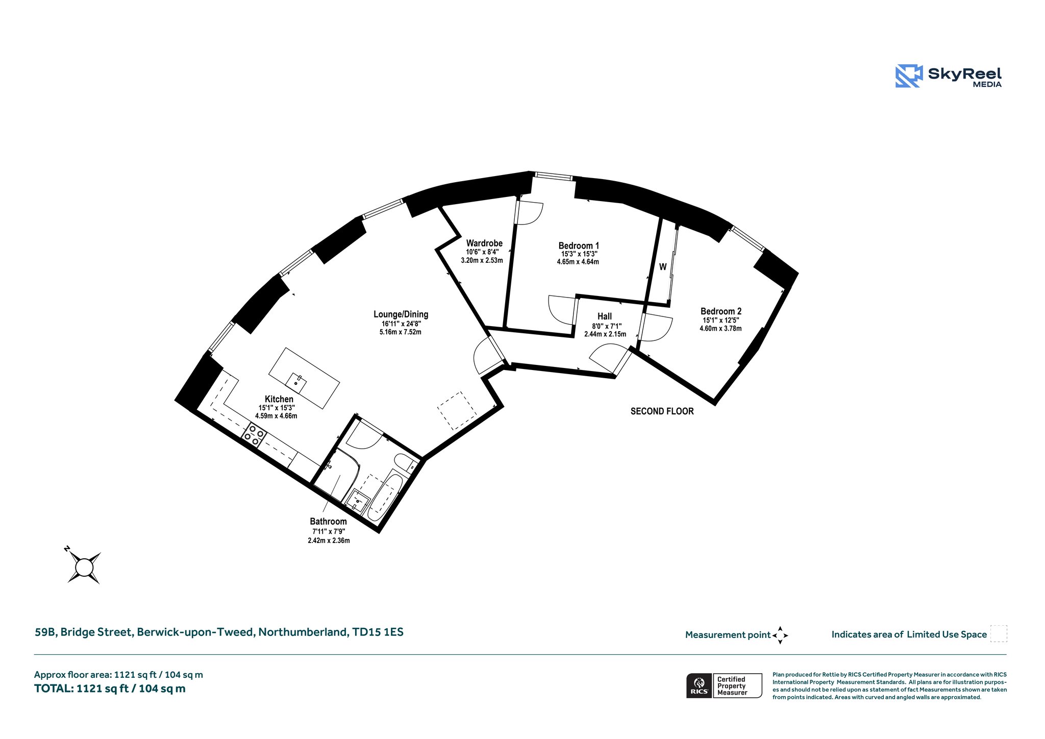
104 sq.m

Telephone

Property Description

Set within a striking Grade II listed stone building in the heart of Berwick-upon-Tweed’s conservation area, this beautifully positioned second-floor apartment combines period character with comfortable modern living. Located on historic Bridge Street, the property enjoys a highly desirable setting close to the town’s amenities, riverside walks, and transport links.

Accommodation Comprises: Entrance Hall, Open Plan Kitchen/Living Area, Two Bedrooms, Bathroom.

Distances: Berwick Railway Station 1 mile, Edinburgh 57 miles, Newcastle upon Tyne 63 miles (All distances are approximate).

More Details

Tenure: Leasehold - a 250 year lease was granted on the 27th May 2010. Ground rent is £25 per annum.
Council Tax Band: A
EPC: Exempt - Grade 2 listed.
Listing: Please be aware the property is Grade 2 listed and lies within a conservation area.

Request More Details

Amy Brown

Amy Brown

Associate Director
Mortgage Calculator
Monthly payments
Please set an interest rate.

Your home may be repossessed if you do not keep up repayments on your mortgage.

There may be a fee for mortgage advice. The actual amount you pay will depend upon your circumstances. The fee is up to 1% but a typical fee is 0.3% of the amount borrowed.

Tax Calculator
LBTT calculator for properties purchased in Scotland. Stamp Duty calculator for properties purchased in England.
Land & buildings transaction tax (LBTT)
= £0
New build house with stone and timber cladding

Looking To Sell Or Let?

Rettie is one of the most trusted and well-respected names in property. Our unrivalled market knowledge helps people from around the world buy, sell, let and develop property in Scotland and the North East of England - from city apartments and rural cottages to large townhouses and prime country homes, farms and estates. We deal with some of the most prestigious properties on the market, but provide the same exceptional standards of service and value for money to all our clients.